和家人一起享受的房子。一个能变化、能适应、能欢迎父母、曾祖母、女儿、女婿、孙辈的房子,他们中的一些人或者同时欢迎所有人。一幢房子,早上起床时,伴着早餐的细语,下午起床时,伴着孩子们玩耍的喧闹声,伴着餐桌上的长篇大论,伴着最后一分钟的会议,为你掖好被子。灵活、充满活力的住宅随着时间的推移而变化,并随着家庭的需要而变化。
在《建筑如何学习》中,斯图尔特·布兰德告诉我们时间的层次。他认为,无论场地条件如何,该结构都是最多年生的一层,在建筑的使用寿命中最难改变的一层。
将结构置于一个特定的功能布局中,迟早会涉及到与它所包含的生活不同步。
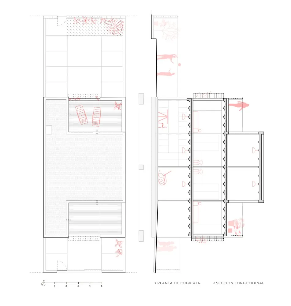
因此,位于Requena的REI住宅是根据一个灵活的系统来组织的,该系统包含了不同的用途——从基督教寺庙到市场、法院和罗马时代的行政用途——这在历史上被证明是一个有效的和有弹性的解决方案:巴西利卡计划。布局由三个中心组成。中殿的主要功能是:吃饭、聊天、休息、玩耍等。
细长的管状金属柱将中心区域与活动室分开,从活动室进入装备好的周边。侧廊的形状就像圣物,是21世纪的家庭“秘室”。这种空间配置超越了“普通”住宅的用途。它允许居民改造和使用意想不到的用途。根据罗伯特·史密森在他的随笔《帕塞克的纪念碑》中的观点,这座房子在建造之前就已经是一片废墟了。也就是说,它包含了未来将要建造的每一个新建筑。
这三个装置可以方便地划分与栏杆,窗帘或干隔断系统。轻的划分,比结构的混凝土和金属更短暂。在某些时候,三个naves合并成两个或一个。它们延伸到外面,变成了一个平台。他们甚至挖地,并连接到较低的水平。网过滤了照亮一楼中心空间的光线。
假天花板出现在必要的地方,允许中心区域的天花板裸露,并露出弯曲的混凝土拱顶,从而成为主要空间的同义词。这是一种基本的物质,在这种似是而非的大教堂中,寻求将世俗的物质神圣化。简而言之,这个项目探索的是一种允许变化的架构,它不限制生命,也不冻结生命。始终在建设中,适应中,不断变化。互动和刺激。正如阿尔多•范•艾克(Aldo Van Eyck)所说:“无论空间和时间意味着什么,地点和场合意味着更多”。
Architects: CRUX arquitectos
Area: 223.0 m2
Year: 2018
Photographs: Milena Villalba
Lead Architects:Raquel Sola Rubio + Alejandro García Pedrón
Collaborators:Luis Ros Serrano, cálculo de estructuras y director de ejecución

