本项目位于意大利特雷维索的小镇Susegana上,涉及了镇上的Ceviv酒厂扩建项目的两期工程。第一期工程包括新建一座新办公楼和为20个葡萄酒桶和高压灭菌器提供一个露天平台,第二期工程则是为24个新葡萄酒桶创造另一个平台空间。
该项目的主要设计概念是使办公楼和平台拥有相同的外表皮,从而创造出一个独特的完整体量。经过讨论,建筑师最终选择了能够代表酒厂品牌标志的绿色穿孔铝板作为外表皮,不仅可以使光线照进室内,更营造出一种轻微的通透感。铝板上孔洞的大小不一,创造出色调丰富、富有活力的建筑立面。

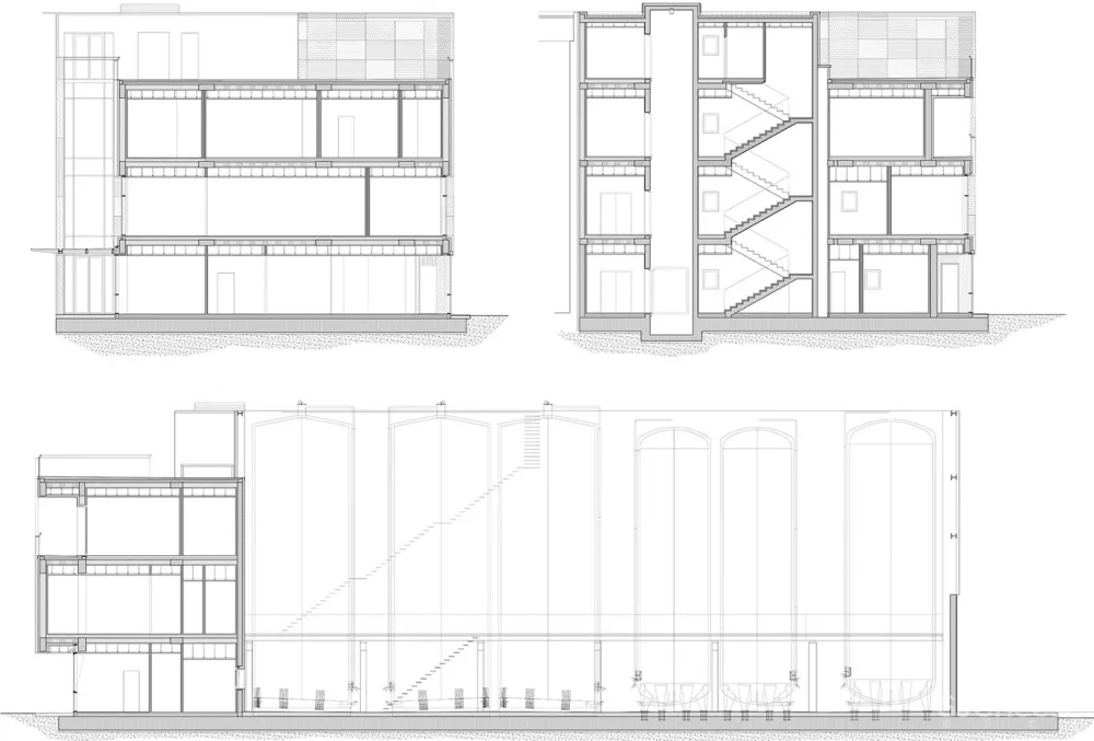
办公楼共三层,屋顶还有一个露台。建筑首层采用玻璃围合,从上层建筑的外墙处向内缩进,使建筑的南侧和西侧形成悬挑空间。玻璃中庭内设有电梯,连接着现有酒厂。从现有酒厂可以通向办公楼的各个楼层、现有仓库和新建的放置葡萄酒桶的平台。办公楼首层设有一个接待处和一间实验室,二层则是一个开放的办公区域和一间私人的主办公室,三层则设有一间小型的品酒室和供管理人员居住的公寓。
















▼立面细节图
▼平面图
▼剖面图
设计公司:REISARCHITETTURA 位置:意大利 类型: 建筑 材料:穿孔板 铝板 陶瓷 混凝土 幕墙 设计公司:REISARCHITETTURA 位置:意大利 类型:建筑 材料:穿孔板 铝板 陶瓷 混凝土 幕墙 标签: extension Susegana Treviso 扩建 特雷维索
版权声明:本文内容由用户自行发布上传或投稿由设计芝士代为发布,版权归原作者所有,设计芝士不拥有其著作权,亦不承担相应法律责任。如果您发现本站中有涉嫌抄袭或侵权的内容,请点此提交工单进行举报,一经查实,本站将立刻删除涉嫌侵权内容。


并不是每次互动都会得到奖励,也不是每一个案例都惊为天人。你有你的魅力吸引了我,我有我的审美寻芳而来。这种不期而遇的碰面,难道不是缘分?