感谢来自 池贝知子/ ikg inc. 的商业空间/书店综合体项目案例分享:
项目简介
过去30年,深圳的常住人口从30万人激增至1400万人。二三十岁的年轻人占总人口的比例高达65%,这在中国独一无二,赋予了深圳这座城市蓬勃的活力。深圳湾万象城商业综合体地处核心发展区域,集酒店、住宅、体育设施及办公楼于一体。池贝知子在三楼打造了一家面积为2475平方米的书店综合体 — 前檐。
The Project
Over the past thirty years, the population of Shenzhen has exploded from 300,000 to1,400,000 people. It is unique among Chinese cities that sixty-five percent of these residents are in their twenties and thirties, giving it a powerful new energy. The MIXC (Shenzhen Bay) commercial complex is located in a development area facing Shenzhen Bay where hotels, residences, sports facilities, and office buildings are clustered. We designed the 2,475 m2 bookstore on the third floor of this complex, called Yan.
“檐”是传统中国屋顶向外突出的边沿部分,寓意东方文化扩展至全球。项目取名“前檐”,体现了业主站在文化前沿的前瞻视野。
The store’s Chinese name is 前檐, pronounced “qianyan.” “Yan” is the word for the decorative outer edges of eves on traditional Chinese buildings, which symbolize the East’s extension into the broader world. The owners of the bookstore chose this name because it represents their forward-looking vision of being at the leading edge of culture.

∇ 夯土墙

项目及设计理念
过去几千年来,中国文化一直影响着日本乃至全世界。近几年书店在中国各大城市全面开花,普遍极具美感和震撼力。池贝知子认为,在深圳这座发展潜力无限的城市,珍视中国的原创性和个性以及探索全球化语境下东方的神秘形象尤为重要。
Store Concept and Interior Concept
For many thousands of years, China has been making outstanding cultural contributions to Japan and the rest of the world. Recently, bookstores have been opening all over China which on a surface level are beautifully and strikingly designed. However, we felt that especially in this proactive city, it was important to value China’s originality and individuality, exploring mystical images of the East in the context of globalization.
池贝知子以中国文化的基础 — “东方生活”为理念,希望设计出一个可以让人们深刻自我反思、创造自己独特故事的空间。项目还定位于为人们提供一个“打破思维边界、发现自我”的场所。为实现这一点,她把书店打造成了一个可以感受禅宗佛教平静、庄严精神的地方。
Taking as our theme the concept of “Life in the East”, which lies at the base of Chinese culture, we aimed to design a space in which visitors could engage in deep self-reflection and create their own unique stories. “Think Borderless, Discover Yourself” is the sub-concept and it expresses the shop’s identity as a place for endless self-discovery. To achieve this, we designed the bookstore to be a place where you can feel the calm and dignified spirit of Zen Buddhism.
∇ 夯土墙


∇ 禅意咖啡吧

“打破思维边界、发现自我”的空间
空间以“禅”为理念,旨在通过一面长夯土墙将书店与外面喧嚣的世界隔离,让人联想到地下层。夯土墙融合了琥珀色、乳白色等不同色调的土壤。自然土壤的色调构成了整个空间内部配色方案的基础。以书店为焦点,分布在其周围的店铺使用了相同色调,相互协调,融为一体。
A Space to “Think Borderless, Discover Yourself”
The interior, with “Zen” as its concept, is devised to make the inner space a very different world from the lavish outer space, by closing off the bookstore with a long facade of rammed-earth wall, reminiscent of layers of deep strata. The rammed-earth wall incorporates soils that varies in color from amber to milky white. These shades form the base for the color scheme inside the store, which was selected entirely from natural earth tones. The bookstore is the focal point, and the tenant stores have been tied in by using the same color tones.
∇ 禅意咖啡吧


∇ 禅意咖啡吧:盆景 (创作:SHEN LIEYI)




仿意大利洞石肌理的瓷砖覆盖地面,呈现出土壤经过多年硬化的视觉效果,表达了日积月累的理念。书架的金色色调源自地下矿物,精致的金属质感和细长的形态充满灵性。通过最大限度地弱化这些细薄书架的存在,设计传达了引领人们沉浸于书海的理念。
Tile in a mock Italian travertine pattern covers the floor, expressing the idea of accumulation through marble’s visual representation of earth hardening over many long years. The gold color of the bookshelves derives from the image of minerals within the earth, while the slender, delicate metal shelves express spirituality. By nearly eliminating the presence of these exceedingly thin shelves, the design conveys the concept of immersing oneself in a sea of books.
∇ 字母艺术(创作:STEPHEN ORMANDY)

∇ 字母艺术 & 图书区


∇ 书架

∇ 小书屋

∇ 收银区

∇ 收银台

空间内安装了五件契合设计理念的定制原创艺术品。每件艺术品都有一个与空间形态及理念相匹配的主题,是表达全面世界观的重要元素。活动区和小型聚集区提供了互动、交流想法及信息的场所,消费者可以在这里不断邂逅全新的体验。
We installed 5 custom-made original artworks matching the concept. Each piece of art has a theme to match the pattern and concept of the space, and are important elements to help to express a comprehensive world view. The event area and small gathering space are for a variety of events to interact and exchange information. It was devised to include practical ways to transmit ideas and information so that customers will always have new encounters and experiences.
∇ 电梯厅



∇ 唱片区的休闲&阅读空间

∇ 服务台

∇ 从中药店看图书区

∇ 中药店


∇ 书架旁边的汉字雕刻艺术(创作:Yoichiro Otani)

前檐是一个邂逅智慧源泉、发现自我的空间。设计师希望人们在这里可以静下心审视自己,体验一个全新的世界。
“Yan” is a space to encounter the fountain of wisdom and search for oneself. It is also a space to feel a part of the warm earth itself. We hope that visitors will have a have a quiet contemplative experience and discover a new world within.

∇ 发光的格状柱


∇ 吧台


∇ 活动区域




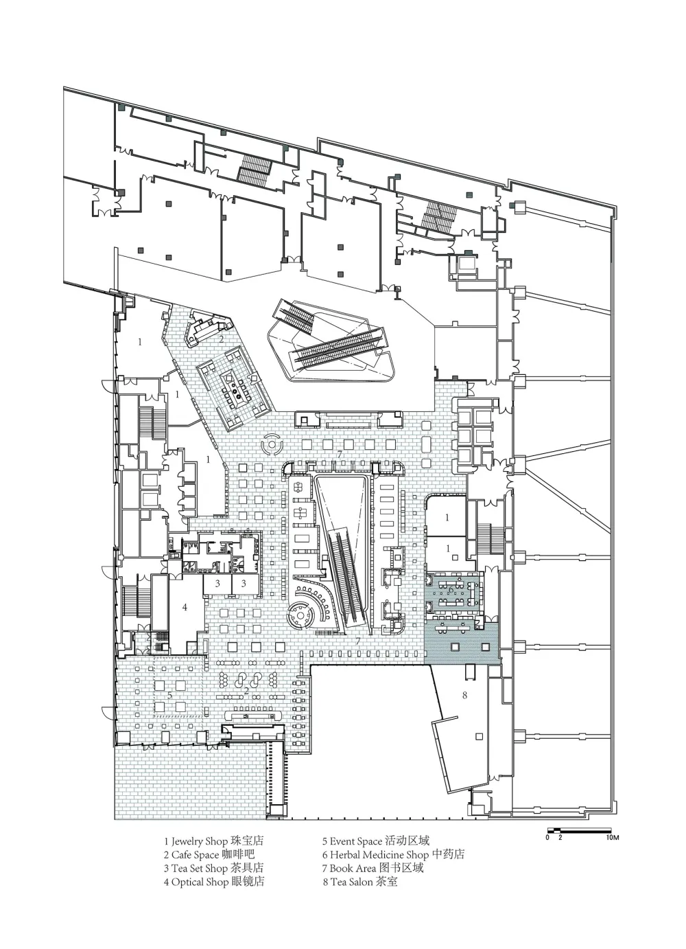
∇ 平面图

主要项目信息
项目名称:前檐
项目地址:中国深圳市南山区粤海街道科苑南路2888号深圳湾万象城
开业日期:2018年12月
项目面积:2475平方米
室内设计:池贝知子/ ikg inc. (http://ikg.cc)
业主:华润置地
摄影:Nacása & Partners Inc.
合作设计公司:ARTERIOR Co., Ltd.
灯光设计:sola associates
平面设计:ujidesign
Project Name: Yan
Address: No. 2888, Keyuan South Road, THE MIXC (SHENZHEN BAY), Nanshan Disctrict, Shenzhen, China
Open: December 2018
Sales Floor: 2,475 m2
Designer: Tomoko Ikegai / ikg inc. (http://ikg.cc)
Client: China Resources Land Limited
Photographer: Nacása & Partners Inc.
Design cooperation: ARTERIOR Co., Ltd.
Lighting: Sola Associates
Graphic Design: ujidesign
设计师简介
ikg inc.总裁池贝知子设计了众多住宅,并在国内外打造了很多商业设施。知名代表作包括二子玉川茑屋家电、乐天荒井度假村大堂、B&B Italia东京展销厅、代官山T-SITE书店(担任创意总监)等。
她在西安打造的言几又 · 迈科中心旗舰店获评 “2018年度中国最美书店”奖。目前池贝知子正在北京设计一家以书店为中心的商业综合体,预计将于2020年揭开面纱。
代表作品
2011年 T-SITE书店/代官山
担任书店的创意总监,对空间设计、活动内容、环境及服务进行全方面把控。
2015年 茑屋家电/二子玉川
2016年 B&B Italia展销厅/东京
2017年 东京政策研究基金会
2017年 BLUE TERRACE Café /雅加达
2018年 Lotte Arai Resort /长野县
2018年 言几又 · 迈科中心旗舰店/西安
2019年 前檐/深圳
2020年 北京一家商场
荣誉
2010年 安德鲁•马丁年度室内设计师大奖(伦敦)
2014年 安德鲁•马丁年度室内设计师大奖(伦敦)
2016年 日本室内规划大奖
2016年 日本JCD商业环境设计大奖金奖+近藤康夫奖
2016年 日本DSA空间设计大奖银奖
2016年 安德鲁•马丁年度室内设计师大奖(伦敦)
2016年 新加坡设计卓越大奖
2018年 安德鲁•马丁年度室内设计师大奖(伦敦)
2018年 中国最美书店(言几又·迈科中心旗舰店)
公司地址
地址:日本东京市涩谷区惠比寿1-13-6,伊藤大厦2号楼6层,150-0013
电话:+81-3-6277-3544
公司网站: http://ikg.cc
About the Designer: Tomoko Ikegai
President of ikg inc., Tomoko Ikegai has designed many houses, as well as domestic and overseas commercial facilities, such as “Futakotamagawa Tsutaya Electrics”, the lobby of the “Lotte Arai Resort”, and “B&B Italia Japan Showroom” etc., orchestrated the overall creative direction of “Daikanyama T-Site”.
The “YJY Maike Centre Flagship” in Xi’an, China, won the 2018 “most beautiful bookstore in China” award. Currently she is designing a commercial complex centered around a bookstore scheduled to open in Beijing in 2020.
Works
2011: Daikanyama T-SITE
Responsible for creative direction of the entire facility, from space design such as architecture and interior, to event content, environment and service
2015: Futako Tamagawa “TSUTAYA ELECTRICS”
2016: B&B ITALIA Tokyo showroom
2017: The Tokyo Foundation for Policy Research
2017: BLUE TERRACE Café in Jakarta
2018: Lotte ARAI RESORT in Nagano
2018: YJY MAIKE CENTRE FLAGSHIP (STORE) in Xi’an
2018: Yan in Shenzhen China
2020: Beijing shopping mall will open China
Honors
2010 Andrew Martin Interior Designer of the Year Award / London
2014 Andrew Martin Interior Designer of the Year Award / London
2016 4th Interior Planning Award 2016/Japan
2016 JCD Design Award 2016 Gold Award +Yasuo Kondo (Tsutaya Electrics)/Japan
2016 DSA Design Award 2016 Silver Prize (Tsutaya Electrics) / Japan
2016 Andrew Martin Interior Designer of the Year Award / London
2016 Design Excellence Awards 2016 (Tsutaya Electrics) / Singapore
2018 Andrew Martin Interior Designer of the Year Award / London
2018 The most beautiful bookstores in China (YJY MAIKE CENTRE FLAGSHIP STORE) / China
Office Location:
ikg inc.
Address: 6F Ito Bldg. 2, 1-13-6 Ebisu, Shibuya-ku, Tokyo, Japan 150-0013
Tel: +81-3-6277-3544
URL: http://ikg.cc

