感谢来自 弄木人文空间 的商业空间项目案例分享:
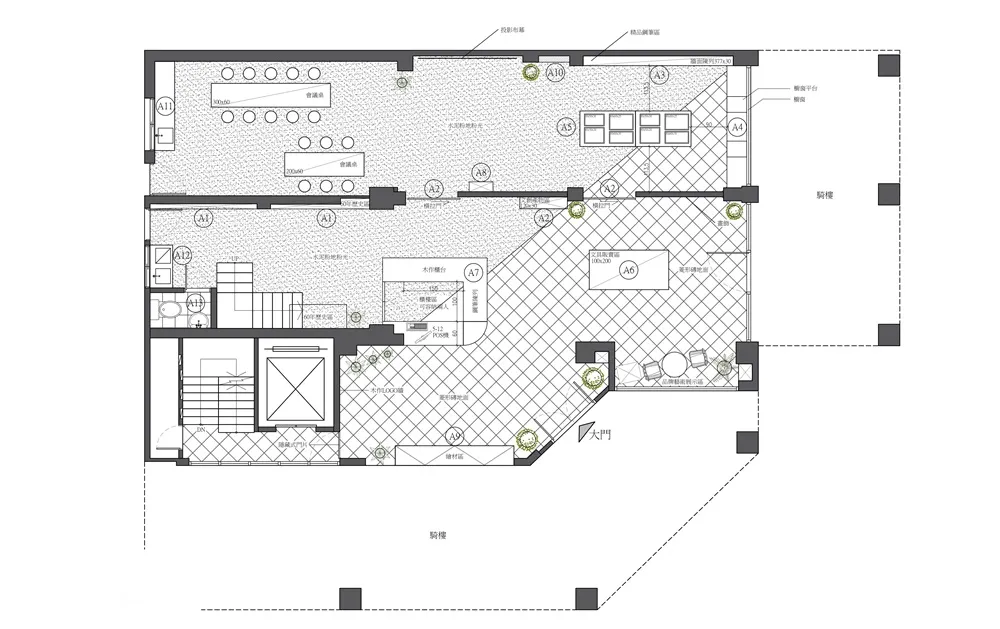
前区文具贩卖区、结账柜台区、钢笔刻字区、儿童文物区、60年历史产品陈列区、古董原字笔制笔机器区、古董制笔所需工具陈列展示区、60年所有年份钢笔柜展示区、新品钢笔柜展示区、课程活动区。


本案为改建1951年代至今的台湾老字号文具店,业主期望除了贩卖自制原子笔、钢笔等商品外,新旗舰店亦能承载传统文化的教育功能。我们将S.K.B六十年品牌所欲传达的流畅、知性、美感(S=smooth、K=knowing、B=Beauty)转化为空间语汇,沿用台湾在地元素,如:老式窗花、玻璃砖、抿石子等等,重新组构、运用在柜体、橱窗、地面、角落,成为新旧空间交融里的记忆符号。


以极简台式设计风格定调,并以“书写文化”为精神,统合大小展区,大量的白色、灰色与浅木色等朴素的材料质感砌筑天地壁,让场域主体能被清楚呈现:古董制笔机器、工具、有历史的钢笔、原字笔的流年岁月,分置在临窗处、中央展区与历史展示专区,让商品在具文化脉络的空间氛围里,易于被大众接触与拥有。


以异材质拼贴的柜台为中心,天花板上的六角型长型轨道灯微微暗示格局分布,陈列架沿着轴线展开,平台式、壁挂式陈列框架以其适切比例切划以符合产品尺度,线条纵横拉出时代美感,木、铁、玻璃,轻盈化柜体,既复古又具现代洗炼感。


更新装修店面为一个跨时代意义的空间,大部份维持建筑原尺度,仅部分更动室内墙桓,让开阔与隐蔽性更为分明,并修复旧大楼的外观与骑楼、改善入门动线与门框形制,大面的落地窗,窗棂几净,将室外的在地街景融入室内而无界线感,仿若时代总是以无痕的方式滚动生活与文明,而复古情怀总是不落伍地成为超越时空的珍贵介质。












∇ 平面图

完整项目信息
项目名称:老笔店新创生 Renovation of an Old Pen Shop
设计公司:弄木人文空间
联系方式:nongmu107@gmail.com
设计主创:庄舒云 Joye Chuang
软装布置师:刘文婷 Celine Liou
设计时间:2017年2月至2017年4月施工
完工时间:2017年5月完工
项目地点:中国台湾高雄市盐埕区
项目面积:60坪(182平米)
材质:白栓木实木钢刷木皮、耐燃美耐皿、石材、烤漆铁件薄板、桦木夹板、铁刀实木、西班牙壁砖、老式花窗、花式玻璃砖、抿石子地面

