感谢来自 平介设计 的商业空间(首饰专卖店)项目案例分享:
钻石,坚固,夺目耀眼,一直是人们宣誓爱情时不可缺少的道具。每一件钻石饰品,都会成为每一对新人感情长河中的一个个印记。而钻石从深谷之中被开采而出,经过层层的打磨历练,才最终散发出夺目的光彩。它坚硬无比,却又是爱情中最柔软的象征。
Diamonds, hard and shine, have always been indispensable props when people swear in love. Every diamond jewellery will become a mark in the long-term relationship of each couple. Diamonds are mined from the deep valley, through layers of polishing works, finally exudes luster. It is hard, but it is the softest symbol of love.
∇ 打卡点turning tower©姚杰奇Jieqi.Yao

∇ 门面效果store facade ©姚杰奇Jieqi.Yao

场地介绍
Site
项目位于苏州诚品一个开敞的店面,进深6m,面宽9.4m,总面积约60㎡。现状天花深黑色并布有较多的设备管道。珠宝属于目的性消费,在传统封闭式高奢店面的设计场景中,普通顾客在没有特殊购买需求的情况下只会橱窗购物,而不会进入珠宝店进行体验和试戴。我们希望通过店面的设计带动更多非目标群体进入店面中体验珠宝产品,引发购物的欲望,让珠宝成为日常生活中的必需品。
The project is located in an open store in Eslite bookstore, Suzhou, with a depth of 6m and a width of 9.4m,with a total area of about 60㎡. The existing ceiling is dark black with equipment pipes. Jewelry is a purposeful consumption, in the traditional closed high-end store design, the customers mainly do window shopping instead of going into the store for the experience and try-it-on. We want to drive more non-target groups into the store to experience jewelry products through the design, and to generate a desire to shop. Make jewelry a necessity in everyday life.
设计背景
Design background
传统珠宝展陈方式较为独立和单一,仅靠黑色绒面玻璃展示柜进行排列组合,空间单调平庸,缺乏吸引力。作为品牌形象店,如何在60 平的空间中回应众多的需求,并打造互动展陈空间成了设计的要点。
Traditional jewelry store is dull with its exhibition, only rely on different arrangements of black suede glass display cabinets, the space is monotony mediocrity and unattractive. As a new flagship store for the brand, how to respond to a large number of needs in a 60sqm space and create an interactive exhibition space has become the main aim of the design.
∇ 门面效果store facade ©姚杰奇Jieqi.Yao

宝石是如何获得的,只有下过矿洞的人才清楚,宝石往往都藏在恐惧的、幽闭的、充满神秘感的地方,而获取宝石的过程与意义,似乎超越了珠宝本身的价值更具有故事性。普通人只关注珠宝,而有品位的人,追寻的是珠宝背后的故事。宝石通常被平常的石材所包裹,寻宝人只注意了矿洞中的宝石,却忽略了矿穴的迷幻。
How is the gem obtained, only the person who has entered the mine knows. It is clear that the gem is often hidden in a scary, clandestine, mysterious place, and the process and meaning of acquiring the gem seems to go beyond the value of the jewelry itself with more stories. Most people only focus on jewelry, and people with good taste, looking for the story behind jewelry. Gemstones are usually wrapped in ordinary stone, and treasure hunters pay attention only to the stones in the cave, but ignore the beauty of the cave.
概念生成
Concept
矿洞中的轨道流线是连接宝石与珠宝、财富与黑暗的纽带,是空间中特殊的发生器。因此设计通过一条连续的纽带串联起整个空间的各种功能与逻辑:融合珠宝展陈,品牌展示,客户洽谈等多种功能。
The orbital flow in the cave is the link between gems and jewelry, wealth and darkness, and a special generator in space. Therefore, the design through a continuous form to connect the entire space of various functions and logic: jewelry exhibition, brand display, customer negotiations and other functions.
∇ 概念草图With concept sketch ©平介设计Parallect Design

∇ 概念图解concept diagram (gif) ©平介设计Parallect Design

∇ 发生器activator ©姚杰奇Jieqi.Yao

发生器是一条完整的流线型装置,通过高度变化、厚度变化衍生一系功能,并通过造型对空间、流线进行分割。发生器通过细柱支撑,在相应的位置布置展柜、工作台面等店面功能。
深灰色的幽暗背景,银色的钻石纽带在空间中飞舞旋转,顾客自然的被纽带所吸引着,进入展陈空间,欣赏美好的珠宝设计作品。纽带在不同高度自然的形成引入的拱门,平滑的展柜,舒适的顾客服务区,以及最耀眼的螺旋塔冠。
The generator is a complete streamlined device, which derives a system of functions from height change and thickness change. Generator through the support of thin columns, in the corresponding position to arrange display cabinets, work surfaces and other store functions.Dark gray background, silver diamond ties flying in the space, customers are naturally attracted by the bond, into the exhibition space, appreciate the beautiful jewelry design works. The link is naturally formed at different heights to become arches, smooth display cabinets, comfortable customer service areas, and the spiral tower crowns.
∇ 前台展览区front display area©姚杰奇Jieqi.Yao

∇ 前台展览区front display area©姚杰奇Jieqi.Yao

诚品中大多店面以白色为主,木色搭配,相对空间比较均质,缺乏关注点。本案的颜色、造型都大大区别于别的店面,并结合业态之后重新阐述新的空间效果。整个空间被深灰色石材包裹着,一条银色纽带在空中飞舞,如同一个深黑色珠宝盒中散发异彩的钻戒,从形式上隐喻项目主题。
In Eslite bookstore, most of the stores are white and wooden decorated, their spaces are relatively homogeneous, lack of attention. The color and shape of this case are greatly different from other stores, and combined with its industry after re-elaborating the new spatial effect. The whole space is wrapped in dark gray stone, a silver bond flying in the air, like a dark black jewelry box exudes a colorful diamond ring, which is a formal metaphor for the project theme.
∇ 墙面展柜Display box ©姚杰奇Jieqi.Yao

∇ 墙面展柜Display box ©姚杰奇Jieqi.Yao

深灰色石材塑造出如同钻石矿坑般幽暗的背景,饰品展柜在墙面上如同钻石般发出夺目的光芒。深灰色石材墙面采用450*450的基础模数,适应整个空间尺度,同时为珠宝的展陈提供条件。不同区域的基础模块错动咬合,模拟钻石矿坑乱石嶙峋的效果。部分模块则变成了隐藏的抽屉,用于存放日常用的包装礼盒。原始的柱子也被坚硬的石材包裹,形成多媒体展墙。
Dark gray stone creates a dark background like a diamond mine, and the ornamental display cabinet glows like a diamond on the wall. The dark grey stone walls are made of 450x450mm stone pieces, adapting to the entire spatial scale and providing conditions for the display of jewelry. The base modules of different regions are misaligned and snap, simulating the effect of the diamond mine. Some modules are turned into hidden drawers for storage. The original columns are also wrapped in hard stone, forming a multimedia exhibition wall. (With wall picture)
∇ 墙面展柜Display box ©姚杰奇Jieqi.Yao

∇ 墙面展柜Display box ©姚杰奇Jieqi.Yao

∇ 墙面展柜Display box ©姚杰奇Jieqi.Yao

∇ 墙面展柜Display box ©姚杰奇Jieqi.Yao

∇ 纽带展柜Display box in the flowing ribbon ©姚杰奇Jieqi.Yao

∇ 纽带展柜Display box in the flowing ribbon ©姚杰奇Jieqi.Yao

流动的带形展示成为珠宝展陈的主体,通过扭转和高度变化带来展陈空间的引入,舒缓紧凑与高潮。整个纽带流线型的造型,被鳞片般的不锈钢面板包裹,从每一个角度反射出耀眼的光芒。浅色灯带顺着纽带蜿蜒流转,预示着空间的起承转合。
The flowing ribbon becomes the main body of the jewelry exhibition, bringing the exhibition space through twisting and height changes, soothe the compactness and climax. The entire bond streamlined shape, wrapped in scaly stainless steel panels, reflects a dazzling glow from every angle. The two light strips meander along the bond, indicating the beginning and turn of the space.
∇ 入口entrance©姚杰奇Jieqi.Yao

从铺面的西侧,拱起的银色纽带以欢迎的姿态吸引人们进入展陈空间。回旋上升的纽带更是创造了诚品书店中除去大楼梯之外的另外一个拍照打卡点。
From the west side of the storefronts, the silver ties arched to attract people into the exhibition space with a welcoming gesture. The rising link of the gyration is the creation of another photo taking point in the Eslite bookstore.
∇ 交流洽谈区exchange area ©姚杰奇Jieqi.Yao (人像版权已授权Portrait copyright authorized)

∇ 交流洽谈区exchange area ©姚杰奇Jieqi.Yao

进入展陈空间,顾客会感受到被泛光的纽带包裹,沿着纽带前行,左侧是新人们与导购们交谈交换自己对钻戒独一无二设计的看法的地方,右侧则是当季最新的珠宝设计产品。
Entering the exhibition space, customers will feel wrapped in the link of floodlight, along the link, on the left is where couple and shopping guide talk to exchange their views on the unique design of the diamond ring, and on the right is the latest jewelry design products of the season.
∇ 交易接待区exchange area©姚杰奇Jieqi.Yao

∇ 打卡点turning tower©姚杰奇Jieqi.Yao

继续顺着纽带前行,仿佛置身山谷与银河之中,在极小的空间被挤压之后,会来到整个展览的最高潮,纽带盘旋上升,在整个空间中形成一座爱情的灯塔,一如梵誓珠宝的设计理念,平庸终将被美好取代。
Continue along the bond, will come to the climax of the entire exhibition, the bond spiraled up, forming a beacon of love throughout the space, As with the design concept of ONE SWEAR jewelry, mediocrity will eventually be replaced by beauty.
∇ 店内空间perspective view ©姚杰奇Jieqi.Yao (人像版权已授权Portrait copyright authorized)

∇ 展品墙display wall ©姚杰奇Jieqi.Yao

艺术是充满激情与梦想的,而生活则是充满着棱角的,我们希望我们的设计也是一个共存的矛盾体,灵动与肃穆同时在这个小小的店面中存在,发生碰撞,吸引每一位顾客的目光。
Art is full of passion and dreams, and life is full of edges and corners, we hope that our design is also a co-existence of contradictions, the spirit and the quiet at the same time in this small store, collision, attract the eyes of every customer.
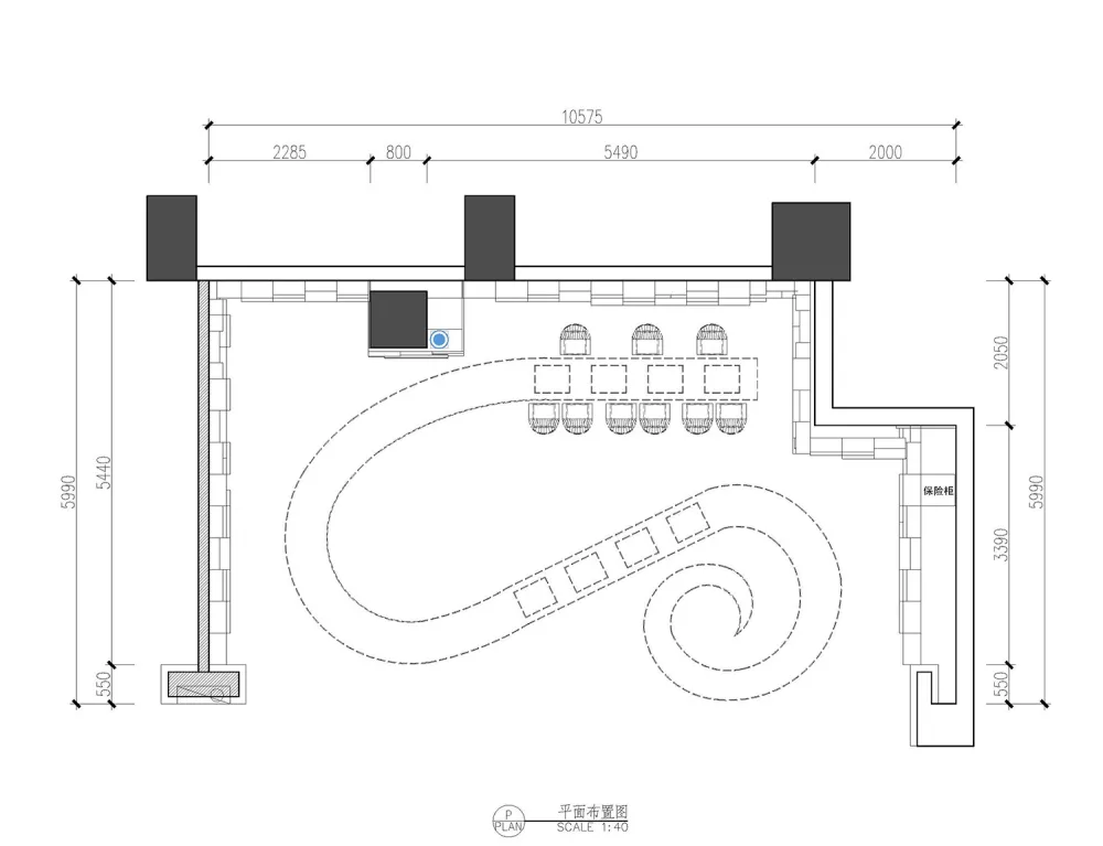
∇ 平面图plan

∇ 纽带尺寸

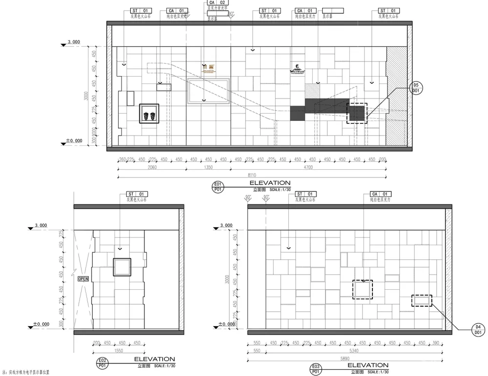
∇ 立面图elevation1

∇ 立面图elevation2

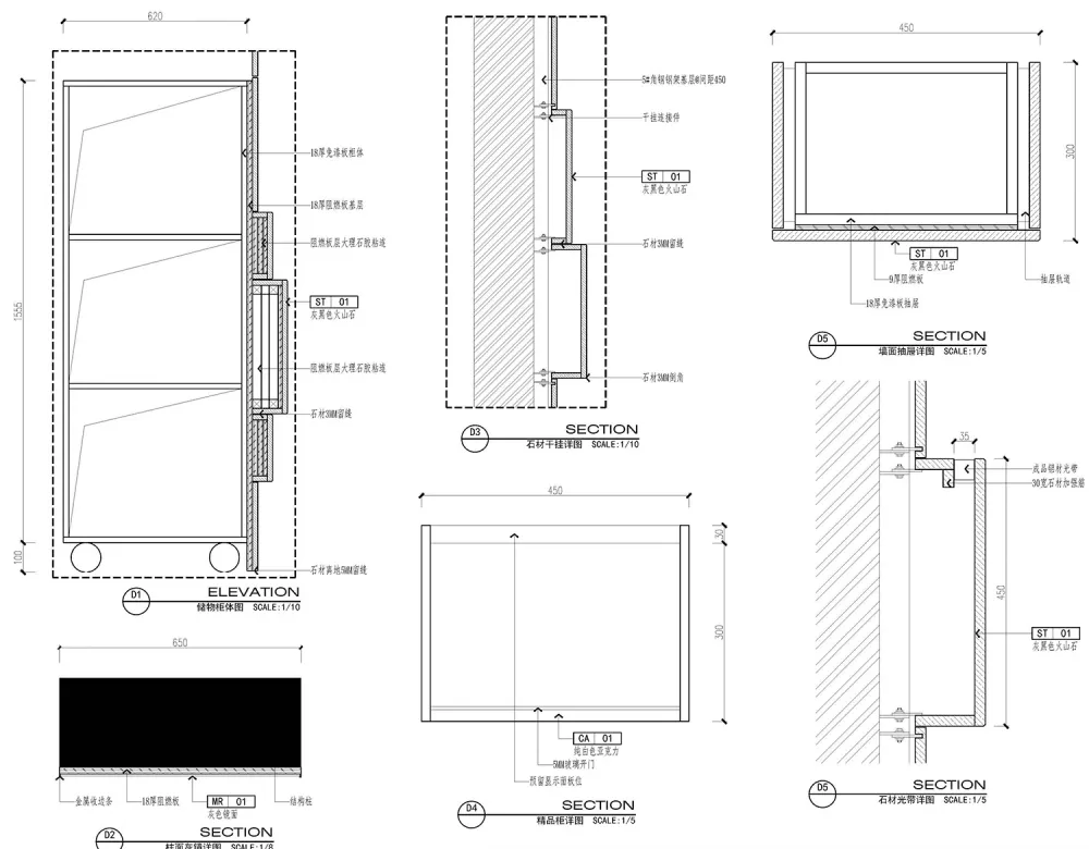
∇ 细部图details1

主要项目信息
项目名称:梵誓苏州诚品店
项目类型:室内
项目地点:中国江苏省苏州市吴中区月廊街8号诚品书店1楼114
设计单位:平介设计(苏州平介建筑科技有限公司)、上海衡泰建筑设计咨询有限公司
项目团队:杨楠,张世杰,黄迪,王乙童,张晨
公司网站:www.parallect-design.com
联系邮箱:info@parallect-design.com
数字化建造:上海欧岩雕塑艺术工程公司
主要材料:不锈钢,灰色花岗岩,白色亚克力
工程造价:26万
建成状态:建成
设计时间:2019年8月
建设时间:2019年9月
建筑面积:60平方米
摄影:姚杰奇,王一翔
Complete project information:
Project Name: Oneswear Jewellery Design Store (Suzhou)
Project Type: Interior
Project Location: 114, Eslite bookstore, 8 Yuelong street, Wuzhong district, Suzhou, Jiangsu province, China
Design team: Parallect Design, Shanghai hengtai architectural design consulting co., LTD
Design Team: Nan.Yang, Shijie.Zhang, Di.Huang, Yitong.Wang, Chen.Zhang
Website: https://www.parallect-design.com/
Contact e-mail: info@parallect-design.com
Digital Fabrication: Shanghai OYOUNG Sculpture Co.LTD
Main materials: Stainless steel, dark grey granite, white acrylic
Engineering: Shanghai hengtai architectural design consulting co., LTD
Project cost: 260,000
Type: built
Design:2019.08
Construction: 2019.09
Area: 60 sqm
Photo: Jieqi.Yao, Yixiang.Wang

