石子九酒店是一个注重交流,互动与娱乐的酒店。主要受众目标是90,00后的年轻游客们。因此我们希望这个酒店与传统酒店相比,除了为旅行者提供基本的住宿服务以外,更加可以提供一个良好的互动平台,成为一个时尚互动为一体的年轻人打卡聚集地。我们也希望酒店能够体现一些当地的民俗民风,能够让游客对重庆这个城市留下一个深刻的印象。
HOTEL STONE 9 pays attention to interaction and entertainment, the primary target is the young tourist born in 1990s and 2000s. Compared with other hotels, we hope Stone 9 could provide a better condition for communications and could be a lively and vivacious gathering place for young people. We also hope the guests feel some local culture during the staying period, so that to give them a profound impssion of Chongqing.
▼休息大厅,lounge ©王学军
建筑的原始平面结构是以一条狭长封闭的走廊连接各个房间与电梯楼梯间,并没有任何的公共区域可以使用,这不是我们所期待的空间形式,为了营造一个更加趣味性的酒店体验,我们尽量的精简房间内部的布局,将原本狭长的走廊变得更加宽敞和富有变化性以及功能性。我们在酒店的公共区域设置了酒吧和餐饮中心,以及散落在各个部位的众多休闲区域,让整个酒店的公共区域看起来更像是一个大型的咖啡厅或者休闲会所,使顾客的身心得到放松。而每一个酒店的房间则显得更随意的安排在公共空间的各处,希望这样可以让顾客更想走出房间在公共区域中自由活动的欲望。
In the original site plan, rooms connected by a closed, narrow corridor, and there is not any public area to use, that is definitely not the space form we were expecting. In order to create a more interesting hotel, we downsize the space of hotel rooms, that makes the narrow corridor to be more capacious and versatile. The hotel has a lobby bar center, and many other lounges distributing in every parts, so that the hotel’s public area looks more like a café shop or leisure club, hoping the guests would like to come out from the private room to spend time freely in the public area.
▼将原本狭长的走廊变得更加宽敞和富有变化性以及功能性,makes the narrow corridor to be more capacious and versatile ©王学军
▼楼梯,staircase ©王学军
我们将公共空间设想为街道的缩阴,这样就让二层房间朝向酒店公共区域进行开窗显得不那么突兀,这样做一方面弥补了二层因为结构的原因所带来的采光不足,另一方面,也能够增加房间与公共区域之间的交流互动性。为了增加公共空间的人气感,我们也将二楼的过道做成了开放式的,让上下之间没有完全的分隔,增加上下的互动可能性,这样空间关系也就变的更加的有趣了。
We imagine the public area as street, so it is possible to open the room windows towards the public area, which in one hand solves the problem of the 2nd floor’s insufficient illumination caused by the existing structure, in another hand that is optimistic to increase the interaction between room and public. We also build the 2nd floor corridors as open spaces, to make the spaces more interesting and connectable.
▼二层房间朝向酒店公共区域进行开窗,open the room windows towards the public area ©王学军
酒店的层高只有4.8米,我们需要在这个有限的高度空间中,隔出两层来设置上下两个功能齐全的独立酒店房间,以及两层房间所需要的全部管线。为了保证两层的房间都有一个舒适合理的房间高度,我们就不能单纯的把2层的地面设定为一个固定的标高,而是仔细分析了每一个房间内不同活动所需要的合理高度,来专门设置1,2层的空间布局。例如我们将2层床的高度以下的空间都分配给一层使用,来增加一层天花的高度,而我们降低一层的厕所,床等空间的天花板高度,来增加二层房间的空间高度。这样的设计,每一个房间中就会出现各种高低不一的空间场所,居住者在实际的居住体验中就很难察觉到原始场地高度不足的问题了。
▼房间剖面图,sections of the hotel rooms
▼酒店房间室内,hotel rooms ©王学军
▼在4.8米的高度空间中,隔出两层来设置上下两个功能齐全的独立酒店房间,the height of the hotel site is 4.8m, and contain 2 floors for independent rooms ©王学军
我们希望最大限度的使用自然光源,因此我们将公共区域的隔断做的更加的通透,并将酒店的主色调定为白色。可以更大限度的折射光源,使室内变得明亮。另外部分房间的门我们也改装成能够透光的形式,这样原本黑暗的走廊在白天自然光线照射下也变得更加的明亮。
We hope the hotel can make use of the natural illumination maximally. So we reduce the possible partitions and use white color to bring in and reflect the natural light. Additionally, some of the room doors are changed to be translucent, to brighten the existing dark corridors through the natural lights.
▼套房,suite ©王学军
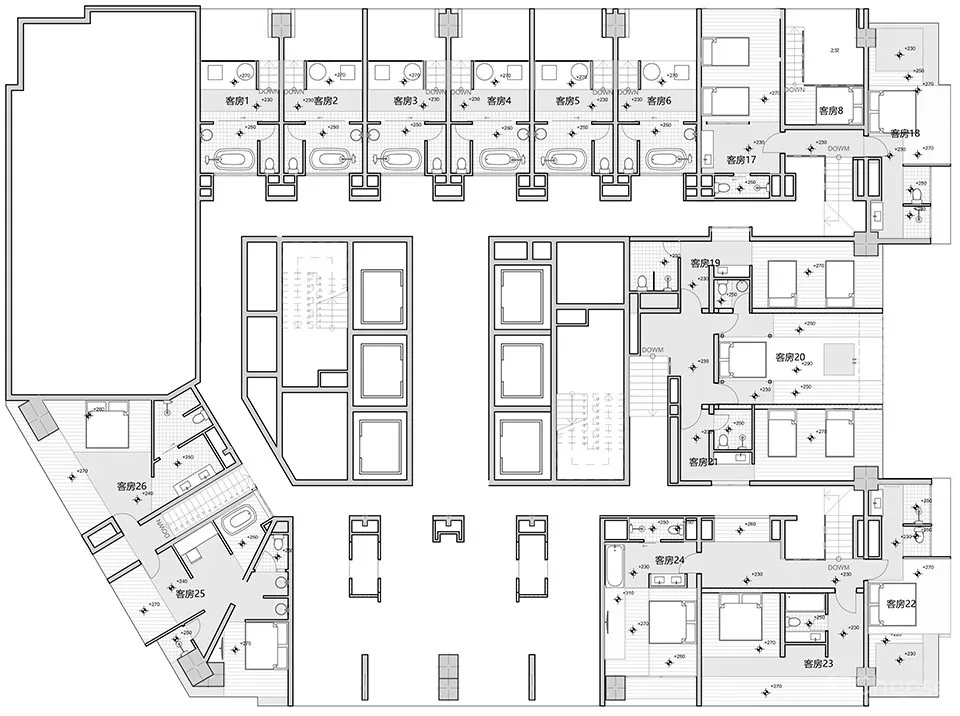
▼一层平面图,1F plan
▼二层平面图,2F plan
项目名称:石子九酒店 / HOTEL STONE 9
设计方:薛今设计 / XUE JIN DESIGN
公司网站:https://xuejin.design
联系邮箱:xue.jin@hotmail.com
项目设计&完成年份:2019
主创及设计团队:薛今设计 / XUE JIN DESIGN
项目地址:重庆市江北区龙湖新壹街D馆4号楼17F / 17F BUILDING D, LONG HU XIN YI JIE, CHONGQING, CHINA
建筑面积:1400m2
摄影版权:王学军 /WANG Xue Jun
客户:石子九酒店/ HOTEL STONE 9
品牌/Brand 产品编号/Product Code
圣像地板/Power Dekor PB7513
慕斯床垫/De Rucci MCW1-073
宣伟/Sherwin-Williams INTERIOR ACRYLIC LATEX
无印良品/MUJI 餐桌 – 4934761182810

