感谢来自 深圳市大森设计有限公司 的商业项目案例分享:
千年历史积累的厚重文化,都藏于一形一貌的遗存中。神秘的古丝绸之路,赋予天水包容万物的精神。上古神话,民族始祖皆倾心于此,纷繁之中,望见来处。











光与影的舞蹈
前厅对称式格局,凸显和谐之美。不规则冰棱柱吊灯,将流水凝聚于此,祖母绿通柜好似巍峨的山峰,静静伫立。在空间中山水纵横交错,犹如走进画卷之中。
起伏的山川绿,纯洁的流水白,典雅的木质棕,稳重的纹理黑,惊艳的中国红,高贵的拉丝金。色彩的艺术指引来者踏入这神秘之境,步步探索。一方长桌,一把古琴,一个倒舂,落座,交谈,甚是欢愉。用中国之道待客而来,真是孔子之说“有朋自远方来,不亦说乎?”。






现代与中式的兼容
细节之处展现品质,每一个部件的组合搭配都为空间的整体艺术氛围贡献。碰撞与融合,现代与历史在物件的碰撞中宛如新生,不争不抢,只待欣赏的人们进入。
书香之中,细节处处可窥。精美的收藏品与书融为一体置于祖母绿通柜,落座处就能看见盆景和山石,自然与文化紧密相连,每一个角度都能成为一幅空间画卷。





虚实相间的造画艺术
自然之光透过栅格缓缓进入,铺设在会客大厅中。不规则透明玻璃将外景融入其中,浑然一体。透过密格屏障隐约看见麦积山石窟壁画,感受历史中天水文化的魅力。
都说诗佛王维创作“诗中有画,画中有诗”,表达的媒介和引导人想象的意境同样重要。在空间这个立体结构中,营造画面感和意境则更为苛刻,需要设计师各方面的实景运用。只有“刚刚好”才能达到最好的效果。















这是一个造梦空间,而梦是各种画面的联想和美好体验。将天水承袭的东方精神注入当代人居想象中,在空间中遇见不一样的画卷,感受另类的真实。

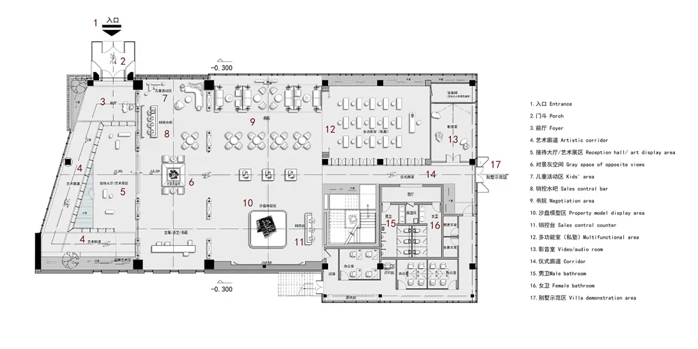
∇ 平面图

完整项目信息
项目名称:天祺集团天水佳•朗园营销中心
项目地址:中国•甘肃•天水
业主单位:天祺集团
业主负责人:孙建琥、王燕、马瑞
建筑设计:悉地(苏州)勘察设计顾问有限公司
景观设计:上海朗道景观规划设计有限公司
室内设计:深圳市大森设计有限公司
软装设计:深圳木锦设计工程有限公司
主创团队:崔端 罗辉 刘旭安 叶少玲 张媛 熊艳红 高望 符智恒 邱丽敏 甘思婷 陈丽文
室内面积:1200m²
主要材料:大理石、木饰面、布艺硬包、拉丝不锈钢等
摄影单位:释象万合

