位于都灵的建筑公司BDR bureau完成了都灵新恩里科费米学校的改造,该项目是2016年“Torino Fa Scuola”国际竞赛的获奖项目。该项目体现了对意大利学校新学习空间的文化、教学和建筑反思。
Turin-based architectural firm BDR bureau has completed the transformation of the new Enrico Fermi School in Turin, the winning project of an international competition launched in 2016 by “Torino Fa Scuola”. The initiative embodies a cultural, pedagogical and architectural reflection on the new learning spaces of the Italian school.


现有的校舍建于20世纪60年代,位于林哥托前工业区和都灵东南部的波河之间的Nizza Millefonti区,现已扩建,并在功能上进行了重新思考。新的教育需求——学校成为社区的一个组成部分并与城市结构融合——代表了意大利学校教育和建筑的未来。
The existing school building, built in the 1960s in the Nizza Millefonti district between the former industrial area of the Lingotto and the Po river in the south-east area of Turin, has been extended and it is functionally rethought. The new educational needs – in which the school becomes an integral part of the community and merges with the urban fabric – represents the future of education and architecture for the Italian school.


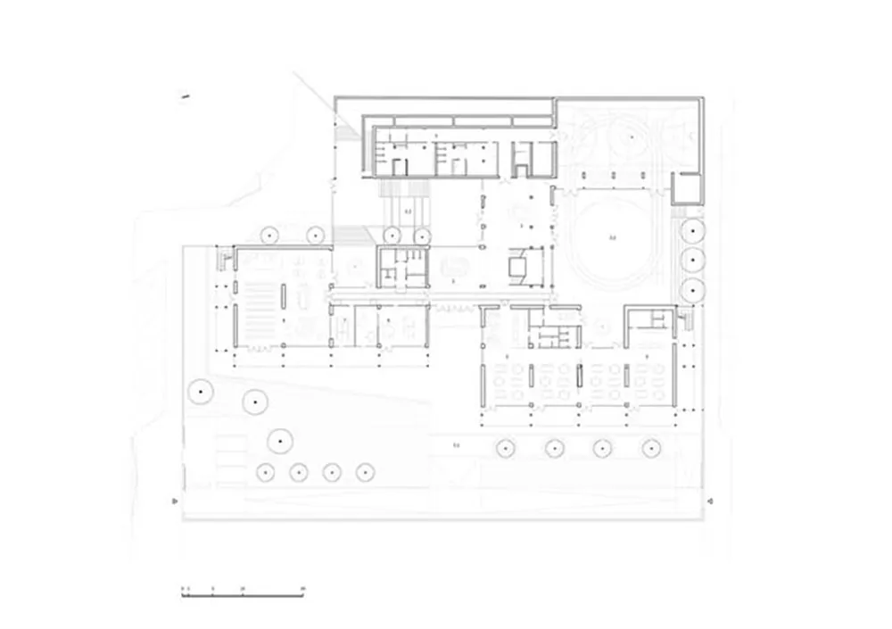
费米中学是一所中学,通过对入口和外部空间的重组,它开始向城市开放。现有建筑的后部成为新的大型主入口,形成一个绿色空间,同时向周边展开,强调社区学校的概念。一楼是公共空间的延伸:整合了一系列对所有人开放的服务,如健身房、图书馆、礼堂和自助餐厅。
The Fermi School, a middle school, opens up to the urban sphere through the reorganization of its entrances and of its external spaces. The back of the existing building becomes the large new main entrance, shaping a green space while unfolding to the neighborhood and emphasizing the concept of a community school. The ground floor is an extension of the public space: integrating a series of services open to everyone, such as the gym, the library, the auditorium and the cafeteria.


BDR bureau主要通过增加功能来运作:一个新的钢结构创造了一个有人居住的围护结构,露台是教学项目的一个组成部分,包含了新的连接空间,并作为一个被动屏障。新框架的模块化勾勒出一个线状主干,由金属网完成,突出了视觉通透性和与外部的关系。
BDR bureau mainly operates by addition: a new steel structure creates an inhabited envelope where the terraces are an integral part of the teaching program, embraces new connective spaces and works as a passive shield. The modularity of the new frame outlines a thread-like backbone, completed by a metal net that highlights the visual permeability and the relationship with the outside.



框架的组成方案也在老建筑中重复使用,其外立面使用了多粒灰泥,产生了深度变化。新正面的立面和面向庭院的立面均设有大窗户,可增强各种不同体积与室外空间之间的关系,为原始布局带来新的含义。
The frame’s compositional scheme is also repeated in the old building, whose façades are treated with a multigrain plaster creating depth variations. The façades of the new front and those facing towards the courtyards maintain large windows that enhance the relation between the various different volumes and the outdoor spaces, bringing new meaning to the original layout.


底楼被设计为市政中心,中庭聚集了各种功能,并与花园和两个入口直接相连。中庭通过垂直元素延伸到高层,楼梯元素唤起了外部建筑语言。灵活的图书馆和礼堂空间、自助餐厅和健身房构成了一楼的公共空间。
The ground floor is designed as a civic center, where the different functions are gathered in the atrium, directly connected with the garden and the two entrances. The atrium stretches to the upper floors thanks to a vertical element, a stairwell that evokes the external architectural language. The flexible library and auditorium space, the cafeteria and the gym complete the public spaces on the ground floor.


在两个较高的楼层,中庭可容纳休闲和集体空间,而教育活动则是按集群组织的——由教室,衣帽间,服务和非正式学习空间组成的空间单元。教室成为内外的交汇点和连接点,保持了与公共空间的视觉联系,并提供了通往露台的通道。就像在实验性航空学校中一样,教育和娱乐活动是在户外进行的。在这些空旷的地方,绿色区域和与周围景观产生了对话,鼓励学生和教授在日常活动中相遇和交流思想,从而增加了巨大的价值。
On the two upper floors, the atrium accommodates recreational and collective spaces, while the educational activities are organized in clusters – spatial units composed of classrooms, cloakrooms, services and informal learning spaces. The classrooms become the meeting point and the linkage between inside and outside, retaining a visual connection to the common space and giving access to the terraces. Just like in the experimental en plein air schools, the educational and recreational activities take place outdoors. In these open spaces, the green areas and the dialog with the surrounding landscape encourage students and professors to meet and exchange ideas in their daily activities, thus adding great value.





∇ 鸟瞰

∇ 总平

∇ 建筑平面



∇ 建筑立面



∇ 建筑剖面


∇ 详图


完整项目信息
项目名称:new Enrico Fermi School
项目地址:意大利都灵
完成时间:2019
建筑面积:5.096 sqm
总面积:5.579 sqm
设计公司:BDRbureau
设计团队:Alberto Bottero,Simona Della Rocca
合作团队:Andrea Galanti,Maria Chiara Mondini
顾问:Emanuela Saporito (social inclusion), Antonio Isoardi e Luca Giacosa (structure), Jacopo Toniolo (susteinability)
客户:Fondazione Agnelli, Compagnia di San Paolo, Comune di Torino
摄影:Simone Bossi + BDR bureau

