该公寓的周边环境在城市规划中被定义为居住区和半工业区,其高度受道路对角线限制和太阳阴影调节而被抑制到较低。从这个意义上说,没有人可以占据上面的空间作为这一规则的副产品。
在日本,城市总是会被废弃的建筑不断翻新。另一方面,天空中的虚空从过去一直存在到现在,并有望延续到未来。
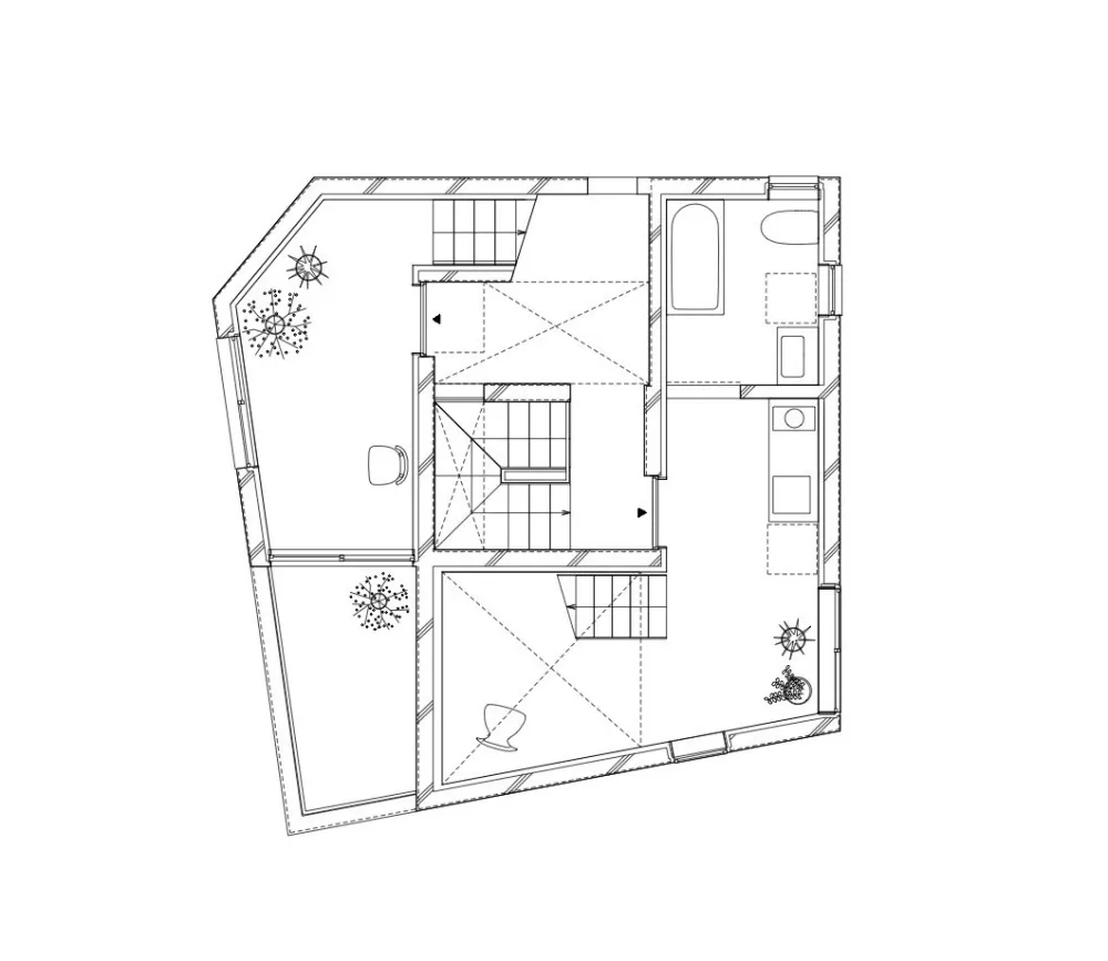
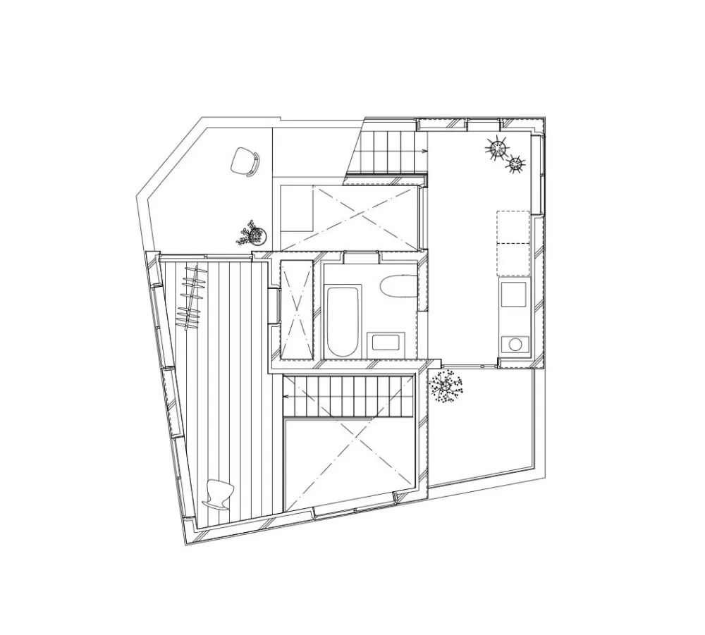
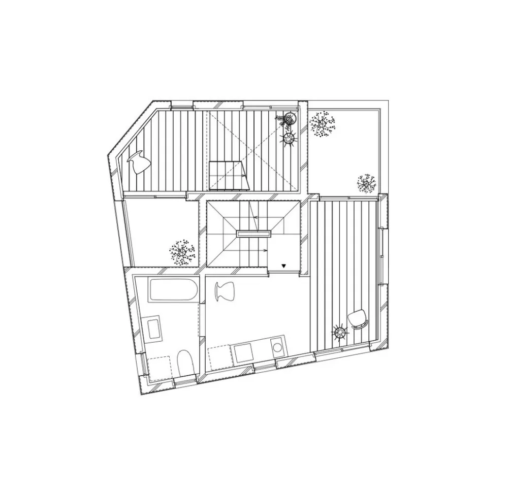
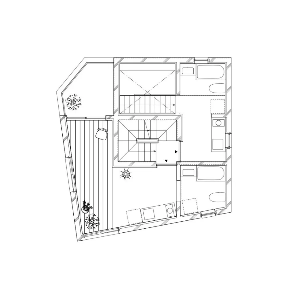
当我在这样一个充满活力的城市环境中设计建筑时,天空中的空隙可以被称为静态的基础。这套公寓由7间工作室组成。它们被堆放在6层,包括地下室。楼层高度被控制在2500毫米,最小的楼梯位于中心。l形单元或maisonnette单元,其中l形空间的移动和重叠包围着楼梯核心。
单元的宽度或多或少为2.5米,但住宅体量较长,其末端基本上是作为露台或浴室开放的。
这种空间组合允许每个住宅都有多个方向的窗户,它们可以完全面向周围的空间,而不会产生建筑的背面。由于每个住宅的宽度都很小,所有的内部空间都被认为是一个周长或窗边。不管你愿意与否,身体内部和窗户之间的距离是如此之短,以至于人必须感觉到要把水洒到外面,或者在身体的感觉中,身体内部的空隙被控制在一个房间里。
▼剖面图
Architects MMAAA
Location Tokiwadai, Itabashi City, Tokyo 174-0071, Japan
Category Apartments
Lead Architect Ryosuke Motohashi Area 220.0 m2
Project Year 2017
Photographs Kenta Hasegawa
Manufacturers Ashford Japan, Nemetschek, Toto, LIXIL , Daiwa Heavy Industry, Acor, Sanei

