Shinbashi是卡尔顿利根街的一家专门做日本烧烤的日本餐馆,餐厅名字翻译过来就是“烤肉”(yakiniku)和东京地区(Shinbashi)的组合。整个空间借鉴了日本传统建筑的方方面面和细节。
Set on Carlton’s Lygon Street, Shinbashi Yakiniku is a contemporary Japanese restaurant designed by Pierce Widera. Specialising in Japanese Barbeque, the name translates to combine ‘grilled meat’ (yakiniku) and the district of Tokyo where barbeque eateries are prevalent (Shinbashi). Aspects and details from traditional Japanese architecture are woven throughout the interior.


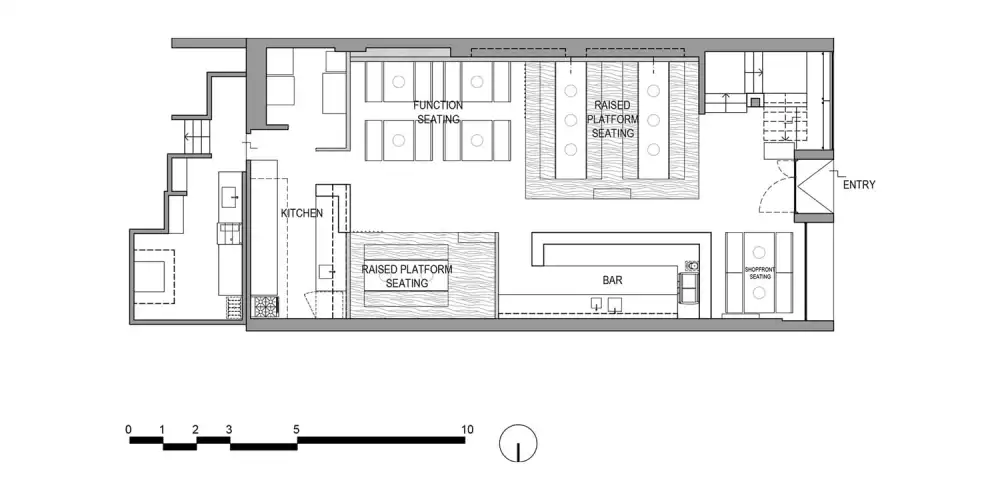
上方悬挂着带有格栅木条的白色照明条,成为空间的焦点。玻璃砖墙充当两个大型宴会桌之间的分隔物,周围环绕着u型内置木凳。其他的座位选择包括客人坐在地板垫子上的传统矮桌,以及在凹坑区域配有长凳座位的小桌子。
An illuminated white bar with gridded timber slats suspended above forms the focal point of the space. A glass brick walls acts as a divider between two large banquet tables, with u-shaped built-in timber benches that wrap around. Other seating options include low traditional tables where guests sit on floor cushions, and smaller tables with bench seats in a sunken pit area.


升高的座位平台覆盖着深色木材,照亮了轮廓,创造了一个盘旋的错觉。桌子上有内置烧烤架,顾客可以自己动手烤肉,在整个过程中始终将重点放在食物上。拉丝黄铜棒是当代对竹子的诠释,被用作定义和分隔餐厅内各种空间的屏风。低垂的吊灯创造了一种氛围,并进一步加强了被照亮的酒吧,这是突出的和地面的空间没有压倒。
Raised seating platforms clad with dark timber feature illuminated outlines, creating a hovering illusion. Tables have in-built barbeque grills for patrons to DIY cook, retaining a focus on food throughout the design. Brushed brass rods, a contemporary interpretation of bamboo, are used as screens that define and separate the various spaces within the restaurant.Low-hanging pendant lights create an atmosphere, and further enhance the illuminated bar, which stands out and grounds the space without being overpowering.






∇ 平面图

主要项目信息
项目名称:SHINBASHI RESTAURANT
项目类型:餐饮空间/日料餐厅
项目地点:澳大利亚墨尔本
设计单位:Pierce Widera
摄 影:Jana Langhorst

