自由的知识殿堂
西安地处中国中心,千年建都史累积成久远深邃的文化体系,如今作为教育重地更承载着中华文明的复兴与文化自信。这样的地域背景赋予西安天然的文创项目孵化力,开创文商结合趋势之先河。
本案即是一座书店主题的商业综合体,以文化+商业的策略性设计,构建多元业态的生活美学体验。其中高18米、长240米的艺术书墙概念堪称创举,为西安乃至中国带来城市商业空间的全新提案。
因应场地特质,化平庸为优势
项目坐落在西安北郊的工业区,并非人潮商圈的核心地,常规的复合式经营显然不足以吸引客流。台湾巨汇设计接手这座已闲置三年的毛坯建筑体,并发掘出未经修饰的原始建筑结构在天光之下展现的力与美。
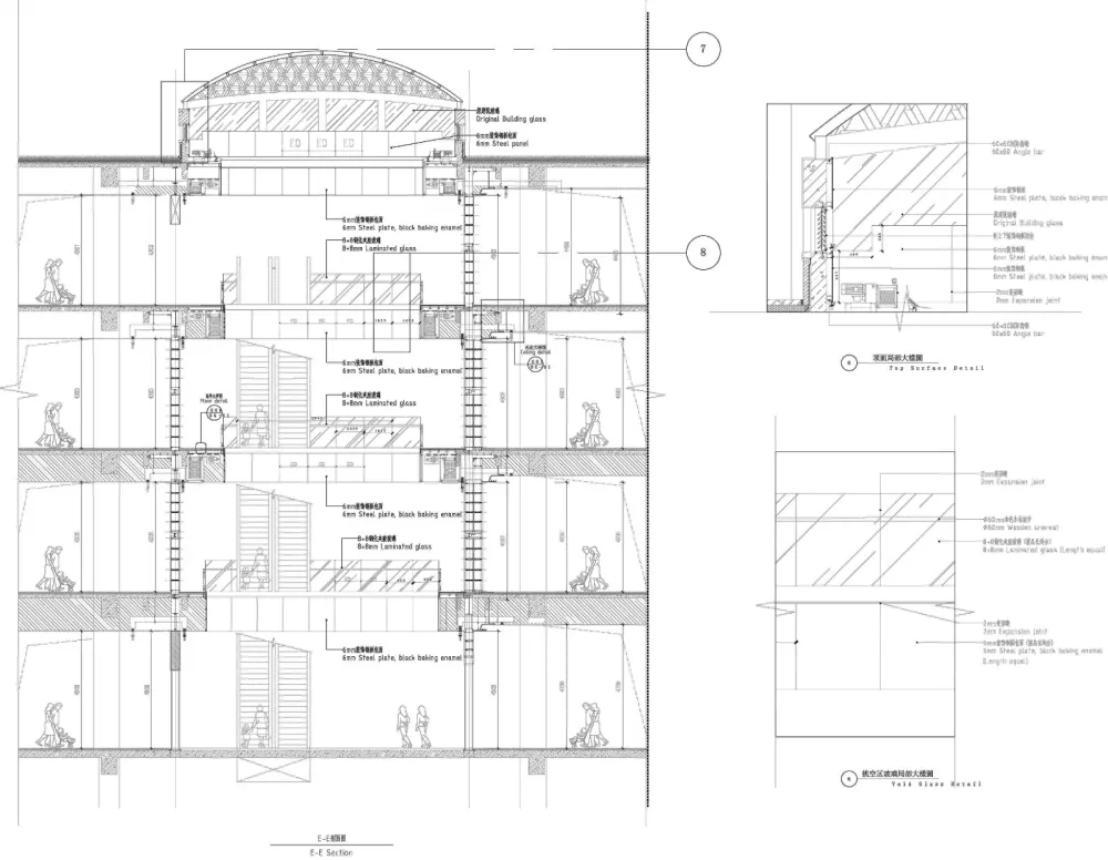
基于南北坐向的狭长场地和四层采光挑空区域,巨汇以五感设计为主轴,展开项目定位策划、商业设计及空间设计。挑空区原本的建筑空间优势得以保留,塑造出强烈的空间体验感。狭长的格局特质被强化,并顺势转化为仪式感的动线体验。
百米书墙构筑商场标识唯一性
在主持设计师程瀚陞看来,要超越地域地段的限制,必须靠文化来使人汇集,因为文化本身没有距离,能够容纳全民参与进而实现最大引流。商场因此化身为以艺术与文学为核心的知识殿堂,将书的主题贯穿于整个空间。一楼到四楼,南面延伸至北面,在漫洒的天光映衬下,巨汇设计置入了两道量体书墙,层高18米、全长240米的尺度为全中国之最,使喧闹的商业空间却有着殿堂般仪式性的感动与震撼。
以人为本,借由五感传递价值
承载数十万册图书的书墙,以钢结构和透明玻璃为材质,除了视觉穿越,也让光线自由漫射在挑空区域,与空间实体交迭出各种形式的语汇。阅读者穿梭在书墙与挑空之间,成为这殿堂景象的一部分。
近4万平方米的空间内涵盖艺术、人文、生活三大元素,将场景化阅读与商业空间完美融合,营造出一个沉浸式阅读情境。以美感为立基的情怀分享,也使这里成为文创和设计师品牌进驻展示创意和理念的最佳平台。
一层平面分区图
二层平面分区图
三层平面分区图
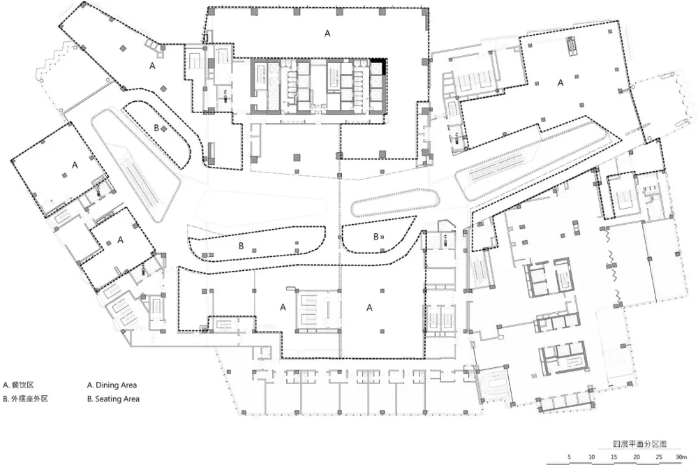
四层平面分区图
项目名称:蓝海风・漫巷
室内设计公司:巨汇设计有限公司
空间创作与商业企划总导演:程瀚陞
设计师:吕欣璇、陈新强
项目地点:中国・西安
项目类型:文化商业综合体(购物中心+书店)
项目面积:36,000 m2
完工时间:2018.12
摄影师:金伟琦


都是宝贵的发自肺腑