这个建筑位于城市的一个非常繁忙的角落,原来是一个旧杂货店。有砖和大开口,快乐的美食实验室肯定会被路过的人注意到。Lab (Lab)是关键词,所以环境应该有这种未完而解构的氛围,在不断的实验和变化中。建筑应该支持酒吧的理念:饮料和美食。
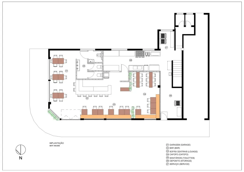
所以,首先要考虑的是如何赋予这个大厅生命,创造不同的环境?为了做到这一点,我们利用这个角落,我们认为是建筑中最高贵的部分,把大厅的区域布置成一个“L”形。所以当厨房和浴室在建筑的中心时,人们可以坐在离街道很近的地方,观看整个活动。
在这个“L”中,我们创造了四种不同的体验美食实验室的方式(有些人甚至得到了亲切的昵称,如“cafofo”、“garage”和“mureta”)。“车库”是一间宽敞的大厅,里面摆放着松木桌子和学校椅子,也陈列着艺术家爱德华多罗德里格斯(Eduardo Rodrigues)直接用水泥砌成的艺术品;吧台,一直是我们的主要焦点,包括中央沙发休息室(mureta);最后一个是亲密的“Cafofo”——有两张社区桌子,更高一些的长椅稍微被金属架子遮挡。
从一开始,快活美食家实验室的提议就是要成为一个与一切都不同的地方。在那里,人们应该喝上半个小时的酒,或者整晚都在调整各种各样的菜肴。那是一种轻松的氛围,但同时又有着它特有的魅力,那就会留下那种“我想再回来!”的渴望。
“cafofo”里衬的凹槽,选用松木、室内植被、彩绘艺术、墙上的灯管,甚至灯光都给环境带来了舒适的空气。其余的则设置了更多的原材料,水泥、铁、原剥皮砖和明显的水泥砌块,具有一些明度和明净度的点,如柜台的白色覆盖物、浴室的六角形地板。
Architects Laje 54 Arquitetura
Location R. Visc. de Inhaúma, 1305 – Centro, São Carlos – SP, 13560-190, Brazil
Category Restaurant
Area 100.0 m2
Project Year 2018
Photographs Levi Mori
Manufacturers Cerâmica Atlas, Portobello

