Loft Junghwa-dong是一栋有30年历史的工业建筑顶层的单卧室住宅。客户是一位单身的职业女性,她对幸福有着强烈的兴趣。在她的要求下,这个双层高的双面绿色墙被创建为住宅的中心。
长2.1米,宽4.5米,绿色的墙壁就像一个屏风,把生活区和入口隔开。绿色墙由56个略有不同的单元组成,共同创造了一个连续的流动。这些部件可以很容易地从墙上拆卸下来进行维修。
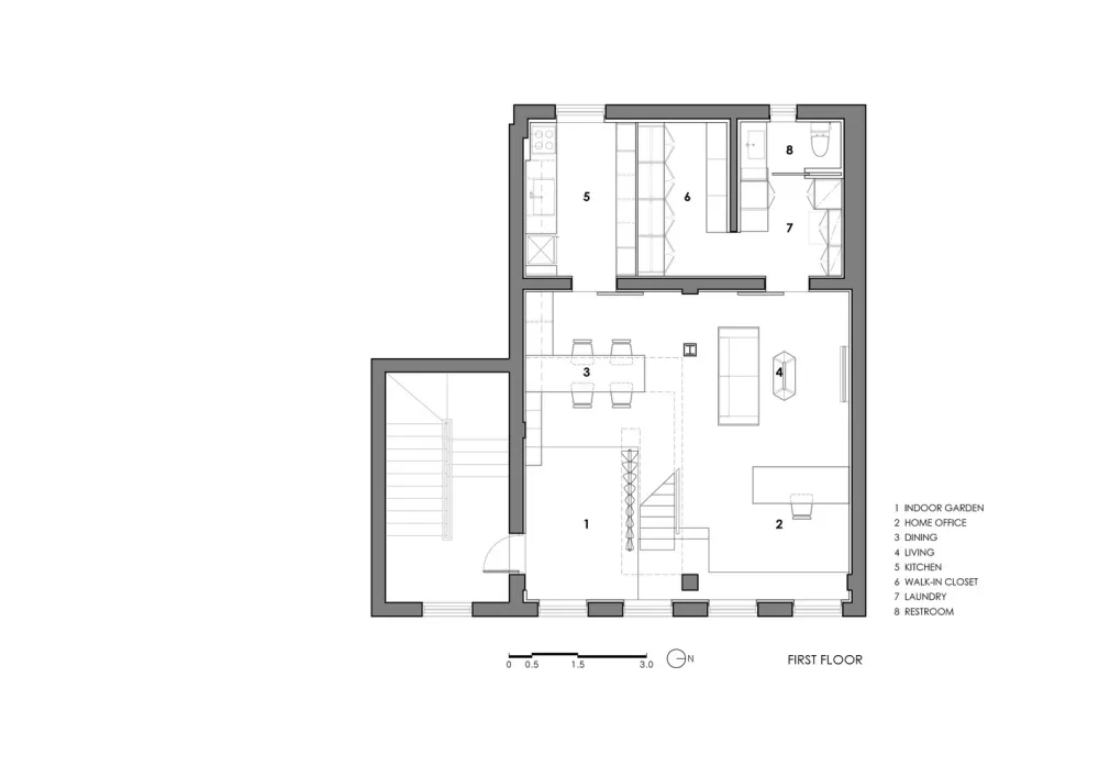
绿色墙壁旁边是一个新的楼梯,连接着楼上的主客厅和卧室。住宅有一个小厨房,步入式衣橱,卫生间,洗衣房,和一个开放式的餐厅和主要楼层的生活区。楼上有一间带浴室的小卧室。
材质面板被选择来模糊新旧之间的区别。混凝土,石灰石彩色瓷砖地板,彩色胶合板,柚木地板创造和谐而不是对比。现有的混凝土结构被选择性地暴露,增加了粗糙度,染色的lauan胶合板和柚木地板增加了空间的温暖。

位置:韩国首尔
设计团队:Taekyoung Lee, Jieun Cha, Sohyun Sung
年份:2019
摄影师:Kyungsub Shin

