该住宅位于一个面积仅为47平方米的三角形场地上,这对于其内部空间的布局和形式而言有着关键性的影响。
The plot geometry and its small size, 47㎡, assume special importance in the typology and form of programmatic distribution.
▼住宅外观,exterior view
每个楼层包含一个独立的功能:首层是工作室;二层是起居室和餐厨空间;三层是卧室;四层是屋顶平台。
One program per floor: Floor 0 – studio, Floor 1 – Living and dining, Floor 2 – Sleeping area and Floor 3 – Roof top.
▼剖面图,section
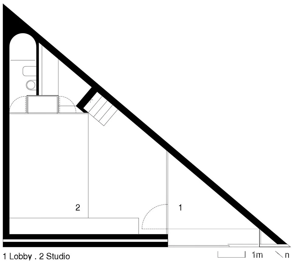
入口位于最底部:一个由金属大门为标志的、带顶的室外空间。私人空间被包围在门内,在保证私密性的同时也为首层空间带来了光线。
▼首层平面图,ground floor plan
The entrance is at the lowest point, creating a covered and exterior area, defined by a metal gate, which at the same time encloses the private space, configures the intimacy of floor 0 and ensures illumination.
▼入口空间,entrance
二层空间拥有3.2米的自由层高,客厅与餐厅通过局部抬升的地面得到区分。巨大的一体化墙壁强调了空间的规模感。沿墙分布的混凝土板提供了水平方向的置物空间,例如书架、电视柜和唱片架等。
▼二层平面图,first floor plan
An open space the size of the lot configures the floor 1. With 3.20m of free height is only differentiated the living and eating area by the change of floor. The scale of the room is enhanced by the large back-to-ceiling backrest. The matter of the walls – concrete – also goes along the floors, building functional horizontal planes. On this floor, a shelf for books, tv or audio.
▼客厅与餐厅通过局部抬升的地面得到区分,the living and eating area is differentiated by the change of floor
▼餐厅,dining room
▼楼梯和墙面细部,stair and concrete wall
三角形平面带来了独特的角落空间。厨房背景墙和镜面的搭配让尖锐的角度变得更加戏剧化。在另一个角落,金属楼梯“栖息”在一个被天窗照耀的光井中,与屋顶平台相连接。
In a triangle plan, the corners assume special importance. The sharp angle of the kitchen area is dramatized with the backrest and the introduction of a mirror. At the other acute angle, there is the staircase. A metal piece that “inhabits” this void of light that seeps from the skylight leading to the terrace.
▼装有镜面的厨房角落,the sharp angle of the kitchen
▼沿墙分布的混凝土板提供了水平方向的置物空间,the matter of the walls – concrete – also goes along the floors, building functional horizontal planes
▼二层另一角的金属楼梯,the metal stair at the other acute angle
▼楼梯“栖息”在被天窗照耀的光井中,the stair “inhabits” a void of light that seeps from the skylight
▼餐厅,dining area
▼“角落”细部,”corners” detailed view
卧室所在的楼层高度为2.4米,垂直于三角形斜边的墙壁带来了一个朝南的角落空间。
▼三层平面图,second floor plan
On the floor of the rooms the free height is 2.40m and the angle is redefined, this time perpendicular to the hypotenuse of the triangle. Turning south.
▼卧室,bedroom
▼洗手池,wash area
屋顶平台充分展现了空间的连续性,为住宅提供了一个真正的绿色户外空间。
▼顶层平面图,rooftop plan
CASA TRIANGULAR
2017-2018
140m2
LISBOA
Photographic Credits: DANIEL MALHÃO

