隈研吾建筑都市设计事务所 (Kengo Kuma & Associates) 在土耳其埃斯基谢希尔设计的Odunpazari现代艺术博物馆现已向公众开放。这座城市不仅有着著名的大学,还到处都是活泼的年轻人。该博物馆在设计上借鉴了传统奥斯曼帝国木制建筑的形式和规模,力图将其打造成为一个新的文化场所,并融入到现有的街道景观之中。
这座新的博物馆位于被称为 Odunpazari (土耳其语“木材市场”)的附近,这是这个城市中的一个很私密的地方,有着蜿蜒的街道,还有历史悠久的奥斯曼帝国家庭住宅,它们的上层都是悬臂式的。在该博物馆的设计中很好的运用了这种传统的设计方式。

“我们采用了一种聚合的设计策略;把一些小的箱子堆叠起来打造出一个城市规模的建筑。”建筑师说道。
不同尺寸的堆叠箱子同时也反映了沿街道周边住宅建筑的规模大小,并且建筑物以向上的形式也是在“宣布自己就是该地区的新文化地标”。


在建筑物内部,各种大小不一的画廊空间为艺术展览提供了灵活方便的条件;底层的设计可以用于举办大型艺术装置展,而上层较小的空间里将会举办更为贴心的展览。一个由木块构成的中央中庭连接着每个楼层,并允许自然光从上面的天窗穿过照进建筑物内部。









∇ 区位图 site plan

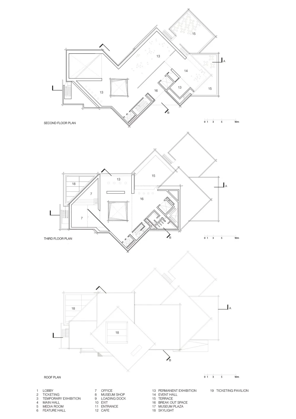
∇ 平面图 plan


∇ 剖面图 section


∇ 立面图 elevation

∇ 轴测图 axonometric diagram


完整项目信息
项目名称:OMM(odunpazari现代艺术博物馆)
项目地址:土耳其,埃斯基谢希尔省,埃斯基谢希尔
建筑公司:隈研吾建筑都市设计事务所
设计建筑师:kengo kuma and associates (KKAA)
合作伙伴:Yuki Ikeguchi
项目经理:Yasemin Sahiner
客户:Polimeks Holdings, INC.
结构工程师:SIGMA
机械工程师:TEMA Engineering and Consulting Trade Ltd.
总承包商:Polimeks Holdings, INC.
占地面积:1,220 平方米
总楼层面积:3,582 平方米
建筑面积:16360.0 平方米
摄影版权:batuhan keskiner

