这个项目进展很快。客户要求在3个月内完成建设。我们花了1.5个月的时间来构思这个概念,然后又花了1.5个月的时间来进行施工。由于预算很小,所以我们试图用简单的材料创造一个独特的空间。
This project flew very fast. The client demanded to complete the construction in 3 months. We developed the concept for 1.5 months and spent another 1.5 months on construction work. The budget was small so we tried to create a unique space using simple materials.
施工过程非常紧张,但我们设法按时完成施工,客户非常满意。 主要想法是在敖德萨开一个不像其他理发店的地方。
The construction process was very stressful but we managed to finish the construction on time and the client was very satisfied. The main idea was to open in Odessa a place unlike other barbershops.


我们试图从概念中删除所有不必要的细节,创造纯粹的极简主义,并将焦点从内部转移到在其中工作的人,因为真正的专业人员在那里工作。
We tried to cross out all unnecessary details from the concept, create pure minimalism and shift the focus from the interior to the people who work in it, because real professionals work there.
















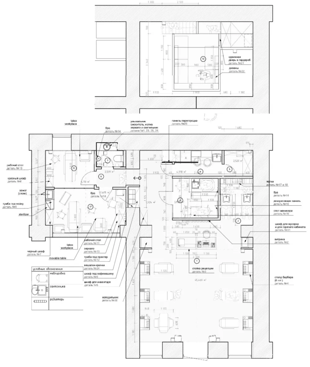
∇ 平面布置图

主要项目信息
项目名称:KULT barbershop
项目位置:乌克兰敖德萨
项目类型:商业空间/理发店
完成时间:2019
项目面积:110 sq. m.
设计公司:Sivak+Partners
设计团队:Iva Gaidarshy, Dmytriy Sivak, Kyrylo Verbych
摄影:Anton Garets

