Pitanga Filmes办公室的设计反映了该公司在多功能工作区内的身份,团队可以在这里创建并欢迎客户和朋友。
The Pitanga Filmes office was designed to reflect the firms identity within a multifunctional workspace where the team can create and also welcome clients and friends.
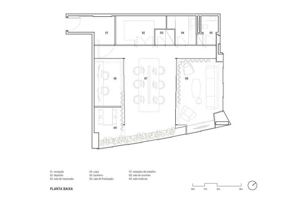
即使有一个独特的活动计划和广泛的需求,主要的概念是把所有的工作领域连接起来。后期制作室、会议室和多功能空间被组织在主空间内的盒子里。这些区域的悬吊结构和轻天花板也容纳了黑色天鹅绒窗帘和可完全打开或关闭的滑动玻璃板。
Even with an distinctive activity program with a wide range of needs, the main concept was to have all working areas connected. The post production room, meeting room and the multiuse space are organized in boxes inside the main space. The suspended structure and light ceiling of those areas also holds the black velvet curtains and the sliding glass panels which can be completely open or closed.


接待室、厨房、卫生间、打印室和储藏室都隐藏在一个大水泥瓷砖平面内。配置该面板的门系统是由办公室开发的,并负责组织进入这些空间的入口。面板的亮点是接待门,两面都覆盖着瓷砖,连接接待的灰色瓷砖和主面板的红色瓷砖。
The reception, kitchen, restroom, printing room and storage are hidden by a big cement tile plane. The door system that configures this panel was developed by the office and organizes the accesses to those spaces.The highlight of the panel is the reception door which is covered in tiles on both faces, connecting the grey tiles of the reception with the red tiles from the main panel.
会议室是一个大客厅,团队可以展示他们制作的视频,也可以举行非正式会议。这些家具全部由巴西设计师设计,铺设在波斯地毯上,强化了空间的特色。
The meeting room is organized as a big living room where the team can exhibit the videos they produce and also do informal meetings. The furniture was all designed by brazilian designers and its layed over a persian rug that reinforces the identity of the space.


白色的工作台和办公椅在空间中突出,主要由深色材料构成。在晚上,这个巨大的白色元素就像一个灯笼反射自己的光。
The white working table and the office chairs stand out in the space mainly configured by darker materials. At night, this big white element works as a lantern reflecting its own light.















∇ 平面图

∇ 轴测图

∇ 详图


主要项目信息
项目名称:Pitanga Filmes Office
项目地点:巴西
项目类型:办公空间/现代风格
项目面积:92平方米
完成时间:2019
设计公司:Arquitetura Nacional
摄影:Cristiano Bauce

