感谢来自 今古凤凰空间策划机构 的住宅项目案例分享:
本案业主是一对园林设计师,对生活向往宁静,喜欢一切自然的事物。空间结构非常有特点,地下室、一层、二层都是错层结构,让每一楼层与上下空间都有互动,让人与人、人与空间多了几分场景交流,这就是空间本来该有的面貌,处处流露着生活的细节。整个空间以中间天井与楼梯展开思索,天井种下一棵老宅挪过来的绿枫树,地下室房间、一楼客厅的茶区、二楼厨房都以天井绿植展开,每处都与自然和谐融合,充满着生活的气息。
The client is a landscape designer couple, who have a particular affection for nature and a serene lifestyle. The interior space consists of one basement and two floors on the ground, and each floor features staggered interior structures, which enriches the interaction between the occupants and spaces. The atrium and staircase are in the central area, with a green maple brought into the atrium from the previous residence. The underground rooms, tea drinking area and kitchen are dotted with plants. Each area within the space well integrates with nature and is awash with a living atmosphere.



一楼整个客厅保留原有墙体结构,用白色拉丝艺术漆作为主基调,通过正面落地玻璃,让花园园林景观作为客厅主背景,充分尊重自然的力量,让空间与室外达到自然和谐共生,让每一位在里面的人,心可以打开,与自然对话。客厅利用原有的结构柱子设计成开放式的和室品茶区,品茶区与天井之间加了活动胡桃木屏风,让此区域在一开一合之间与绿植、阳光、空气发生关系。
On the first floor, the living room’s original wall structure is retained and finished with white special-effect paint. Besides, its front French window introduces the garden landscape into the interior, allowing the coexistence and dialogue between the occupants and nature. Based on the arrangement of original structural columns, a tatami-style tea drinking area is set on one side of the living room. A sliding walnut screen is placed between the tea drinking area and the atrium, enabling the interior space to interact with sunshine, greenery and air when it opens.






整条楼梯以北美胡桃木拼接,让原本多层的楼梯分隔开左右两边的空间,少了几分硬度,多了几分温度,边界模糊化,让整个上下楼层有了情感的链接。
The staircase is made of walnut wood, which separates the left and right parts of the entire space and strengthens the connection between different floors with its warm textures.


三楼部分,整层为主人区域,楼梯上端开了一个天井窗,让充足的阳光可以洒下来,主卧区域通过设计成几扇屏风式开门,让打开的时候与开放书房区域可以共通,业主喜欢阅读,有大量书籍收藏,整个设计成阵列式的藏书方式。书房分为阅读区与和室区域,让人在其中可以选择不同的场景方式,阅读、品茶与休息。这不乏是一种舒适的生活方式。
The whole third floor is the private space of the house owners. A skylight can be seen above the staircase, which allows abundant natural light to filter in. The master bedroom adopts sliding doors, which closely connect it to the study. Considering that the client is an avid reader, the designers arranged a large latticed shelf in the study for stocking books. Comprising of a reading area and a tatami area, the study provides a cozy living environment, where the house owners can enjoy various activities.









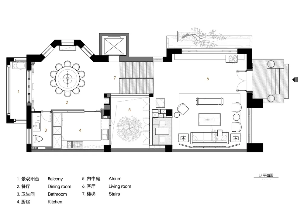
∇ 平面图 plans




完整项目信息
项目名称:共生
项目地点: 广东省汕头市龙湖区香域水岸
项目面积: 约530m²
完工时间: 2019年6月20日
设计单位:今古凤凰空间策划机构 (WWW.JINGFH.COM)
主笔设计师:叶晖
设计团队:陈坚、林伟斌、陈雪贤
软装团队:凤栖梧桐
施工单位:万有引力
摄 影:吴永长
客户名称:陈先生
主要材料:塞尔灰石板、灰砂石板、胡桃木实木、KD浅色木饰面、DANILO烤漆板、DANILO艺术漆、不锈钢
视频链接:https://url.cn/5GywfKB?sf=uri
Project name: Gong Sheng
Location: Longhu District, Shantou City, Guangdong Province, China
Area: about 530m²
Completion time: June 20, 2019
Design company: JINGU PHOENIX SPACE PLANNING ORGANIZATION
(WWW.JINGFH.COM)
Chief designer: Ye Hui
Interior design team: Chen Jian, Lin Weibin, Chen Xuexian
Decoration design: Feng Qi Wu Tong
Construction firm: Wan You Yin Li
Photography: Wu Yongchang
Client: Mr. Chen
Main materials: gray slate, gray sandstone slab, black walnut wood, KD light-colored wood veneer, DANILO board with baked paint finish, DANILO special-effect paint, stainless steel

