该项目旨在修复巴塞罗那历史悠久的小村庄Sant Sadurni d’Anoia内的一所现代主义学校,将其改造成为一个自带公共图书馆和档案馆的文化中心。这座历史悠久的学校坐落于一个四边都被街道环绕着的长方形地块上。该教学楼位于场地的西侧,采用二十世纪初学校建筑惯用的U字造型,三边环绕着向场地东侧延伸的庭院。原建筑不足以容纳拟定加建的功能空间,因此不得不在原先庭院的位置上加建一个新的建筑体量。
建筑师首先决定尊重原建筑最初的设计构思和外立面,将广场上的原有道路作为改造后建筑的主入口。接着,利用基地边界之间的斜坡建造一个石质建筑基座,作为半地下元素,从而取代原有的旧围墙。基座统一了新旧建筑,同时在不改变基地的视觉和体量效果的前提下为项目提供了一个重要的建造基底表面。
加建的长方体建筑体量坐落在石质基座上,位于原建筑的后方,在新旧建筑之间创造出两个中庭,以便将阳光引入建筑的下层空间。最终,加建体量紧挨着原建筑的后墙,解决了三层空间之间垂直交通的问题,同时为精心改良过的立面赋予新的价值。新旧建筑体量的位置使原有的中央庭院不仅变成了重要的空间连接节点,而且为人们提供了一个举办露天活动的安全空间。
基地的坡度使建筑师可以在半地下层为档案室创造一个独立的出入口。图书馆位于上面两层,并在其空间内整合了一系列空间,如多功能厅、庭院、辅助学习室等,通过一个精心设计的门系统,使人们即使是在图书馆开放时间以外,也能够自由使用这些房间。
建筑师充分尊重原有的历史建筑,从其原本的设计角度出发进行修复,而新建部分则更多地使用了当代的建筑语言,在两个体量之间创造出建筑色调、韵律和建筑构成要素的对话。图书馆的主要空间向原有庭院方向延伸,占据了庭院两侧的空间。因此,建筑师希望这两侧的空间改造为一个门廊,面向外部采用不透明立面,面向庭园则采用透明立面,这样不仅能为庭院创造部分遮阳空间,还能够增强原有建筑与加建体量之间的连续性。新旧建筑之间通过玻璃元素来连接。
此外,建筑师还对传统的建筑构件如Catalan通风屋顶、透气灰泥外墙和Catalan拱顶板凳进行了翻修,延长了现有建筑构思和材料的使用寿命,利用它们各自的特性,使其能够适应新的功能、安全和能效等方面的要求。加建部分体量采用了预制工业化系统的设想,希望尽可能减小人工干预对能源和环境的影响。为了实现这个目标,建筑师还利用了绿色屋顶、可回收橡胶地板、金属面板等建筑材料。

























▼总平面图
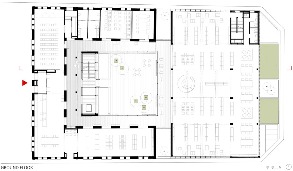
▼一层平面
▼半地下层平面
▼剖面图
设计公司:taller 9s arquitectes 位置:西班牙 类型:建筑 材料:灰泥 石材 金属面板 玻璃 标签:barcelona renovation 巴塞罗那 改造
版权声明:本文内容由用户自行发布上传或投稿由设计芝士代为发布,版权归原作者所有,设计芝士不拥有其著作权,亦不承担相应法律责任。如果您发现本站中有涉嫌抄袭或侵权的内容,请点此提交工单进行举报,一经查实,本站将立刻删除涉嫌侵权内容。

