这个时尚清新的住宅设计项目位于维尔纽斯,设计团队October Design Studio将房子的建筑表达方式复制到了室内——现代、极简和随和。一些装饰细节值得特别关注,因为它们不仅构成了项目的独特特征,而且它们的运用如此优雅自如,值得深入探索。
This stylish and fresh house design project by October Design Studio is located in Vilnius, and the design team replicated the house architectural expression into the interior compositions – modern, minimalist and easy-going. Some decor details deserve special attention because they not only compose the unique character of the project, but they are also applied with such elegant ease that is worth exploring in depth.




装修中首先注意的是颜色和材料的选择,为客餐区域的开放式空间提供了流畅的节奏,以及卧室部分墙壁后面的定制书架。浅色调采用黑色点缀;木质,瓷砖,大理石,亚麻和黄铜交替使用,营造出整个房屋的清新氛围。
First noticeable in the assembly is the colors and materials selection which gives a smooth rhythm to the open floor exposition of the social areas – dining and living room assembly and behind a custom-made shelving dabbling as partial wall the bedroom hides. Light pastels with black accents and alternation of wood, tiles, marble, linen, and brass are used to create the fresh ambiance of the whole house.




我们喜欢时尚的黄铜配饰——从灯光解决方案和装饰物品到定制手柄——在简洁的线条和清新的色彩中加入一丝魅力和奢华。同样,优雅的大理石、花岗岩和瓷砖镶嵌在整个室内的不同位置。厨房和客厅的定制橱柜和搁架采用了薄荷绿色,与浅色木材的纯粹质感和局部墙壁、表面、灯具和家具元素(包括深色窗帘)的时髦的橡木色调相搭配。所有元素都提供了强大的焦点,并在放松和动态氛围之间保持良好的平衡,介于清新与奢华之间。
We love the way that the trendy brass accents – from the lighting solutions and decorative objects to the customized handles and utilitarian insertions – introduce a smidge of glamor and luxury into the elegant simplicity of straight lines and fresh colors. The same goes for the elegant marble, granite, and tile insertions in different places throughout the interior composition.The fresh mint -green of the customized cupboards and shelving in kitchen and living room designs is paired up with the pure feel of light wood and the trendy balk accents of partial walls, surfaces, lamps and furniture elements (including dark charcoal curtains). Elements all giving strong focal points and a good balance between relaxed and dynamic ambiances, between fresh and luxurious hints.




其中一间浴室采用特别的黑色时尚瓷砖装饰,以人字形图案排列。同样富有表现力的黑色轮廓存在于具有优雅形状的灯具,家具件和纹理组件中,尤其是在柔和和黑暗的厨房表面之间有趣的变化着。其他瓷砖组合也很有趣——它们一起形成了一系列时尚元素——六边形形状,带有对比赋纹的地铁砖,不规则图案。
Special black accents are the trendy tiles in one of the bathrooms, arranged in a herringbone pattern. The same expressive presence has the dark silhouettes of the elegantly shaped lamps, furniture pieces, and textural components and especially the intriguing alternation between pastel and dark surfaces in the kitchen. The other tile compositions are also interesting – all together they resemble a patch of trendy elements – hexagonal shapes, metro tiles with contrasting fugues, irregular patterns.




主卧室和儿童房延续了室内的清新美学,有趣的墙壁图案与丰富的纹理元素交织在一起,给装饰组合带来舒适而轻松的感觉,除了浅色选择之外,所有这些都具有受限制的图形和形状的视觉冲击。
The fresh aesthetic of the interior continues in the master and child’s bedrooms were intriguing wall patterns entwine with rich textural elements to give cozy yet easy-going feel to the decor composition, all with a restrained graphic and shapes visual impact in addition to the light colors selections.




















主要项目信息
项目名称:NAMAS PILAITĖJE
项目地点:立陶宛维尔纽斯
项目类型:住宅空间/公寓
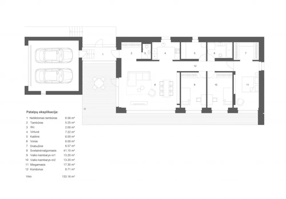
项目面积:133㎡
完成时间:2019
设计公司:Ingrida Bieliauskė
摄影:Vaidotas Darulis

