根据客户的使用习惯,整个空间格局以开放式为主,人在环境中感受层次的交叠,空间上相对弹性,使用上多能化。我们提倡空间在给使用者带来更多便利的同时也能促进使用者与空间之间的交流。让空间更适合主人,让主人更贴近空间。
客餐厅
一层空间在整体上保持延续开放,最大化的引入室外光,拓宽视野,放空空间。以旋转楼梯为核心的半遮挡,让空间在视觉上产生纵深的结构变化。连接二楼的休息区,打造空间中生活的合理性与趣味性。空间与空间的相互利用与安排。不多不少,却相互贯穿。
主卧
主卫
儿童房
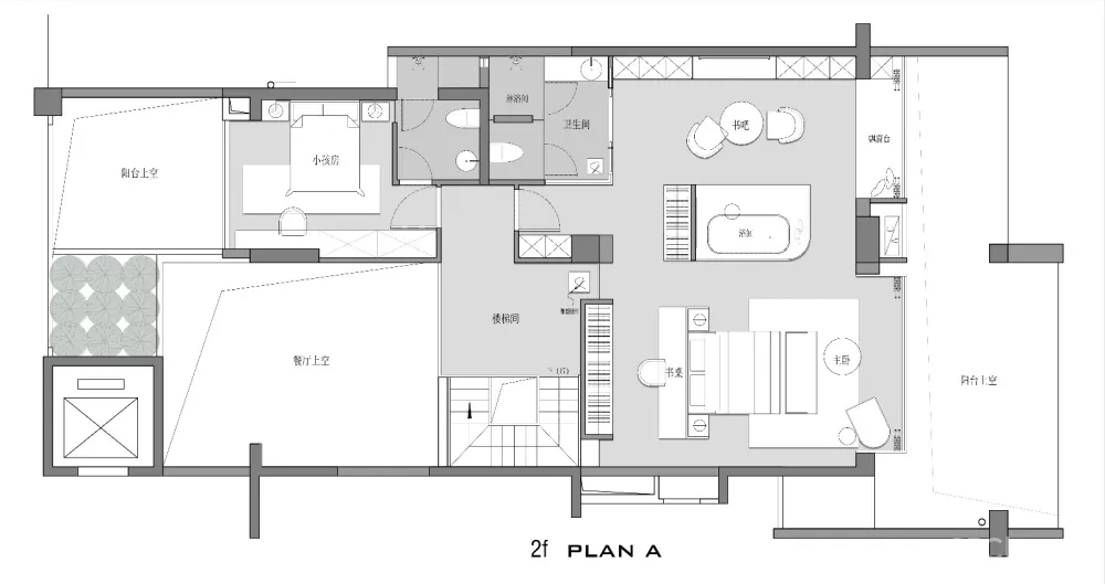
平面规划
主案设计师 / 宁洁 周丁丁
主案设计 | 宁洁 周丁丁
参与设计 | 黄静 张志扬 黄思婷
设计公司 | 深圳舍下空间
项目地址 | 星河丹堤
项目面积 | 300㎡
商务合作/邀稿请联系
【微信号:13135278882/D517311839】

