Nir Shmueli Studio和Izzy Michael为位于以色列特拉维夫的Boaz Ben Zur & Co.律师事务所设计了宽敞的办公室。
Nir Shmueli Studio and Izzy Michael have created the spacious offices of Boaz Ben Zur & Co., a law firm located in Tel Aviv, Israel.
Boaz Ben Zur & co.律师事务所位于特拉维夫市中心一幢高层建筑的27层,面朝地中海。该项目代表了客户对新办公室的期待,该办公室采用了清新,宽敞且永恒的设计。
Boaz Ben Zur & co. Law Firm is located in the heart of Tel Aviv, on the 27th floor of a high-rise building, facing the Mediterranean Sea. This project represents the client’s desire for a new office with a fresh, spacious yet timeless design.


客户需要一个开放的公共空间,同时为高端客户提供最大的隐私,这决定了一个独特的总体布局、材料和空间设计策略。
The client’s demand for an open common space while providing maximum privacy, for high profile clients, dictated a unique design strategy for the general layout, material and space design.
因此,公共空间尽可能多地享受地中海和城市的景观。通过将公共功能定位于战略性节点(厨房和餐厅区、主会议室、私人接待处),设计团队实现了开放的框架视野和自然光,同时每个单独的办公室保持私密和隔离。同样的方法也使设计团队在分区、天花板、照明和地板方面有了类似的应用。
Therefore, the common spaces enjoy as many “Vistas” as possible to the Mediterranean Sea and the city bellow. By locating public functions in strategic nods (Kitchen & Dining area, Main conference room, Private reception) the Architects achieved open framed views & natural light, while each individual office remains private and discrete.The same approach has led the Architects to a similar application regarding partitions, ceilings, lighting & flooring.


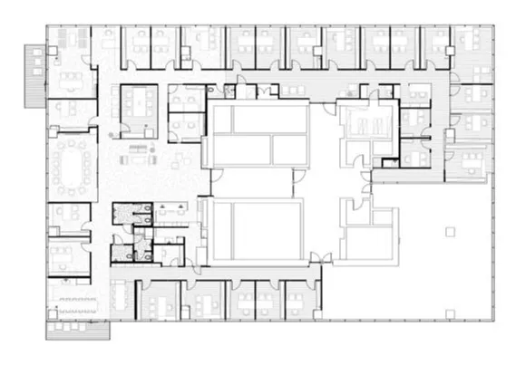
廊空间投入了大量精力,因为该项目包含35个独立的私人办公室,它们决定了长长的走廊。应用等间距的墙壁贴条,将这个富有挑战性的空间变成了光和艺术的庆典。
Much effort was dedicated to corridor spaces, since the project contains 35 individual private offices which dictated long corridors. Hence, these corridors were applied with equally spaced wall mounted strips, which turns this challenging space into a celebration of light & art.








∇ 平面图
 
主要项目信息
 项目名称:Boaz Ben Zur & Co. Law Office
 项目地点:以色列特维拉夫
 项目类型:办公空间/现代风格
 项目面积:950平方米
 完成时间:2019
 设计公司:Nir Shmueli Studio and Izzy Michael
 摄影:Beller


