这个三居室住宅由一个有着百年历史的汽车装配厂改造而成,原厂房建于1926年,在20世纪90年代后期,该建筑被改造成基本的公寓,但没有有效地利用每一间公寓所包含的大量空间。
This warehouse conversion creates a flexible three-bedroom residence within the raw concrete shell of a 100-year-old car assembly factory. The original factory building was constructed in 1926, with its robust concrete frame supporting an assembly line of carriages and vehicles for several companies including Rolls Royce. In the late 1990s, the building was converted into basic apartments that did not make effective use of the generous volumes that each contained.
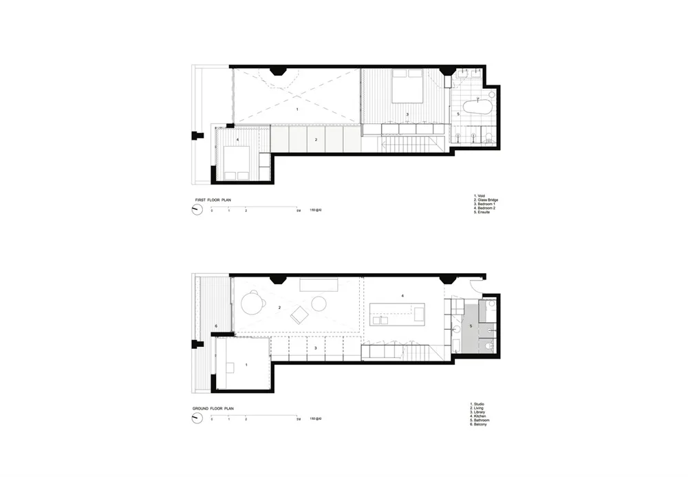
我们的方案是完全拆除现有公寓的整个内部,露出混凝土外壳,然后使用一系列由轻质钢框架来划分活动区域,重新布置包括三间卧室在内的一系列灵活的生活空间。每个空间都向主体量开放,因此分区的灵活性也提供了共享空间,在整个空间中增加了一种宽敞的感觉。
Our proposal was to entirely demolish the entire interior of the existing apartment to reveal the concrete shell, and then construct series of flexible living spaces including three bedrooms using a series of movable partitions supported by a lightweight steel frame. Each of the spaces open towards the main volume, so that the flexibility in partitioning also delivers shared spaces that add a feeling of generosity throughout.












∇ 轴测图

∇ 平面图

∇ 剖面图

完整项目信息
项目名称:Camperdown Warehouse
项目地点:澳大利亚悉尼
项目类型:住宅空间/私人住宅
项目面积:130㎡
完工时间:2018
设计公司:Archer Office
主创设计:Tomek Archer, Carmen Blanco
摄影:Kasia Werstak

