台湾是一个有着两千三百万人口的高密度岛屿,面积是大不列颠的六分之一,大多数是山和榆林。这意味着不允许高密度的开发,但它也被规则和市场状况紧密地推动着。林口是一系列沿着连接机场到台北市中心的新干线高铁的新城镇之一。项目基地位于新城镇边缘的断崖上,拥有俯瞰山谷里茂密森林的壮丽景色。
Taiwan is a densely populated island with a population of 23 million squeezed onto an island, about one-sixth the size of Great Britain, of which most is mountains and rainforest. This means that extremely tightly packed dense development is not only allowed, but it is also actively enforced -both by regulation and market conditions. Linkou is one of a series of new towns being developed along the route of a new high-speed rail link from the airport to Taipei city center. The site for this project is located on a bluff at the edge of the new town with spectacular views across a thickly forested valley below.


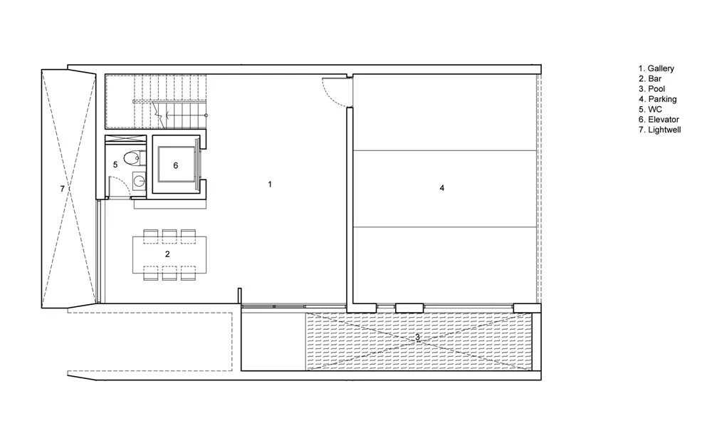
在0.6公顷范围内,该基地划分为给7幢互相靠近的大住宅。这不仅产生了私密性和互相眺望的问题,也产生了自然光和通风的环境问题。为了缓和这个方面的问题,数字模拟了建筑外围和内部空间的空气流。屋顶倾斜来引导低压,内部的空间和楼梯引导暖空气流上升,低处的开口保证了贯穿整栋房屋的持续空气流。这些策略也为房屋形成了独特的外形和宽敞的室内。
With an area of just 0.6 HA, this site was zoned to have 7 large houses in close proximity to each other. This creates issues not just of privacy and overlooking but also environmental issues to do with natural light and ventilation. To alleviate this, the flow of air around the external form and internal spaces of the houses was digitally simulated. The external form and internal layouts were then adjusted to maximize natural ventilation. Roofs that tilt up to induce low pressure, internal voids and staircase stacks that allow warm air to rise and openings at a low level all ensure a constant flow of air through all levels of the houses. These strategies also generate the unique forms and spacious interiors of the houses.


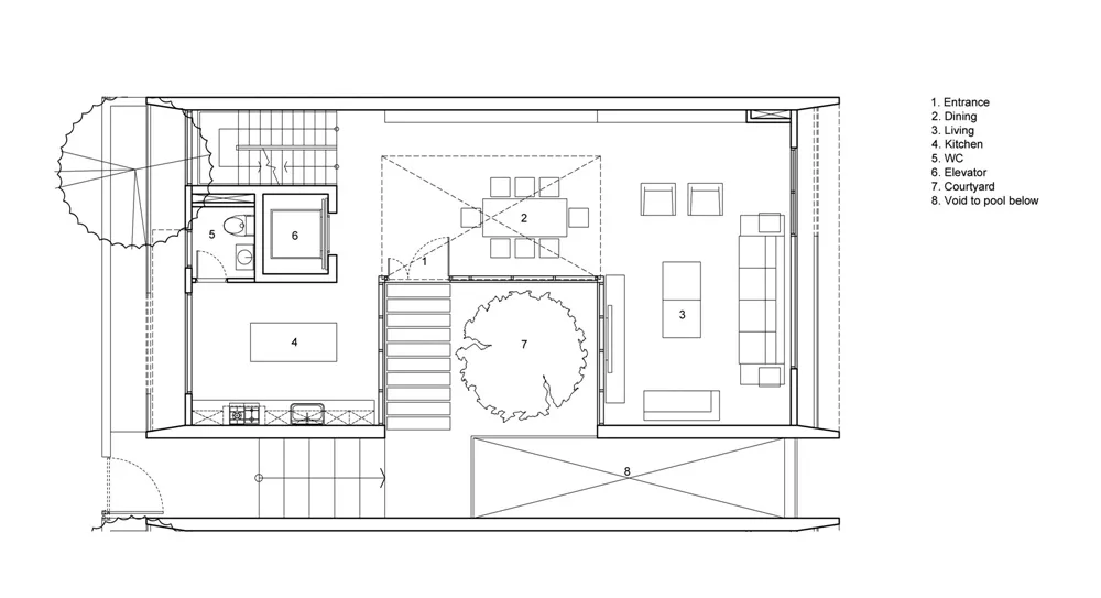
尽管房屋彼此互相靠近,在空间中引入自然光十分重要。庭院和带有上部带有天窗的双层通高的空间将光线引入房屋中心。然而,立面上的引入自然光策略更是一种创新式的设计方案。连续的金属遮阳板调节了光线,控制了建筑内外的视线。计算机算法被用来改变立面上图案的密度,从而创造一种看似随意的但其实精确控制的大量材料,它们按私密性、视野和光线需求精确排布。
Despite the close proximity of the houses it was important to bring natural light into all spaces. Courtyards and double height voids, with skylights above, bring light into the hearts of the houses but it is in their facades that the natural lighting strategy produces the most innovative design solution. Continuous metal screens modulate the light and control views both into and out of the buildings. Computer algorithms were used to vary the density of the pattern across the facade creating a seemingly random but carefully controlled blizzard of material which is actually precisely controlled to locally respond to privacy, views and lighting needs.


这些住宅代表了一种台湾住宅的新范例。从自20世纪中期主导的暗的、需要人工照明和制冷的类型转变为一个新的类型。该类型明亮又通风,与外界气候和自然有更强的联系。虽然密度大,结构坚实,但它们创造了一种明亮而隐秘的氛围,是一个逃离繁忙城市的迎客庇护所。该住宅已经被ABB欧洲杰出建筑师论坛奖、2A Continental建筑奖和2018 Perspective A&D奖认证。
These houses represent a new paradigm in Taiwanese housing -moving away from the dark, artificially lit and cooled typology which has dominated since the mid-20th century to a new typology; A typology which is bright and breezy and has stronger connections to the weather and nature outside. Though densely packed and structurally solid they create an atmosphere of lightness and privacy -a welcome refuge from the busy city outside. The houses have already been recognized by the ABB Leaf Awards, 2A Continental Architecture Awards and the Perspective A&D Awards 2018.





∇ 总平面图

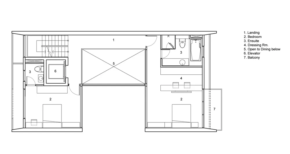
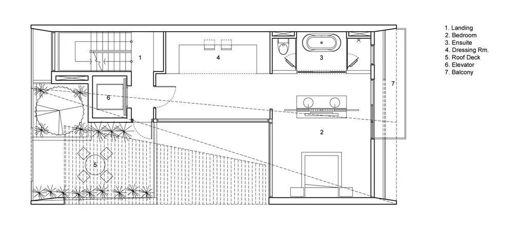
∇ 户型平面图





∇ 立面

∇ 剖面

∇ 模型


完整项目信息
项目名称:Breathing Houses
项目地点:中国台湾台北
项目类型:住宅空间/独栋住宅
建筑设计:ROEWU
建筑公司:戴育沢建築師事務所
建筑面积:3208.0 m2
完工时间:2018
摄影:Jing Ming Cheng, Kuo Ming Lee

