悬浮于空中的天路和星河
项目地点概述 | Summary of Project Location
山海咖啡位于天津市和平区赤峰道86号,前身建筑体是一座古老居民楼的底墒!在这条路上有用数件古董装饰而成的法式洋楼——瓷房子(他是一座价值连城的中国古瓷博物馆),还有张学良故居博物馆(又名少帅府)。当然还有承载着8090回忆的街边小店,学生时代是一个闲暇时必去之处!随着网络时代的冲击,这些街边小店已逐渐落寞!当我接到这个案子,我充满着期待。希望让这个店成为赤峰道另一个去处,青春与回忆并存!
项目结构概述 | Summary of Project Structure
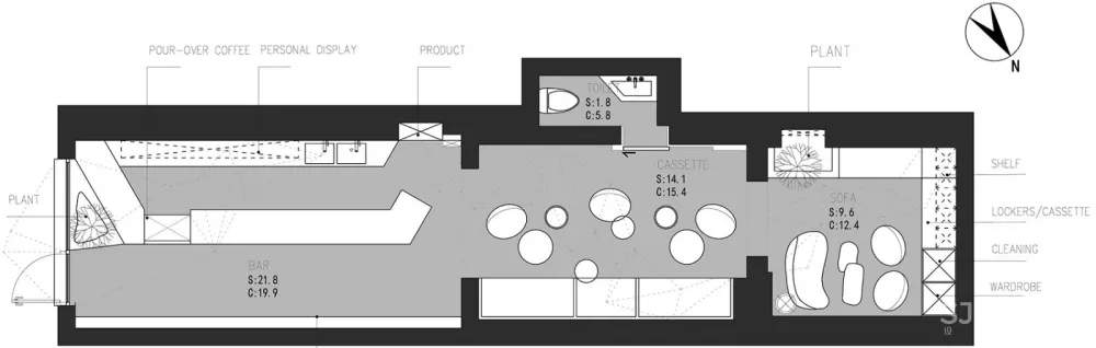
由于这个建筑为古老的砖木结构楼房,且位于底层,所以设计只能在保留原结构基础之上发挥。项目三个房间贯穿跨度较大,以至于最后一间房的采光差到像夜晚一样!
设计理念构思:追忆 | Design Concept Conception: Memory
在这个梦想与现实有越来越骨感差距的时代,我们常常想要寻找一个僻静之地,沉淀且反思,重新面对生活!我们需要一个力量!我想到的是:小到山河大到宇宙,这一切的万物才是能给予我们积极生存的力量去畅想未来!
致力于环保,我们尽力采用最简单的最环保的材料解决装饰面效果。外延立面与室内吧台区/卡座区/后院的顶部采用了夸张的装置艺术手法,用水泥板模拟岩石形成了一条悬浮于空中的天路,像山石汇聚,曲折盘旋,指引着我们穿过世俗之后最终进入到星河,带我们徜徉星空。丢掉烦恼,此时只有心中的自己!
店主刘三帅讲:“因为我想活着,我不能掩藏我心中本欲,正如我心中爱你美丽,又怎能嘴上装四大皆空”如果你非要问我关于“山海咖啡”想传达什么,简单明要我会说山海咖啡表达的是:自我。 ‘山海’是一个避世的场所,是一个可以追溯自己理想的地方。
星河鹭起时,云雾缭绕,你便是误入凡间的精灵!通过拱门的指引,即将从不同角度体会生动的室内建筑空间关系!此时空间的核心地位突出为尽头的椭圆形洞口,引向动线的最后一段旅程,从而使进入空间的人,内心产生了奇特的探索之感。在这里有音乐与咖啡相伴,也有素不相识的邂逅。
几乎无采光的尽头空间,被设计成一个庭院!拆除之前保留的墙面装饰物后,裸露出的是近百年历史的斑驳砖墙,这些都已无须再做过多的修饰,亦能感触到时间的味道,顺着古老的墙壁仰望,顶面亦是星河了!
关于咖啡:“所爱隔山海,山海不可平。海有舟可渡,山有路可行,此爱翻山海”。原石/原木/还有藏在你脚下的那些微不足道的植物,都显得格外的亲切!这些材质的结合,是返璞归真的存在!与友交心过后,你便可以独自穿越,达到星河的尽头,是冥想的时间!
我们是宇宙中渺小的一部分,甚至我们并不重要的存在于此。返程时,不要忘记给予你温度与回忆“分子水”的味道。那将是回味无穷的生活态度。志合者 不以山海为远 ,道乖者 不以呎尺为近。 —— 晋·葛洪《抱朴子·博喻》
项目名称:山海 · 果病儿精品咖啡烘焙馆
项目地址:赤峰道86号, 和平区, 天津,中国
项目类型:建筑,室内设计和景观
建筑师和室内设计师:春田空间设计工作室
设计时间:2019年3月 – 2019年7月
建筑面积:50平方米
建筑材料:水泥板
室内主材:再生灰砖,混凝土,生态木板,水泥板,原石
室内花艺景观:张鑫锐

