该住宅是为一个位于泰国曼谷的五口之家设计的。这家人曾经住在一所旧木屋里,但它已不再适合这家人最近的生活。基地是一个狭长的带状区域,位于邻居的房子之间。以优化网站潜力。
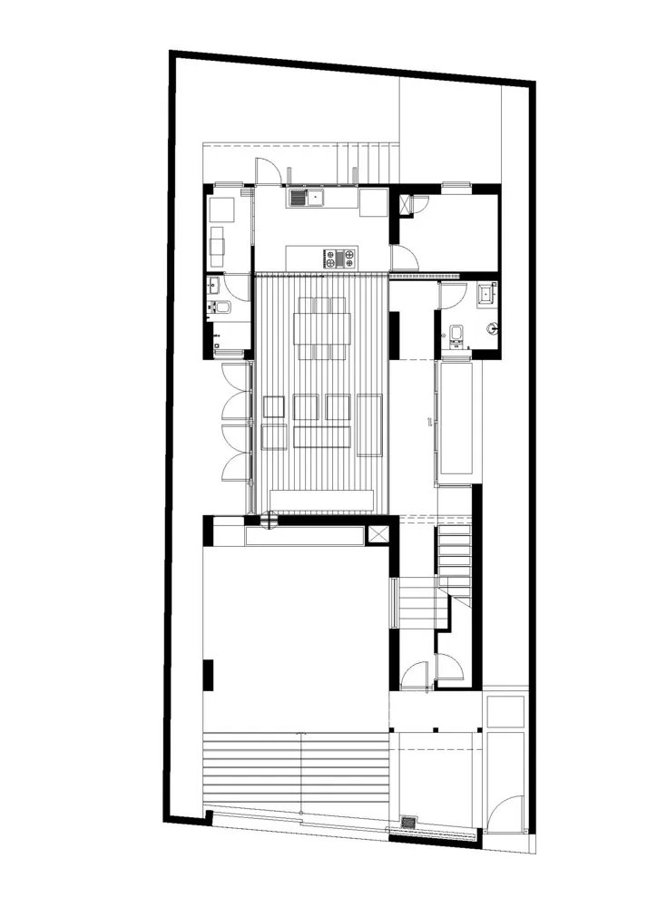
建筑师最大限度地将足迹限制在规定的范围内,使室内空间尽可能大,适合家庭居住。房子两边的盲墙是为了最大限度地利用空间。这些盲墙也为房子提供了不被邻居看到的隐私。
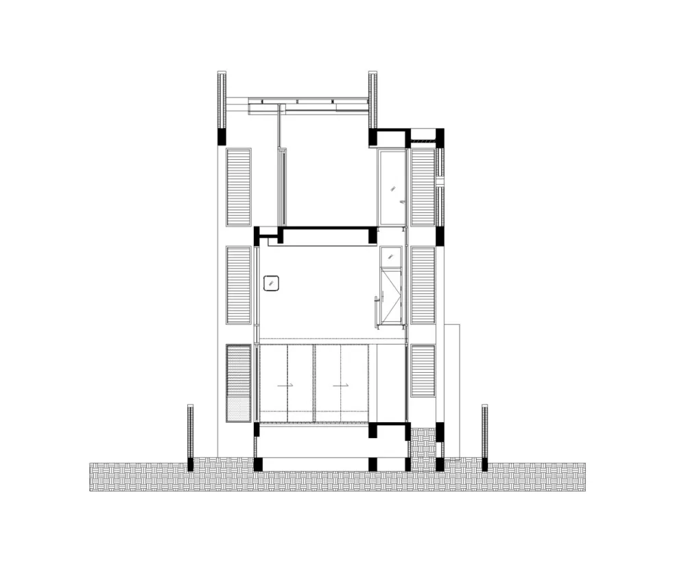
房子的外观,深灰色的几何实体形状,是由折叠穿孔板立面,提供了住宅的私密性。建筑师还使用手工制作的木门来强调房子的颜色、形状和立面。布局突出了自然光通过窗户和特色天窗在设计空间的最大注入。
公共空间,如双层的起居空间和用餐空间,被设计成充满自然光。餐厅和食品储藏室也可以通过隐藏的滑动门进行调节。因此,服务空间中的所有者可以选择连接或断开与服务空间的连接。
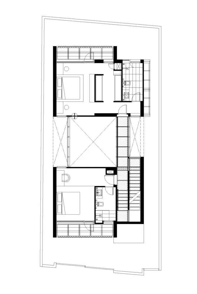
卧室位于双层通高的社交区周围,由一座从主楼梯延伸的桥连接。在泰国这样的高温高湿地区,“交叉通风”是一种有效的自然降温方式。通过为每个房间设计两个侧窗,建筑师可以为住宅提供日常的气流和自然光。
立面和楼梯上的穿孔板也在提供上升气流和下降的自然光方面发挥了重要作用。由于老木屋需要拆除,旧房子的木制部分,如地板装饰、楼梯踏板和柱子,被收集起来,并与新材料,如深灰色的墙壁和穿孔板结合在一起。
Design : Wat Kuptawatin + Kanit Kuptawatin
Date:2019
Lead Architect:Wat Kuptawatin
Photographs:Wat Kuptawatin / Kanit Kuptawatin

