树有根,水有源
人有祖,知渊源
项目是位于广东省四会市的一个常见复式公寓,业主是中国最常见的三代同堂式家庭,但作为祖辈都植根在这片土地的家族,房屋的意义就不仅是居住的场所,更是传承家族记忆的重要载体。
与其不断追逐名利,不如用心寻找记忆。——郑小馆
业主儿时生活的祖屋里有一批年深日久的老木,未经打磨的木板上全是年轮的图案,参差不齐。业主已很难完整清晰地表达自己对它的感情,只有一些纷杂而片段的家族的印象,沉淀在祖屋的老物件中消散不去。
设计师把满载着传承基因的老木带进新居,用匠心为老物件赋予新生,在空间中的各个角落置入记忆的片段——在客厅背景墙上的拼接木板画如同一扇连通时空的窗,窗外岁月,窗内人生。
用榫卯工艺制作的茶几在家族团聚的客厅中,进行着旧日记忆和现世时光的对话;楼梯转角的老树根,存蓄与延续着古老的印象。
床头的老木小托盘,让人在不经意的回首一眸中,被其岁月的淡雅芳华勾起记忆的涟漪。
留白,是一种高深的艺术;
留白,是国人骨子里的东方意境;
留白,是空满的禅理;
留白,是山水天地间氤氲着的无限诗意;
书画里有一种境界,叫“墨分五彩,计白当黑”;音乐里有一种韵味,叫“此处无声胜有声”;诗歌里有一种讲究,叫“绚烂之极,归于平淡”。
不是我喜欢极简,是因为生活本来就不复杂——郑小馆
设计师用极简的手法弱化了空间体块、界面、色调和材质,去繁存简,求其空灵,让人于静简与清欢之间,品味纯粹的传承清芳。
流光暗藏的柜体、华韵内敛的电视柜,谦退交融的空间体块、素白简静的灰白色调、素洁安然的灯光,在方寸之地营造出予人以无限想象余地的空间。
庄子说:虚室生白,吉祥止止。
在这个宁静洁白的寰宇中,留白人生,以空明的心境品味老物件中的传承,致虚守静,生慧明道,吉祥福祉就会降临。
轴测图
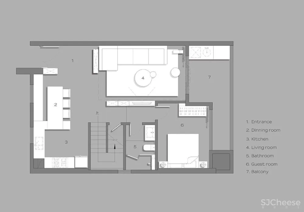
一层平面图
二层平面图
剖面图一
剖面图二
剖面图三
效果图
郑小馆(Lauren Cheng )
深点设计PDD /创办人&设计总监
深点空间设计是由一支拥有着高度设计热情的院派系年轻人组成,将心血注入到每一个作品之中。注重“以人为本”,无论是精品酒店、艺术空间、商务会所;都会以追求艺术性与功能性的契合为目标,从每一处的细节透露着深点空间设计的专业态度和执着的情怀!
项目名称:吴宅(续居)
项目地点:中国四会
设计公司:PDD深点设计
主创设计:郑小馆
设计团队:黄炳森、陈槿珊、杨子友
设计时间:2018年8月
完工时间:2019年7月
项目面积:138平方米(复式公寓)
文字:胡嘉欣
摄影:EMMA
木作:郑志龙(拾木人)
主材:不锈钢、人造石、耐霆漆

