在办公园区里,咖啡馆应该是一个什么角色?
上海临港高新产业园是国内领先的海洋科技投资和产业运营的产业园区。FTA受邀为临港打造一个促进“交汇”,打破生活工作边界的第三空间——海客咖啡馆。

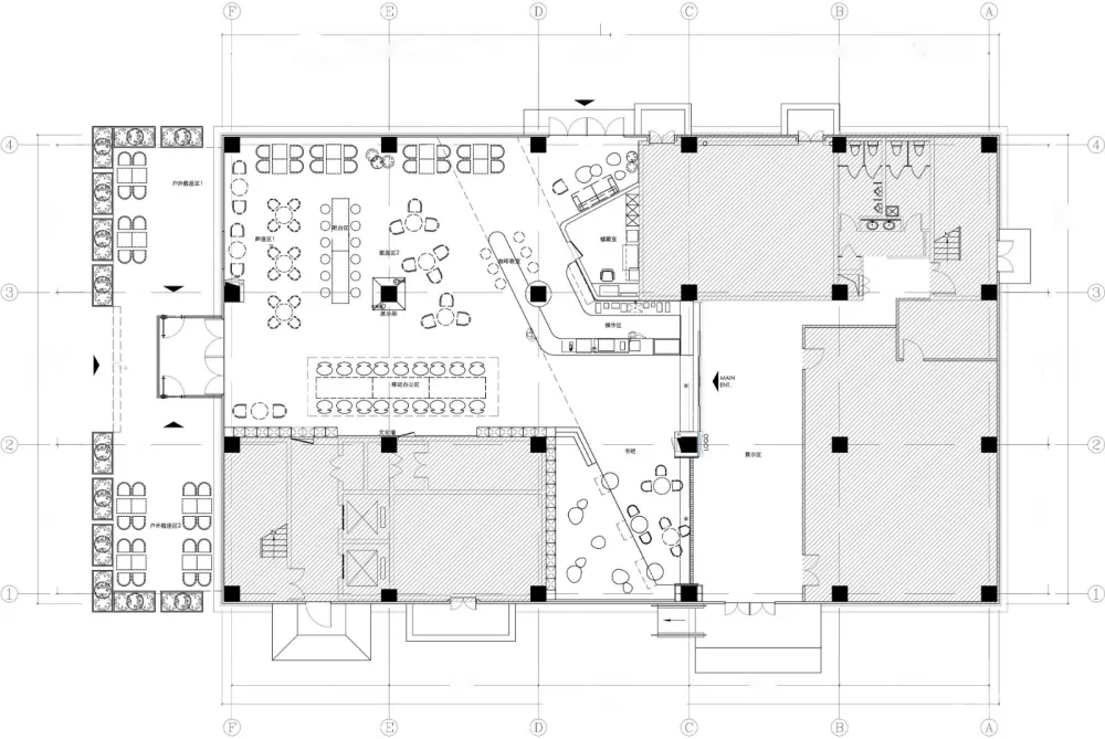
在调查走访了园区工作员工以及运营方后发现:园区希望通过咖啡馆这一媒介,为园区打造一个社交中心,进而满足不同企业,不同人群的空间使用需求。我们梳理了四种可能使用咖啡馆的方式:
移动办公、休闲办公、活动路演、商务会议。

接下来,我们思考的是在这个咖啡馆里,人们的体验将会如何?
舒适的、放松的;活力的、充满新鲜感的;有归属感的。

通过分析现场,FTA发现,原有的空间不完整,入口太多,材料冰冷,空间没有主次,到达不便捷。于是设计以三个入口的交接中心点为核心,重新构建整个空间秩序。这也是整个设计的关键概念:exchange – 交融。

在概念与体验确定之后,FTA通过运用大海的颜色盘,营造温馨舒适的感觉,为非正式交流提供了色彩底板,并在灯光、材质上,营造咖啡馆慵懒,轻松,非正式的氛围。

此外,FTA为海客咖啡量身定制了LOGO及标识系统,力图为空间的使用者带来一定的归宿感。并通过可移动家具自由组合,满足不同时段,不同人群的使用需求,为品牌带来活力的同时,降低空间空置成本。



























项目名称:海客咖啡 – 临港园区店“HIKER COFFEE”
建筑师:孚提埃(上海)建筑设计事务所有限公司FTA Group GmbH
公司网站:Website http://www.ftaarch.com/
联系邮箱:投稿联系xiaoshan@ftaarch.com
项目联系:dingyang@ftaarch.com
设计时间: 2017-11
完成时间: 2018-06
主创及设计团队:FTA建筑设计
项目地址:上海市浦东新区海洋一路399号1楼
建筑面积:600平方米
摄影师:CreatAR Images
合作方:上海海谷创业发展有限公司
客户:上海海谷创业发展有限公司
品牌:PVC地板,编织地毯,人造石
PVC Flooring (NOVALIS)
Woven carpet(BOLONG)
Artificial Stone(Kanger)


