BenthemCrouwel建筑事务所将阿姆斯特丹南部一座被忽视的空置办公楼改造成一个高质量、鼓舞人心和可持续发展的办公室,荷兰慈善彩票公司Goede Doelen Loterijen的所有员工都可以在这里一起工作。该建筑获得BREEAM“杰出”评级,使其成为荷兰最可持续的翻新物业。
一个像家一样的办公室
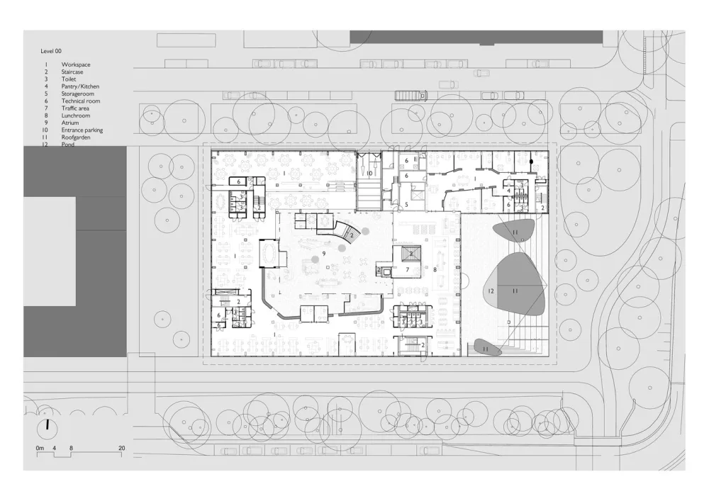
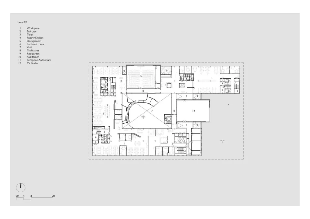
慈善彩票的600名员工多年来分散在不同的地方,客户想给他们一个集体的家。这个住宅需要是一个高度可持续的建筑,这是这个公司的一个重要条件,可持续发展是其核心价值观之一。慈善彩票的社会抱负和理想主义现在在他们的办公楼中可见——这是一个透明的、可接近的建筑,为员工和社区服务,是附近商业区阿姆斯特丹Zuidas的一个受欢迎的新成员。除了办公室,这栋建筑还容纳了一家公共餐厅、礼堂和一个电视演播室。
同一屋檐下
慈善彩票公司的员工从一开始就参与了设计。每个人都被邀请分享他们的想法,通过这个独特的共同创造的过程,一个像手套一样适合这个组织的独特氛围和工作实践的建筑出现了。
员工们希望把公园里的绿地从老地方带到新办公室。为了实现这个愿望,建造了一个绿色的屋顶。
细长的树形柱子——三根大柱子和三根小柱子——支撑着屋顶。屋顶采用抛光铝制成的6.800片叶子展开,在墙面和地板上形成美丽的斑纹效果,让人想起在森林中漫步的场景。颜色,光的强度和大气的变化取决于一个人走在建筑的什么地方和什么时候。新的屋顶就像一个宏伟的姿态,对周围的地区,不仅可以从附近的商业区的高楼,而且(在眼睛的水平)从附近的房屋可见。
开创性的可持续性
通过选择翻新和扩建现有的建筑,而不是设计一个新的建筑,通过使用最新和最先进的可持续发展技术,慈善彩票的新住宅不仅成为一个能源中性,而是一个能源积极的建筑。在壮观的屋顶上,949块太阳能电池板提供能源。屋顶还收集雨水,这些雨水随后用于灌溉屋顶花园,并向洒水器和冲洗系统供水。旧建筑物拆卸部分的物料已被循环再造,所有新使用的物料均已经过测试,以确保其可持续性,如有需要,可在日后作其他用途。所有这些措施使该建筑获得BREEAM“杰出”评级,使其成为荷兰最可持续的翻新建筑。最后的分数是92,61%,其中85%是得到这个评级的最低分数。


建筑师 Benthem Crouwel Architects
地址 Beethovenstraat 200, 1077 WZ
阿姆斯特丹,荷兰
类别 办公设施
主创建筑师 Jan Benthem, Saartje van der Made
建筑面积 15.267 平方米
项目年份 2018
摄影师 Jannes Linders

