空巢村六栋荒废建筑的重生
大山初里是将坐落在杭州桐庐空巢村中的六栋荒废建筑,再生为全新民宿的项目。
作为散落在村落中的民宿酒店,建筑语言理应要与周围村民家的景观相呼应。当地民房大多采用夯土墙,但被传统土墙包围的空间会有闭塞感,也无法从室内感受到周围美丽的景观。如果只使用保守的手法重建夯土墙形成的村落,也许就无法吸引游客了。如何平衡丰富的自然环境(开阔的视野)和呼应周边既有村落(封闭的土墙)这两个矛盾的条件,便是这次的设计课题了。
大山村顾名思义坐落在山间,建筑沿着山脊朝向不同的角度,高低错落。虽然各栋相隔距离不远,但由于它们之间不正对,几乎所有的建筑物都有眺望向山脚美景的视野,为居民营造了良好的居住环境。
我们在建筑各部分别使用了当地不同的材料,比如竹子、红砖、岩石、和碳化木,以突显每一栋建筑独特且有魅力的地形特征。在一栋楼中保留能充分享受大自然的休息空间(起居室)并利用传统土墙包裹安静的私密空间(卧室),以满足相反的两个设计需求。
在希望根据各建筑物的特点使用当地常见材料的同时,也考虑了深山中建筑材料运输的困难,所以尽可能地在当地采购或再利用材料,比如土壤,石材等。这样既可以让整体建筑群融入农村景观,也能利用每栋建筑的特色材料由内而外地延续和自然景观相连的空间,营造出一个丰富又静谧的环境。
村庄地处山间,夜晚没有来自周围环境的灯光,即便是最小的照度也能充分的感受到亮度。因此,我们将能大面积照亮整个空间的照明(例如筒灯)控制为最少,尽量采用质地柔软的伞形照明(例如落地灯和台灯)。它们将无缝的墙面和天花材料和弧形转角照亮,柔和的光线和阴影包裹着整个房间,更增加了空间的温度与舒适感。
我们希望这些融入到自然风景中的建筑,能成为大山初里客人遇见村落不同风景的美好契机。
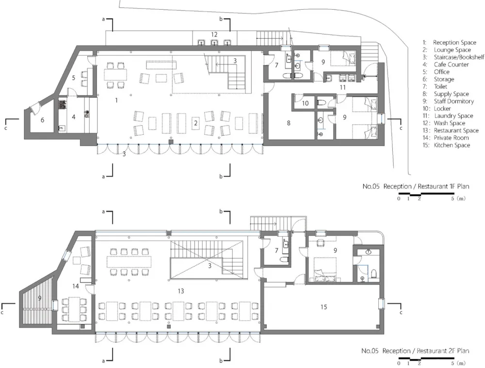
接待大厅/餐厅平面图
No.07+09客房平面图
No.10客房平面图
休息室/户外水池平面图
No.34客房平面图
项目名称:大山初里
设计方:小大建筑
公司网站:ko-oo.jp
联系邮箱:contact@ko-oo.jp
项目设计 & 完成年份:2017年3月-2019年5月
主创及设计团队:小嶋伸也,小嶋綾香,北上紘太郎,赵彦,胡志德
项目地址:中国浙江省杭州市桐庐县大山村
建筑面积:660m2
摄影版权:堀越圭晋 / SS
客户:杭州初里酒店管理有限公司

