感谢来自 MOC DESIGN 的餐饮项目案例分享:
灯塔
Lighthouse
坐落于福康宁山前方不远处的克拉码头,曾经是新加坡最繁华的码头,如今早已不再装卸货物,其旧仓库被保留下来,改建为休闲街区,喜茶在海外的第一家白日梦计划便选址于此。
Not far from the Fort Canning Hill, Clarke Quay was once the most bustling wharf in Singapore. Now it no longer serves as a dock for the loading and unloading of cargoes and its original godowns were transformed into a leisure neighborhood. Here is where HEYTEA launched its first oversea shop of the DP (Daydreamer Project) series, with “lighthouse” as the design theme.
∇ 克拉码头历史照片Clarke Quay in the old days

∇ 今天的克拉码头 Clarke Quay nowadays

∇ 外立面 Façade

∇ 外立面 Façade

∇ 透过外立面的玻璃盒子看进室内, Through the glass box into the bar

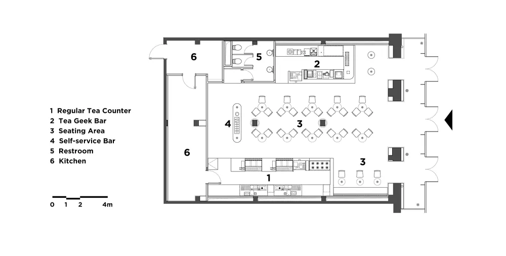
∇ 平面图 Floor plan

MOC DESIGN 一反克拉码头街区昏暗、为了营造神秘感而以封闭式形态呈现的思维,以开放的形式、一览无余的布局及明亮的纯白色调出现在街区中。受到福康宁山上的灯塔所启发,MOC DESIGN 在有限的空间中以阵列的形式设置了20个灯柱,其中一些结合高桌进行设计以满足功能性需求。
MOC DESIGN presents HEYTEA in an open form with a panoramic layout and a bright hue of white, in contrast to the dim and mysterious Clarke Quay streets in an enclosed form. Inspired by the lighthouse on the Fort Canning Hill, MOC DESIGN put up an array of 20 lamp posts within the limited space, some of which are fit with the high tables to meet the functional needs.
∇ 灯柱与圆桌结合,阵列式的呈现在空间中, Lamp posts fit with round tables in neat array


∇ 轴测图,Axonmetric

∇ 灯柱明暗交替示意图
An arrangement of dark and light lamp posts


∇ 从茶极客看向店内, TEA GEEK’s view into the interior

灯柱随着时间缓慢的变暗又逐渐亮起,以此重现灯塔的闪烁周期。人们可以透过入口前厅的玻璃盒子,看到店内的灯柱缓慢的明暗交替,结合自然光线的变化,空间由早至晚呈现着不同的迷人表情。
The light posts dim and brighten gradually over time, just like the way a lighthouse emits light. Through the glass box at the entrance, people can see the gradual change of brightness of the lamplight. Combined with the natural light, the space presents distinctive and enchanting looks from morning to evening.

∇ 自助台 Self-service bar

隐藏于天花木质造型顶部的灯带照向天花产生的漫反射,达成了室内空间柔和的光照氛围,辅以局部的射灯划分出座位区与通道。
The light belts hidden on the top surface of the wooden frame produce diffused reflection onto the ceiling, which creates the soft illumination and atmosphere for the interior. In addition, spotlights are used as visual partitions to divide the seating areas and passages.
∇ 隐藏在木质造型顶部的灯带为室内提供柔和的光照氛围
Soft illumination and atmosphere from the light belts hidden in the wooden frame ceiling


∇ 设计细节 Design Details

∇ 设计细节 Design Details

灯塔为迷航的船只指明方向,灯柱也将承载相同的功能。旧时人们聚在一起品茶,而现在的年轻人则围聚在灯柱下分享喜茶,我们期望店内的灯柱能成为引导茶客们找到心中茶味的标志。
Lighthouse gives navigational aid to ships on the sea, while the lamp posts serve a similar function. Back to the old days, people gathered together to taste tea. In this space, modern young people gather around the lamp posts and share HEYTEA. The lamp posts are designed as a symbol that guides the tea drinkers to find their cup of tea.


主要项目信息
项目名称: 喜茶 – 新加坡克拉码头白日梦店
设计单位: MOC DESIGN OFFICE (www.moc-office.com)
主创设计师:梁宁森,吴岫微
设计周期:2018.10-2018.11
竣工:2019.1
项目地址:新加坡克拉码头河畔路
面积:250㎡
主材:肌理漆,白色人造石,喷砂不锈钢
业主:喜茶
摄影师:直译建筑摄影
Project Name: HEYTEA Day Dreamer Project at Clarke Quay Singapore
Design Company: MOC DESIGN OFFICE (www.moc-office.com)
Chief Designers: Sam Liang, Vivi Wu
Design Phase: October 2018 – November 2018
Completion: January 2019
Location: Block A, 3 River Valley Road, #01-06, Clarke Quay, Singapore
Area: 250 sqm
Materials: Textured paint / White Artificial Stone / Sandblasted Stainless Steel
Client: HEYTEA
Photography: ArchiTranslator

