这座经过翻新的蒙特利尔公寓由加拿大建筑师让·马克西姆·拉布雷克(Jean-Maxime Labrecque)设计。改造包括一层的厨房和生活空间,以及两层以上的夹层空间。
The covers of subway ventilation ducts have been used as walls, railings and storage closets in this renovated Montreal apartment designed by Canadian architect Jean-Maxime Labrecque.The local designer’s renovation encompasses a kitchen and living space on the ground floor, and two mezzanine levels above.


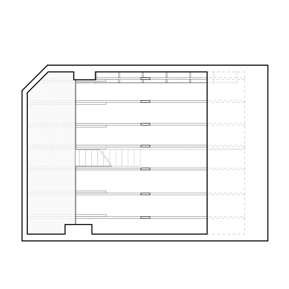
白色的格栅提供了贯穿三层的联系,形成了栏杆、墙壁和嵌入式壁橱,并命名为Aluminium Scarf。穿过一层的墙壁是内置的书架,并一直延伸到上面的楼层。金属框架设计成铰链门,并将装有架子和铝梯子的储藏空间隐藏起来。
White grates provide a link throughout the three levels forming the balustrades, walls and built-in closets, and prompted the property’s name Aluminum Scarf. Running across a wall on the ground floor is built-in bookshelves with grate doors that extend to the floor above. The metal frame is designed as doors on hinges, and conceal storage spaces outfitted with shelves and aluminium ladders.


设计师保持了公寓的骨架不变,包括白色的柱子和暴露的木天花板梁,这让人们注意到25英尺(7.6米)高的天花板。一楼隐藏浴室的玻璃块也是现有设计的一部分。
The local designer kept the bones of the apartment the same, including its white pillars and exposed wood ceiling beams, which draw attention to the 25-foot (7.6-metre) high ceilings. Glass blocks that conceal a bathroom on the first floor are also from the existing design.
深色的木地板也用砂纸打磨过,并以较浅的色调进行了修补,以将视线吸引到天花板上具有历史意义的木框架上。
Dark wood floors have also been sanded down and refinished in a lighter tone, to draws the eye up to the historic timber framework on the ceiling.






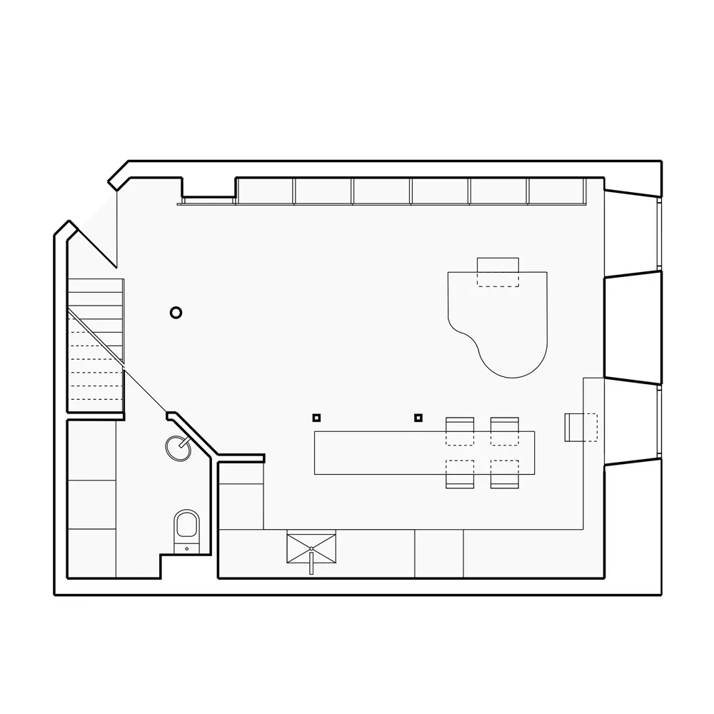
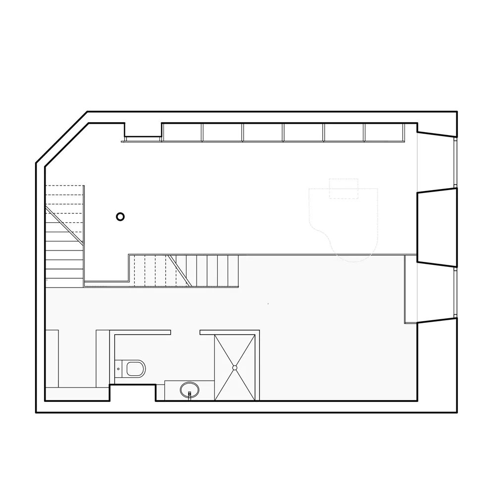
∇ 平面图



主要项目信息
项目名称:Montreal apartment
项目位置:加拿大蒙特利尔
项目类型:建筑改造/住宅改造
完成年份: 2019
设计公司: Jean-Maxime Labrecque

