三年时光的重聚
“LUMI是来自拉丁语的词根,几乎所有寓意着“光”的字眼,皆由它起源。带着生命的有限性和视野的无边界性,LUMIFACULTY由此诞生。我们想要记录世界的热望和敬畏的心情,并借助“光”的存在达成最为直接与真实的交流.”—— LUMIFACULTY
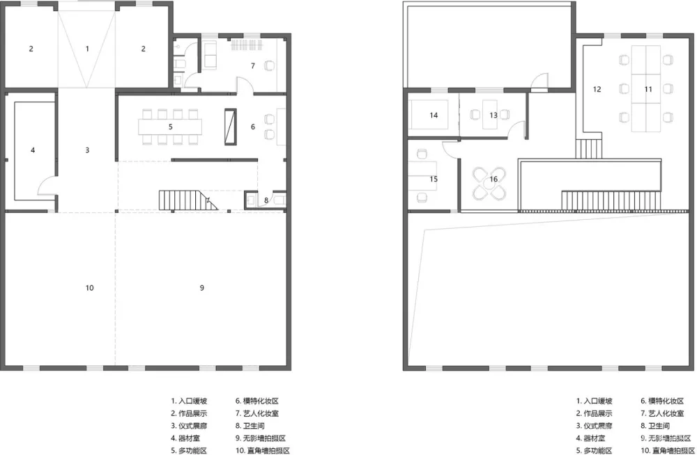
三年前来到这个重建的“旧厂区”,卢师傅(摄影师卢先生)选中了这间厂房。最低点6.3米的通高空间刚好满足平面棚拍摄的高度要求。我们商量本着“修旧如旧”的心态,保持这个重建厂房的粗糙感。所以在材料使用上,我们选择耐候钢板跟水泥装饰板作为主材,构建所有的新空间。耐候钢板作为“引导性界面”,通过“一横一竖”两个动作,塑造了由入口进入拍摄区域的展示性空间,同时结合细密的金属网,将拍摄区域与配套功能区域进行了水平划分。入口通廊设计宽度为2.4M,目的是为了满足汽车广告拍摄时的进出需要,同时增强整个入口空间的仪式感。
不同于其他摄影空间对自然光线的排斥,LUMIFACULTY希望他们的工作空间充满适宜的、变化的自然光线,于是我们决定在枯燥简陋的屋面增设天窗,既解决二层内部办公区域的采光需要,同时在整个空间的“枢纽地带”将光的四季冷暖引入室内。螺纹钢板与工字钢直接焊接的楼梯联系二层的内部办公区域与首层功能。
多功能区域(会议、聚会、临时办公等)是首层配套功能的核心,穿过多功能区,可以到达内侧的模特化妆区,以及私密性最强的艺人化妆间(包含化妆、更衣、私人卫浴空间)。沿楼梯外侧的走道亦可直接到达化妆区域,需要时可避开多功能区。
三年的时光,留下了众多的使用痕迹,我们都在图像内真实保留,在我们看来,这是这个空间由死到生的过程,这些“人气儿”,是我们尤为珍视的“直接与真实”。希望它可以继续生长下去。
项目名称:LUMIFACULTY视觉创意机构
设计方:独立建筑师李子晗
联系邮箱:zh985120@163.com
项目设计 & 完成年份:2016年2月
主创及设计团队:李子晗(项目主持建筑师),周琳(项目经理)
项目地址:北京市朝阳区广渠东路南洋文创园B1-2
建筑面积:266平方米
摄影版权:卢彦夫(LUMIFACULTY视觉创意机构首席摄影师)
客户:LUMIFACULTY视觉创意机构
品牌:水泥自流平、耐候钢板、水泥板

