码头上的灯塔
灯塔
坐落于福康宁山前方不远处的克拉码头,曾经是新加坡最繁华的码头,如今早已不再装卸货物,其旧仓库被保留下来,改建为休闲街区,喜茶在海外的第一家白日梦计划便选址于此。
MOC DESIGN一反克拉码头街区昏暗、为了营造神秘感而以封闭式形态呈现的思维,以开放的形式、一览无余的布局及明亮的纯白色调出现在街区中。受到福康宁山上的灯塔所启发,MOC DESIGN 在有限的空间中以阵列的形式设置了20个灯柱,其中一些结合高桌进行设计以满足功能性需求。
灯柱随着时间缓慢的变暗又逐渐亮起,以此重现灯塔的闪烁周期。人们可以透过入口前厅的玻璃盒子,看到店内的灯柱缓慢的明暗交替,结合自然光线的变化,空间由早至晚呈现着不同的迷人表情。
隐藏于天花木质造型顶部的灯带照向天花产生的漫反射,达成了室内空间柔和的光照氛围,辅以局部的射灯划分出座位区与通道。
灯塔为迷航的船只指明方向,灯柱也将承载相同的功能。旧时人们聚在一起品茶,而现在的年轻人则围聚在灯柱下分享喜茶,我们期望店内的灯柱能成为引导茶客们找到心中茶味的标志。
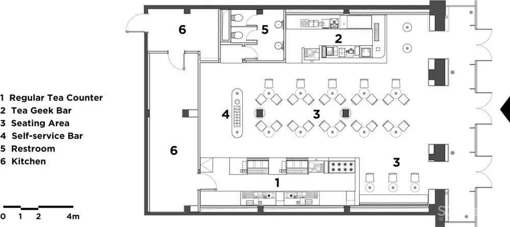
项目名称: 喜茶 – 新加坡克拉码头白日梦店
设计单位: MOC DESIGN OFFICE (www.moc-office.com)
邮箱:info@moc-office.com
主创设计师:梁宁森,吴岫微
设计周期:2018.10-2018.11
竣工:2019.1
项目地址:新加坡克拉码头河畔路
面积:250㎡
主材:肌理漆,白色人造石,喷砂不锈钢
业主:喜茶
摄影师:直译建筑摄影


謝謝分享