住宅翻新
位于城市主干道的显眼位置
这个历史悠久的老公寓该如何重获新生?
巴西事务所 Saito Arquitetos
顺应屋主期望,将原有 250㎡ 公寓打通串连
额外拓增出收纳与社交空间
及更多功能区,满足大家庭的生活需求
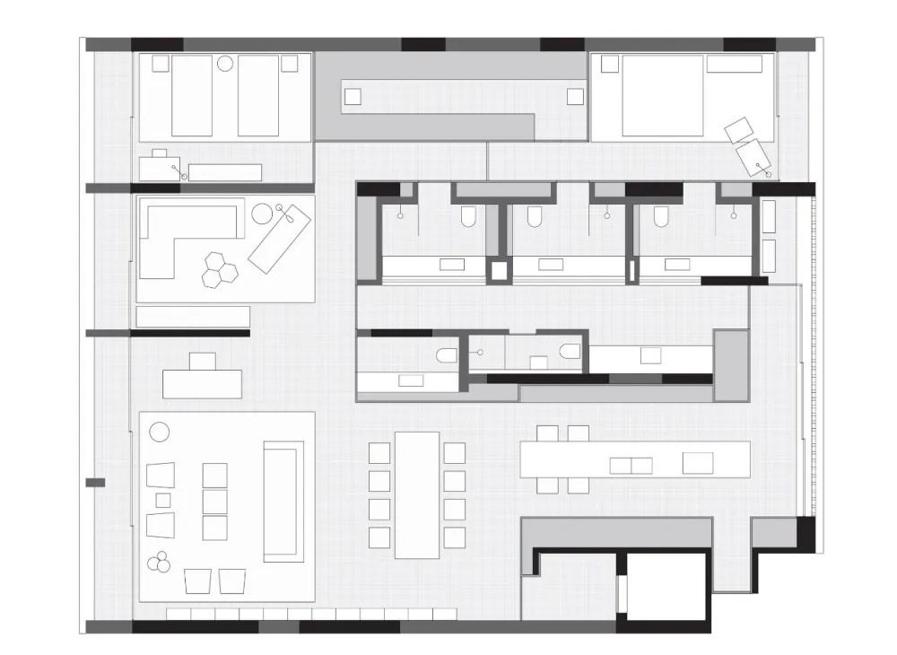
改造前,公寓原有结构
比较复杂,房间太多导致空间非常封闭
设计师拆除了多余隔墙
用木墙把浴室、洗衣房等功能区
围合成一个整体,释放
更多空间,形成通透的开放式客餐厅
室内以原木和白色为主
玻璃砖拼成灰色系马赛克,营造连续感
房间里具有历史意义的
是这对路易十五风格椅子,代表了
家族传承,和现代风家具摆在一起
相当抢眼,韵味独特
由于业主很爱看书
设计师特地为他定制了一个大型书架
横跨餐厅和起居室
白色金属板材做成大小不一的隔层
能摆放各种尺寸的书籍
大块窗户为厨房带来
充足自然光,白色橱柜和原木隔墙
形成对比,并做了一块
壁龛用作收纳空间,胡桃木餐桌
营造高级的用餐氛围
公寓原有的三间卧室
被改造成了一间带独卫的主卧和客房
及可以看电视的娱乐室
灵活的空间更适用子女多的家庭
面积:250㎡
地址:巴西
设计:Saito Arquitetos
照片:romulo fialdini

