age One 北京坊书店选址于北京中轴线上天安门广场旁的正阳门西南角,位于大栅栏传统商业区的核心地段,这个特殊的地点承载了北京商业发展重要的历史痕迹和空间记忆。对于我们来说,这是一次完全在已建成的建筑空间内进行的室内设计,但由于这个地点所具有的鲜明城市性特征,在设计一开始,我们选择了从城市空间的角度切入思考。
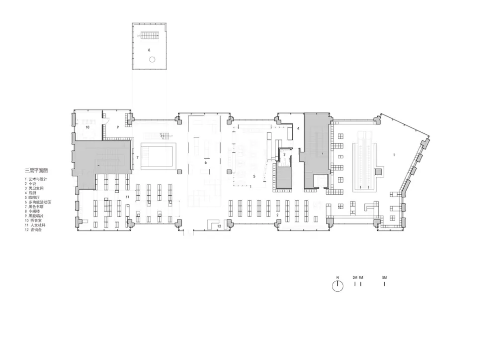
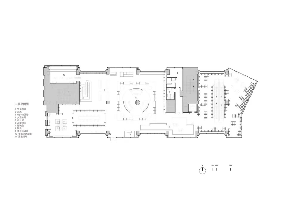
我们尝试将城市“街巷”的概念延伸进入到这个3000余平方米的三层室内空间内部,在原有的商业建筑空间外壳内去创造出一系列的对应各种不同主题的独立空间。我们希望人们在商业空间场所中仍然能感受到开放的城市所具有的鲜明的内与外、专属与公共的空间关系,延续城市视角与空间体验。书店里的“街巷”空间串联着位于不同楼层的十余个“小建筑”,其中包括贯穿三层空间的18米高垂直书塔,从城市街道开始的入口甬道,由两片50米长的书墙围合而成的一层开放大空间,面向正阳门的洞穴,碗型剧场式的儿童区、顶层吸纳阳光的艺术区和咖啡馆,等等……
我们在这个概念系统的控制下根据具体功能进行着在局部空间的尺度、材料、光线的定义与区分。最终希望这个24小时营业的书店能够在一个高品质的建造环境基础上对居民友好开放,融合多种城市生活,成为一处重要的北京文化场所。

▼场地位置示意
▼设计手绘
▼一层平面图
▼三层平面图
▼二层平面图
▼轴测
Page One 北京坊书店室内设计
地点:北京市廊房头条13号院1号楼,中国
主持建筑师:董功
项目建筑师:周飏、刘晨
项目成员:张菡、张鹏、马小凯、张恺、张钊、冯超颖、陳竑賓、赵丹、陈振强
驻场建筑师:周飏、张鹏
结构顾问:纪立新
机电顾问:张怀强、丁丽萍
灯光顾问:清华大学建筑学院张昕工作室
业主方:新经典书店有限公司
施工方:建峰建设集团股份有限公司
材料:钢、金属网、竹钢、亚克力管、木、水磨石、杜邦纸、阳光板
建筑面积:3050 平方米
设计周期:2016/04 – 2017/01
建造周期:2017/01 – 2018/01
摄影师:陈颢,马小凯

