Dr.Jart (蒂佳婷)以艺术和文化为灵感,追求以皮肤病为基础的健康美。Dr.Jart 用最理性和最合乎逻辑的“医生的眼睛”来诊断一种现象,用“艺术”的情感和灵活的表达方法来表达真正的价值和美的方式,并谈论“健康的美丽”。Dr.Jart 首次在首尔Garosu-gil购物区建造的空间被命名为“过滤空间”,拥有最纯净的“水”,“空气”和“光”,这是健康美的3个要素。Dr.Jart 的第一家旗舰店“Filter Space Seoul”是健康美的基本元素,如“水”,“空气”和“光”,可以以最精致的形式体验,并且计划成为最干净的环境污染的舒适体验空间每年都在恶化。
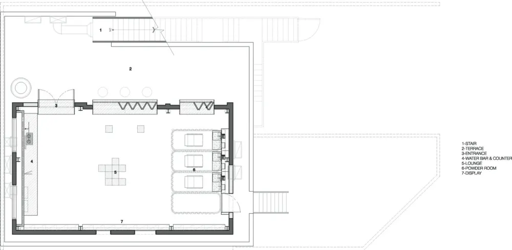
设计师保留了建筑物的现有形状,在屋顶上放置了一个大型空调系统,它经过精心设计,看起来像一块连接每个楼层和空气管道的功能性机械。它也被认为是白天用冲孔不锈钢板覆盖的过滤器,而现有建筑的形状和性质在夜间暴露,显示出空间和建筑的紧密结合的功能。覆盖建筑物的空气管道可以在楼梯中进行探索,楼梯是进入新建筑区域的入口之一,因此每层楼的通道形式允许“人”和“空气”。
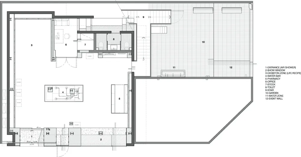
在一楼,游客可以通过“空气淋浴间”进入空间,该空间是为了保持空间与外界保持清洁。通过提供一个可以提供纯净水的“水吧”,以人体最基本的元素而闻名,人们可以通过Dr.Jart 的一些建议开始他们的健康美容生活。它规定不仅考虑顾客的皮肤状况,情绪和健康,然后如果访客将处方带到药房,他们可以有一些产品样本和与他们的皮肤状况相关的糖果。
项目名称:“过滤空间” Dr.Jart 首家旗舰店
项目地址:韩国 首尔 Garosu-gil购物区
设计公司:Betwin Space Design
占地面积:109.06平方米
空间主材:银色拉丝不锈钢板、不锈钢冲孔板、混凝土自流平、玻璃
空间摄影:Yong-joon Choi
项目客户:HAVEBE
购物空间 护肤品牌店 国外

