位于纽约长岛的South Fork以其得天独厚的自然条件,吸引着艺术家们怀着灵感与梦想伫足于此。当中最负盛名的区域便是The Hamptons。在和煦日光与优美景致中,艺术家们的才华让这个地区成为美国当代艺术与建筑的重镇。然而近年来,这些美名也为The Hamptons带来令人不乐见的发展—水准参差不齐的建案如雨后春笋般冒出,居民人口急遽增加、交通日渐壅塞。居住于此甚至开始给世人们炫富招摇的负面观感。在接受一位老客户的委托之后,我们开始思考:如何打造一座俯瞰Peconic海湾、蕴藏The Hamptons文艺气息而又兼具当代隽雅风格的住宅
我们的客户—一对夫妻,在俯视Peconic湾的峭壁之上,找到了一片由茂密树林所环抱的狭长青草地;一棵65公尺高的梧桐树蔚然挺立于草地中央。绿意绵绵、生机盎然,这片五英亩大的青草地毫不保留地令人如痴如醉、心驰神往。在这里,Mapos希望再现The Hamptons的渊源历史与绝代风华,我们的客户则力求融于环境、拥抱自然。一场游走于展现艺术人文与善待自然生态间的对话,火花由此展开。
Peconic House由372平方米的建筑和186平方米的露台组成,优雅地楔入大梧桐树北部的山丘里。住宅横向延展贴近地面,旨在不遮蔽树木所需的光照且展现Peconic Bay的原始景观。屋顶种植原生草皮以降低人造建筑对环境的干预,同时将建筑对这片流域的影响降到最低。61公尺长的露台与住宅平行、自山丘缓步而下,并向西延伸形成一个23公尺长的无边泳池。我们还用的混凝土、松木、再生木材与耐候钢使建筑物原本有稜有角的轮廓便得圆融;房屋与露台彼此相应相合,轻柔地没入原有的植被与海岸线中。这些原材料在积年累月之后将被大自然染上一层独有的色泽,最终成为大地景观的一部分。
我们的客户对两位杰出当代艺术家—Richard Serra和Andy Goldworthy情有独钟,而这两位艺术家在作品中呈现的丰富层次感、空间感也形塑了我们对这座住宅入口的设计概念。于树林里与青草地上沿著蜿蜒石墙前进,在耐候钢的指引下漫步走过一层又一层的青葱翠绿,揭开整座宅邸全貌的面纱后,来访的宾客来到了入口。
甫进入屋内,映入宾客眼帘的是整个Peconic海湾东西向的全景。客厅阶梯式的设计令人感到犹如从树丛中走出来的旅人一般,震慑于倏然开阔的美景。住宅内部视觉设计则浓缩了峭壁顶端的景色,一株株原生的雪松、再生白橡木依着宅邸内的地势,与31公尺长的玻璃墙一同延伸到露台。在Peconic House,我们的每一个巧思都致力于模糊人为建筑与自然景观之间的界线:铺满原生草皮的绿色的屋顶维护了生物多样性;吊臂的设计则是提供了上午接受日光沐浴、下午接受阴影庇荫的弹性;宅邸东侧的转折处则自然而然地座落了一扇主卧室专属的凸窗。室内设计上,形象与意象两者在这做宅邸的呈现相辅相成;而各项注重永续发展的细节也表明了Peconic House就如同您由其外表所见:以人为本、拥抱自然。

▼场地平面
▼二层平面
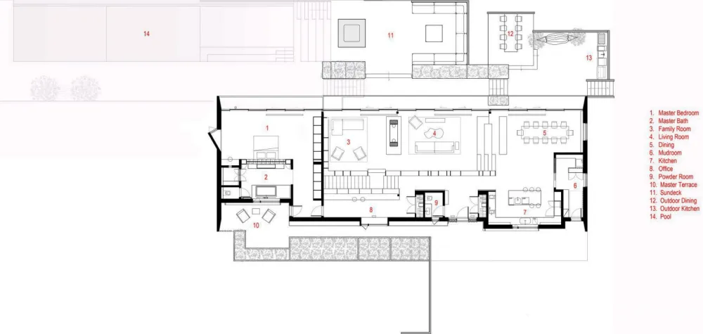
▼首层平面
项目名称:Peconic House
设计:Mapos Architects D.P.C.
设计年及竣工年:2016年
项目地点:美国纽约州汉普顿海湾
总建筑面积:354
摄影资料:迈克尔·莫兰/奥托
合作伙伴:总承包商:Gentry Construction Company, Inc。
景观设计:John Beitel

