VOX建筑事务所设计了位于俄罗斯叶卡捷琳堡的Clever park销售办公室。
VOX Architects designed the sales offices for the Clever Park Development located in Yekaterinburg, Russia.


ACONS GROUP是俄罗斯的一家大型开发商。Clever park是ACONS集团最成功的项目之一。smart Park是一个综合开发项目,位于中央城市公园和Iset河堤岸附近的一个独特的地方,距离叶卡捷琳堡中心只有6分钟的路程。
ACONS GROUP is a major Russian developer in Russia. Clever Park is one of the most successful projects of the ACONS GROUP. Clever Park is an integrated development project located in a unique place near the Central City Park and the Iset River Embankment, just 6 minutes from the center Yekaterinburg.






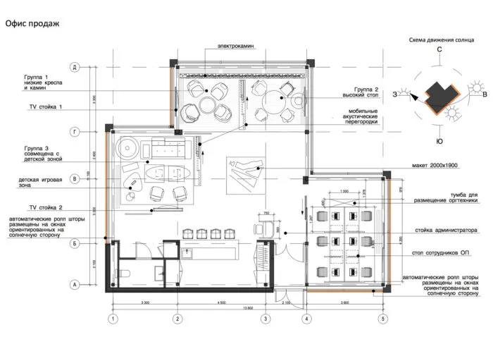
∇ 平面图 plan

完整项目信息
项目名称:Clever park
项目位置:俄罗斯叶卡特琳堡
项目类型:办公空间/办公室
完成时间:2018
项目面积:120平方米
设计公司:VOX Architects
摄影:Sergey Ananiev


现在这个浮躁的世界,能细心整理一些东西发上来的越来越少了。要么就是敷衍的图片,要么就是枯燥的文字。之后就是AI生成的预制菜类的打包便捷快餐了。感谢楼主的分享,让我能在大智能无人化来临之前,看到同类发出的项目。有幸与您互动,缘分。