梦是愿望的满足,是幻想,也是愿望的实现。 人皆有梦,这是一种虚幻却真实的体验,超越了现实空间界限,设计如同造梦,它充满了奇迹,改变我们的生活方式和认知……
进入中梁金科.启宸售楼处的梦境空间,造梦城的旅途被开始唤醒,这是一幅自由的梦幻蓝图,一个演绎弗洛伊德式的梦幻乌托邦世界。 UMA伍玛设计重新思考和定义了城市的生活方式,通过还原生活的纯朴本真,模糊商业和艺术的边界;在追求梦幻与现实的道路上,寻找被遗落的美好,追逐未可知的梦境。
驱动意识的觉醒,催生情感的萌动。 天光慢慢从墙体上爬过,麋鹿带来了童话般的梦幻气息,一切开始发生……
城堡圆顶造型,无限循环的空间,像是西方城堡的城墙,一种戏剧化的光影分割,虚实交织,以独有的韵律性与节奏感开启着对梦境的探索,从幻想的源头打开未知之门…..
以物为实,空间为虚。在设计中利用彩色琉璃既透明又反射的戏剧化效果,去展现被隐藏的内容。缓步进入,灵动的线条仿佛漂浮的流云,直抵灵魂最深处,开启一段梦幻的探索之旅。
梦是愿望的达成。空间如盘旋交错的梦境,踏着时空的旋律,仿佛能看到如落叶般的时间碎片在前面飘过。在碎片里,星光揉碎了生活的诗意,云朵在醉梦中轻声低吟。
游走在真实与虚幻,或交织成五彩斑斓的光,梦境如潮水波浪一样翻涌而来,未知的感官冲击着意识的觉醒。在这里,你不能做我的诗 ,但我可以造你的梦。
人生好似‘名利场’,设计师就如这场戏中的造梦师。情感是空间设计中最重要的元素,洽谈区域蓝色与粉色的块面穿插,如同打翻了马卡龙的颜料盘,蕴含着沉浸心灵的精神力量。
VIP区域是梦境的延续,是一场虚幻中的真实,平复前序热烈的章节。在自我梦境的构建中,游梦为境,观者自观。
移步易景间亦如递进的意境,阶梯的层叠好似钢琴的演奏用键,搭建连接现实与幻想的阶梯。右侧窗口处,璀璨浮光的彩色亚克力材质,伴着银河星辰,望着清晨朝露,连接外部空间,也通往人们的内心。
弗洛伊德式的造梦艺术,打破常规的几何构建,图块的重叠镜像,遮蔽的真实与静谧的梦幻……,过去与未来在这里相遇,伴着银河星辰,望着清晨朝露,每一转折与留步之间,梦境总停留在意料之外。
云梦深处可见鹿。色彩美学的奥义之于设计师,不啻于空间造梦的基石,推动着梦境的发展。设计师在理解“梦境表达”的语汇基础上,隐喻着人与自然和谐共处之道,动植物的陈设摆放,从深层次隐喻对环境的保护与重视。
童年是梦开始的地方,当你们终于抵达目的地,孩子们推开一扇沉重的木门。随着“吱呀”一声,你见到五彩缤纷的世界在你的面前铺展开来,梦想化为气泡冉冉的升起,化为未知的星系。 在这里,没有繁忙的节奏,没有喧嚣的吵闹。 在这里,你将被万物温柔以待。
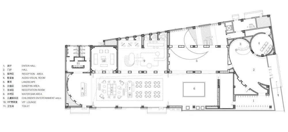
项目名称:中梁金科.启宸售楼处 项目地点:中国 常州 业主单位:中梁地产集团 甲方管理团队:殷浩、曾伟、张耀、杜佳丰 硬装设计 : UMA伍玛设计 设计总监:熊团辉 硬装团队:毕胜思、王明君、李解、原光辉、辛中华、俞晓华 软装设计:上海几朵设计 创意总监:郑小君 设计团队:金小知 设计面积:1200㎡ 室内摄影丨三像摄 – 张静 完成时间丨2020/1
UMA Interior Design伍玛设计,是一家国际前沿的室内设计机构,专注于酒店会所、售楼处、样板间、高端私宅及商业空间项目的设计和咨询,通过对设计项目的市场研究和分析,提供国际化设计服务。 始终秉承“设计创造价值,品质改变生活”的理念,从设计概念引导分析及系统化的项目管理经验,拥有国际化的设计视野与专业化的设计团队。 公司与诸多国际团队合作,与众多知名开发商建立合作关系,尤其与保利、招商、世茂、旭辉、中梁、正荣、首创、佳兆业、天一仁和等地产集团一直保持战略合作伙伴关系,通过专业化的服务意识,给予客户提供全方面的设计服务。
上海几朵空间设计有限公司前身是温州美度装饰设计有限公司,温州美度装饰设计有限公司成立于2012年01月05日,是一家专业从事室内整体软装设计与实施的软装设计企业,公司拥有一支具有国际化视野,锐意进取、经验丰富的设计团队。为客户提供咨询、设计、定制、陈设布置一条龙的专业软装设计服务。 企业专注于楼盘精装房、样板间、售楼部、会所及商业卖场的整体软装设计,形成了品牌化、规模化、规范化、服务化的竞争优势,是国内知名房企和高端精装楼盘的优选合作伙伴。

