LIM工作室翻新了圣保罗1973年的野性主义公寓,其特点是沿着空间重复使用混凝土拱。非常特别的是,这个组合展示了从地板到天花板的大部分房间的框架,创造了结构和景观之间的微妙差别——这两个元素在设计室内时是不可能被忘记的。
Studio LIM has recently refurbished a 1973 Brutalist apartment in São Paulo characterized by the repetition of concrete arches along the spaces. Quite particular, this composition shows the frames that rise from floor to ceiling in much of the room and create a nuance between structure and landscape – two elements impossible to be forgotten when designing the interiors.


该住宅之前进行了翻新,整个公寓都被拆除了,石膏掩盖了建筑的拱门。在同样的方面,80%的框架(地板到天花板)也用石膏覆盖——固定的上下窗户被隐藏,只有倾斜的窗户作光的入口。
The unit had previously undergone a refurbishment and the entire apartment had been demolished with plaster lining, which hid the arches of the structure. In this same respect, 80% of the frames (floor- ceiling) had also been covered with plaster – the fixed upper and lower windows were hidden, and only the tilting window remained as light entrance.


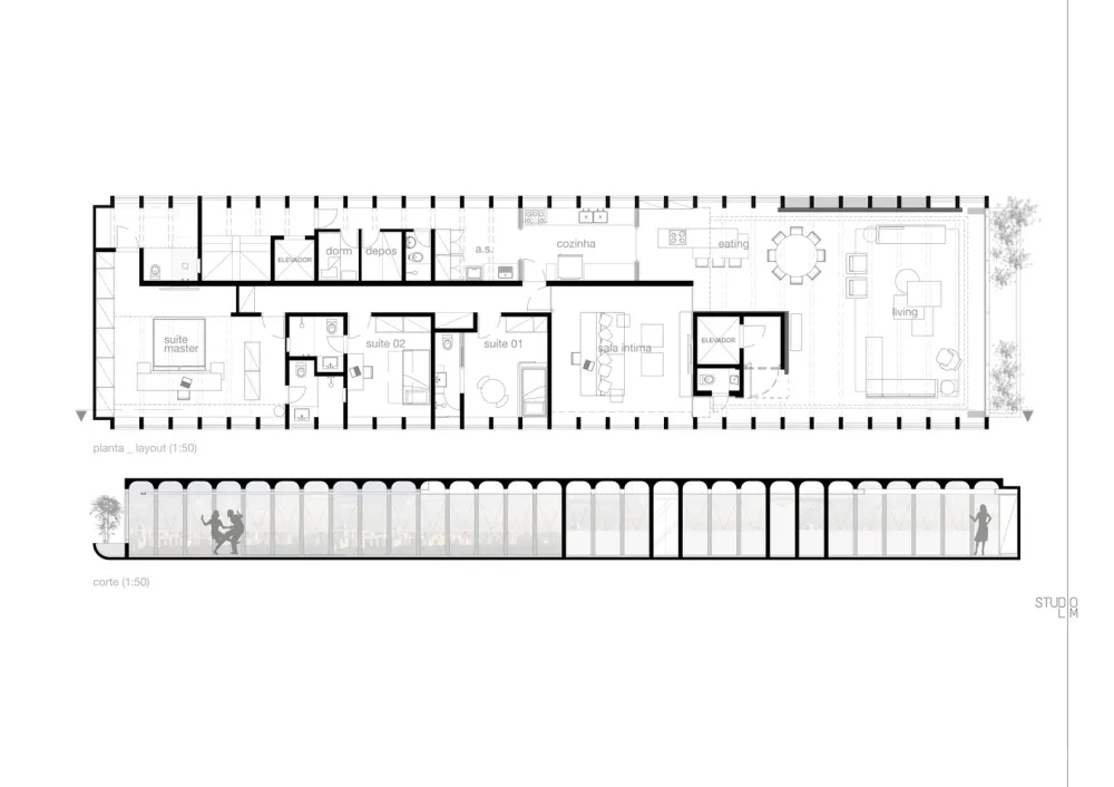
在追求美学的定义下,下一步将是调整房间——原计划中的两间套房被改造成三间,因此,通过创造一个主卧和第二个浴室来扩大主卧套间,并根据现代生活的需要来构造设施。在某些地区,空调、自动化和照明管道需要最少的石膏。通过减少干预,可以在主卧套间的大部分和社交区域保持裸露的楼板。
With the definition of the aesthetics to be sought, the next step would be to adapt the rooms – the two suites in the original plan were transformed into three, thus enlarging the master suite with the creation of a master and a secondary bath – and structure the facilities according to the needs of modern life. The air conditioning, automation and lighting pipes required a minimum of plaster lining in some areas. With that reduced intervention, it was possible to maintain the slab exposed in most of the master suite and in the social area.


在讨论这个项目时,这对夫妇说,他们想在周末接待朋友,为他们做饭,这种情况下假定餐厅和客厅是融为一体的。然而,这种融合不可能是绝对的,因为这对夫妇在工作日有两个孩子和两个雇员。根据这些信息,多功能炉灶被设计为房子的中心:它是周末朋友的聚会点,平日每个人都在这里聚餐。另一项重要的建议是,如果儿童的生活区与成人不同,或者是为了隔离由于电视节目产生的噪音,则私密室应与社交区域需隔离开来,供独立使用。这个问题通过安装嵌入在大厅橱柜细木滑动门来解决,在需要分隔环境的情况下,滑动门根据居民的意愿来保持分隔。
In discussing the terms of the project, the couple reported that they would like to receive and cook for their friends on weekends, a situation that presumed integration of the dining room with the living room. This integration could not be absolute, however, because the couple has two children and two employees during the weekdays.Based on this information, a multi-function stovetop is designed as the “heart of the house”: it serves as a meeting point for friends on weekends and where everyone eats on weekdays. Another important recommendation was that the intimate room should be isolated from the social area for independent use if children were to have tasks distinct from adults – or even because of simple sound insulation in television sessions. This issue was resolved by the installation of sliding doors that are embedded in the hall cabinet’s joinery, which maintains the insulation depending on the will of the residents in situations where compartmentalization of environments is required.


在公寓的装饰中,混凝土表面的硬度被自然元素软化。随着石膏和框架的拆除,从起居室里可以看到建筑周围的树顶。与此同时,大型植物花盆存在于主立面的整个延伸部分,使得公寓内部的花园变得精致。在室内,绿色、天然木材和稻草聚集在一起,使外部区域更加紧密。白色的墙壁增加了调色板的可塑性,并通过接收业主的绘画收藏品,给艺术画廊带来艺术气息。
In the decoration of the apartment, the hardness of the apparent concrete was softened by elements of nature. With the removal of the plaster and the appearance of the frames, the tops of the trees around the building began to be seen from within the living room. In parallel, the large plant pot existing in the entire extension of the main facade allowed the elaboration of a garden practically inside the apartment. Inside, shades of green, natural wood and straw have gathered to warm the concrete and bring the external area closer. The white walls add plasticity to the palette of colors and give art gallery air by receiving the collection of paintings of the owners.












∇ 平面图 plan

完整项目信息
项目名称:RR APARTMENT
项目位置:巴西圣保罗
项目类型:住宅空间/公寓翻新
完成时间:2019
项目面积:230平方米
设计公司:STUDIO LIM
摄影:Andre Mortatti


水泥风