隐藏在一个富裕的沿海郊区的“伏特加宫殿”是一个豪华的混凝土洞穴,与天然木材饰面调和,为高级烹饪,视听享受做好准备。它是客户、架构师、构建者、子顾问、子承包商和供应商之间非常强大的协作过程的结果。
客户是一个亲密的朋友和一个独特的矛盾的个人。一部分隐居和一部分派对女王她想隐居而飘渺的逃入洞穴的质量满足她所有的需求真的不用去别的地方,也在一个时刻注意到她希望能够邀请世界在风格和娱乐亲密的朋友和家人。
宫殿的功能被设计成一条变色龙,允许她根据需要的场合和心情创造不同的视听灯光效果。从外部看,客户想要感觉她是在她心爱的第二家的丛林中,在西澳大利亚西南部地区,她曾经拥有和管理一个标志性的酒店,这是为她创建的使用当地的树木和灌木代表的地区。
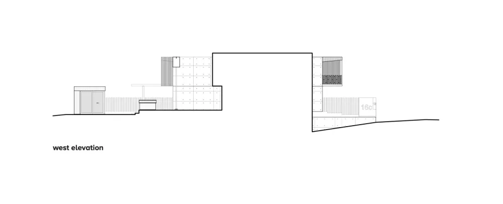
失水准的选择具体的共鸣的沿海位置反映出强大的野兽派形式的亭和公共设施典型许多当地的海滩和其接地凉爽温暖的木材完成,一个中立的颜色,考虑玩光创建一个喜怒无常的组合,唤起一个宁静,禅的体验。为了增加这种氛围,古老的日本炭化木材技术“Shou Sugi Ban”被用来完成木材包层柱和木材隐私屏障。
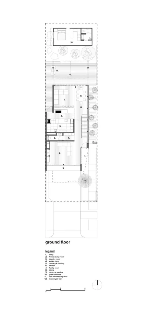
位于酒店后部的“Caboose”是一个小木屋,为客人、海外朋友和家人提供独立的私人住所。有意地,它的设计不针对主要的房子,并发挥了额外的功能,作为一个黑暗的背景,后方的娱乐甲板的宫殿。
通过它的体量,它有助于在空间上创建后庭院,并提供隐私从和阻碍视线到邻近的后物业,从而简化了外观,强调景观。通过东侧的秘密通道,客人可以方便地进出,而无需进入主住宅,从而最大限度地减少对主居住者的干扰。
坐落在一个狭窄的网站具有两层结构的两侧靠近边界,获得自然光借给自己的采光井,一个套房,另在楼梯,虹吸日光进入中间内部没有受益于北或南玻璃。
这个项目的精神是它最大的乐趣之一,所有人和谐地工作,以制造商的决议,这是我最满意的事实。持久的关系已经建立,我认为最终的结果不是我自己的,而是所有相关人员的共同努力和鼓舞。




项目位置:Cottesloe、澳大利亚
项目名称:Vodka Palace House
设计公司:Marcus Browne architect
设计团队:MARCUS BROWNE architect. & Jane Willis
设计面积:435.0平方米
设计时间:2018年
摄影师:Dion Robeson


设计很舒服,不做装饰的混凝土墙面很难驾驭