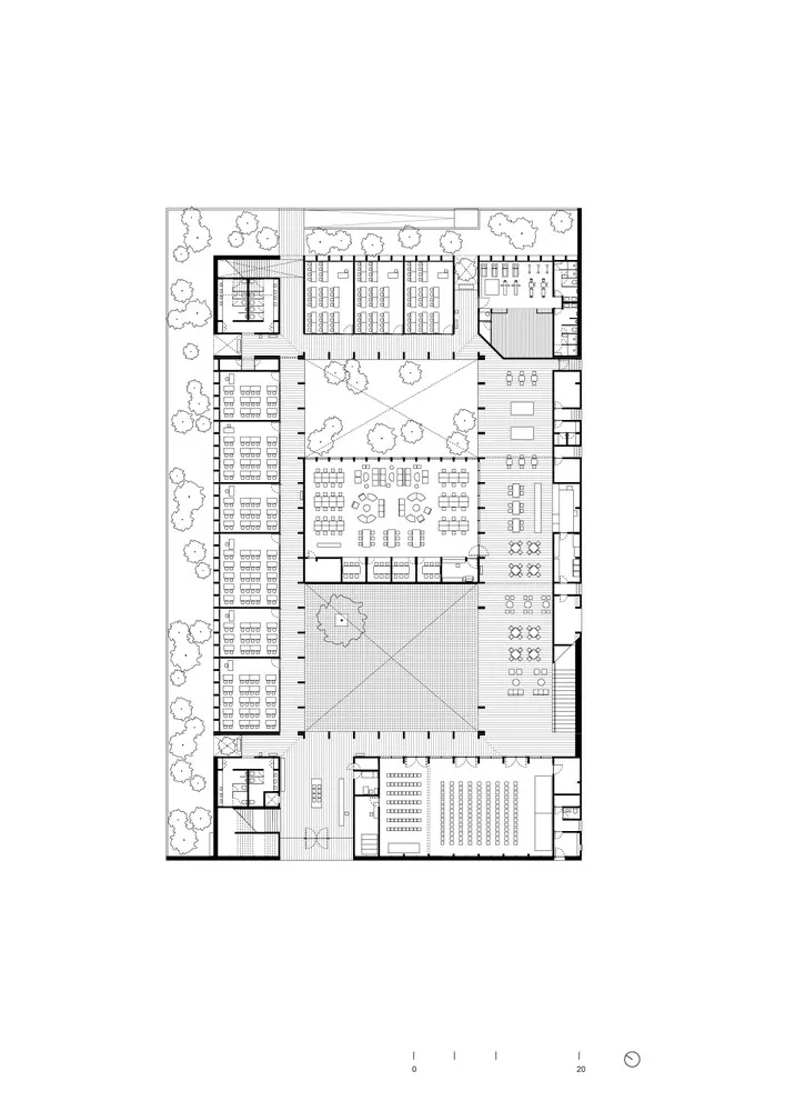
该项目位于阿瓜斯卡连特斯市的一个不断发展的地区。毗邻地块未知的未来发展引导了一个内向校园的创建。
 
 
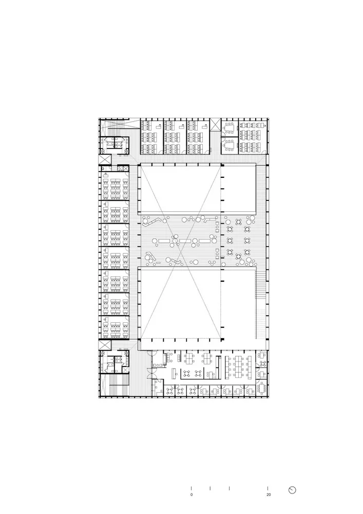
校园的构成和功能策略在于中心广场的设计:一系列同心圆从这个大型会议空间向外辐射,赋予项目的意义和形状,并赋予项目的使用。
 
 
庭院被学习中心细分,为学校最公共的活动创造了一个多用途的广场和一个沉思的花园。
 
 
一个结构拱廊创造了围绕庭院的周边循环,然后是教室和项目的一般项目。立面或结构周边回应了每个部分的使用和朝向。
 
 
 
 

 
 

 
 

 
 

 
 

 
 

 
 
 
 
 
 
 
 
 
 
 
 
 
 
位置:墨西哥
首席架构师:Ignacio Urquiza, Bernardo Quinzaños
年份:2018
摄影师:Onnis Luque, Ignacio Urquiza Seoane


