感谢来自 艾克建筑 的住宅项目案例分享:
“住宅是居住的机器”–柯布西耶 “A house is a machine for living in” — Le Corbusier
时代不同,现代城市依然充斥着大量的“住宅机器”,随着时代的变迁、生活需求的改变,我们对家,对居住环境的需求同样发生着翻天覆地的改变,样板间是对居住环境的引导与定义。这一次我们想重新审视这个居住环境的演绎,在设计上发出一种异样的声音,更多的去阐述人与空间的情感和精神。
We now live in a different era, but modern cities are still filled with “living machines”. With the change of the times and living demands, our requirements for home and living environment have also undergone drastic transformation. This time, through approaching the interior design of two apartments, we want to re-examine the interpretation of living environment, express a different voice on design, and focus more on the emotional and spiritual connections between people and space.
建筑空间不是纯粹的物体,而是存在于人与人的相互关系中,因为建筑与人的精神互相依存与影响,所以,越注重自身价值的人,越看重住宅的品味,越追求空间的独特性与多元化。
Architectural space is not just an object. it exists in the inter-relationship between people. The spirit of humans and architectures are interdependent and influential, therefore, the more one pay attention to his/her personal value, the more they pursue the uniqueness and diversity of the dwelling spaces.

俏皮艺术 Nifty Art
C1户型我们定义它是有个俏皮的艺术家。我们试图通过一个多元复合的体验式居住空间,来建树一个张扬的空间性格。通过对形体、色彩、质感、软装来营造一个颇具性格的艺术宅。
We define apartment C1 as a playful and nifty artist.We attempted to construct a diverse and composite experiential living space and give it a flamboyant character. Through utilizing and integrating structural shapes, colors, textures and decorations, a characteristic and artistic residence was created.
一个很普通的一个160平方米平层户型,这个户型有一个很大的缺点,很小的厨房与很小的餐厅,然而却有两个偌大的半户外阳台。我们大胆的设想,这是一个三代同堂的家庭结构,且经常组织家庭聚会。设计的核心必须去满足一个好的习惯,一个典型的中国式家庭–融合。我们要做的是传承这样的一种精神内核。同时更好的去挖掘户型本身的潜力来提高户型的商业价值。
Occupying an area of 160 m2, the apartment has a big drawback: small kitchen and dining room. However, it has two large semi-outdoor balconies. We made a bold assumption, and imagined that it would serve for a three-generation family which always hold family gatherings. The core concept of the design is to inherit the Chinese tradition and spirit of family togetherness. At the same time, we also intended to explore potential ways to improve the apartment’s commercial value.




金色成为空间的点缀色,配合墙体白色乳胶漆及灰色水磨地面,通过色彩和质感的强烈对比来强调张扬的调性。
The space is dotted with striking golden color, which well matches and contrasts with the white latex paint on the wall and the gray terrazzo floor, thereby emphasizing the flamboyant tonality.



布局上,常规的方形的空间中,嵌进了一个圆,通过它来界定空间的边界。这个圆也顺其自然的解决了餐厅面积过小的缺点,入户的阳台花园,我们利用来做厨房,将原本使用率极低的空间变成使用率最高的空间,同时也拥有了一个舒适的厨房空间。
For the layout, a circle was embedded in the regular square space to define spatial boundaries. This circle also naturally solved the shortcoming of the dining room being too narrow. The balcony garden at the entrance area was used as a kitchen, hence transforming the originally least used space into the most frequently used, and obtaining a comfortable cooking space at the same time.




客厅空间立面以白色的艺术漆为底,立面的弧线线条来呼应餐厅的圆形,强调空间的线与面的关系,通过弧形线条重塑空间的构成美学。深灰色水磨在居家空间的运用,更加彰显空间的独特。平天花更好的突显餐厅圆形的天花线条,同时有力的拉升了高挑的空间感。餐厅与客厅一气呵成,互相融合。构成一个热闹的大家庭。我们可以想象人与人之间其乐融融的生活情景。黑色的QEEBOO骷髅边桌,色彩斑斓的土耳其进口地毯等软装配饰,无一不是在强调空间的俏皮与精神性。
Finished with white paint, the walls and ceiling of the living room feature curves, which echo the circle in the dining room, highlight the relationship between lines and surfaces, and reshape the composition aesthetics of space. Besides, dark grey terrazzo was used as floorings, making the home more unique. In the dining room, the flat ceiling complements the circular lines on it, which injects a sense of loftiness to the space. The dining room and living room integrate into a whole, forming an area for the family to gather and spend a happy time together. Furnishings such as QEEBOO’s black skull side table and the colorful Turkish carpet all add playfulness and spirituality to the space.



卧室的设计我们强调最简单的睡眠舒适性,通过圆形台灯与弧形玻璃去呼应客厅弧形的线条,背景的金色与空间整体理念搭配以强调设计的整体性。
For the design of the bedrooms, we focused on creating a comfortable environment for sleeping. The circular table lamps and curved glass echo the arcs in the living room. Besides, the golden backdrop is matched with the overall concept of space to underline the integrity of the design.



浴室以灰色水磨为底,金色不锈钢为构成要素,定制的手工不锈钢盆,强调设计者对设计细节执行的追求。
The bathroom is mainly covered with grey terrazzo, embellished by golden stainless steel and equipped with bespoke handmade stainless-steel basin, all of which demonstrate the meticulous pursuit of tiny details.


∇ 空间构成原型

∇ 平面GIF

∇ 聚会场景

∇ 日常 家庭场景

∇ 收纳空间

∇ 圆 几何概念

∇ 圆边界GIF

冷酷绅士 Cool Gentleman
C2户型我们定义是一个冷酷绅士,理性与逻辑人文环境。空间似乎是动态的,一个稳定物质世界变化的存在。这是在几何之外的一种逻辑,一种运动之中的形态。至于为什么要这样,我想这并不重要。
Apartment C2 is defined as a cool gentleman, a rational and logical living environment. The space seems to be dynamic, an existence to stabilize the changing physical world. It is a kind of logic outside of geometry, a form in motion.
冷静与优雅并存的性格 它就像一个身穿黑色西装的时尚宠儿。黑白相间的空间调性,少而精的软装配套也是我们对人居环境软装提出一种新的探讨,追求一种极简的生活状态。
With a character that combines calmness and elegance, it is like a fashion darling dressed in a black tuxedo. The color palette of black and white, and the simple yet exquisite furnishings, showcase our new explorations into the decoration of human living environments, and pursuit of a minimalist lifestyle.



追求大宅的空间尺度,未来感的表皮与富有科技感的智能家居系统结合的人居空间,这是我们对现在豪宅的理解,功能只是满足现代人的生活基本诉求,体验感与仪式感是功能之上的一种升华,用空间来表达一个人的气质与性格是我们在探究的东西。
Going after large spatial scale, futuristic surfaces and smart home system, this is our understanding and impression of modern luxury homes. Functionality is only to meet the basic demands of modern life, while experience and sense of rituality are pursuits at a higher level, which are becoming increasingly important. What we are exploring is using space to express one’s temperament and personality.
入户花园与客厅餐厅一气呵成,开放式厨房更丰富了空间的层次与节奏。在这没有传统的玄关与背景这种传统手段的界限,只有行云流水的韵律,没有动向的流动感,这样的生活是不被界定的。我们希望把一种自然的无章法的物体变得有规律,建立一种秩序。我们将一种抽象的物质不停的在空间中重复,来建立空间的和谐与精神。
The balcony garden at the entrance area links up with the living room and dining room, and the open kitchen enriches the layering and rhythm of the space. There is no boundary set by traditional means such as a foyer or backdrop, only the flexible rhythm and fluidity of movement, making life here unconstrained. We hoped to regularize the disorganized objects, and establish an order. By repeating an abstract element in the space, we aimed to inject harmony and spirituality into the space.




空间中讲究工艺与细节,天花多面的曲线造型,弧线地面石材与进口手工木地板的结合,镂空的发光墙体无一不是对现代住宅中手工艺人的一种挑战。
The interiors show meticulous details and exquisite craftsmanship. The curved shapes of the ceiling, the combination of stone floorings and imported handmade wooden floor boards, and the hollowed-out luminous wall, all posed a challenge to craftsmen during the production and construction process.







卧室以白为向,弧线与客厅的元素相呼应,和谐统一。白色的天花、墙体、床品搭配黑色木地板,结合灯光设计,营造动静相宜的空间环境。
The bedroom is dominated by a white tone, with the curved lines corresponding with the elements of the living room, harmonious and unified. The white ceiling, walls and beddings go well with the black wooden floor, combined with lighting design, creating a spatial environment which intermingles the dynamic and static.





现代城市的居住环境中,我们希望打破常态,寻找空间的灵魂,做探究性的设计,我们正在发声。
As for the living environment of modern cities, we wish to break the routine, find the soul of the space and carry out exploratory design. We are making a stand.
艺术不应是可望不可及的。在我们的设计里,每一个作品都有属于自己的空间表情。物理环境之外的艺术性与精神性。
Art should not be beyond reach. Each of our design works has its own spatial expression, and artistic quality and spirituality outside physicality.




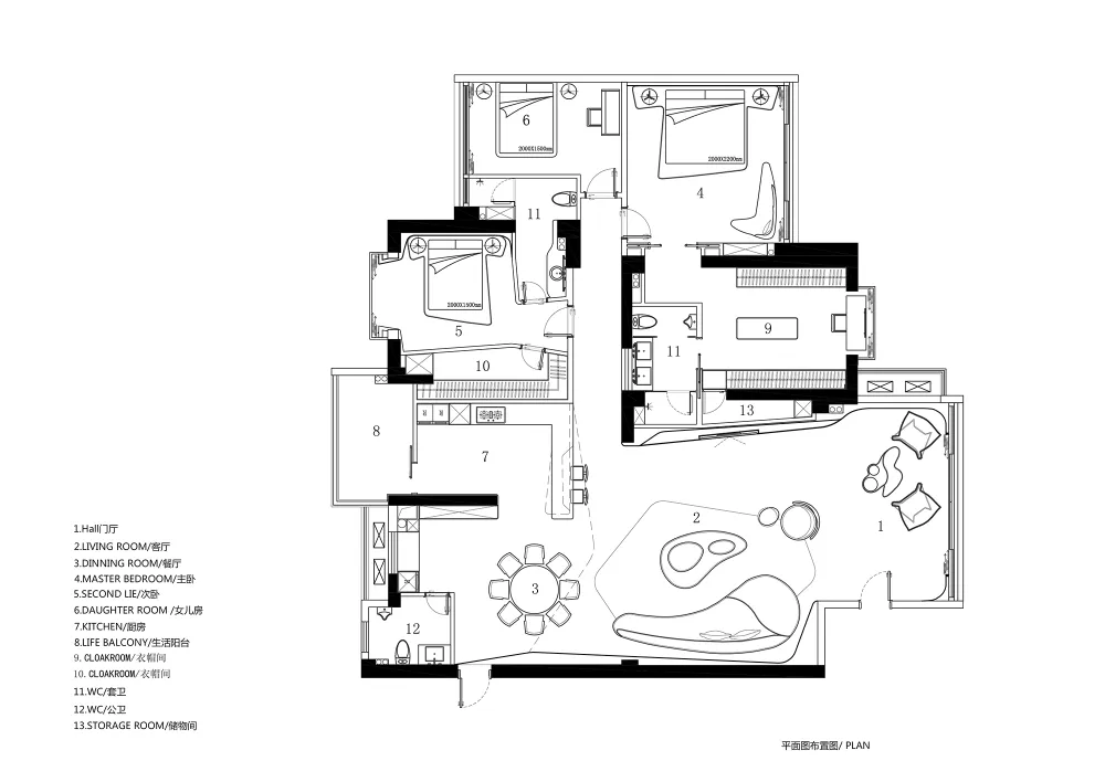
∇ 平面图

∇ 曲线

∇ 线性概念

∇ 形体演变GIF

完整项目信息
项目名称:C1-俏皮艺术|C2-冷酷绅士
设计机构:AD ARCHITECTURE∣艾克建筑设计(WWW.ARCH-AD.COM)
总设计师:谢培河
设计团队:艾克建筑
施工团队:艾克工程
项目地点:广东汕头
建筑面积:C1 160平方米|C2 205平方米
主要材料:大理石、哑光砖、艺术漆、白色哑光漆、木饰面、木地板
设计时间:2018年10月
竣工时间:2019年5月
摄影师:欧阳云
特别鸣谢:德国摩根智能家居、英国阿米纳隐形音响、必美木地板、科勒、汉斯格雅、罗兰西尼门窗、OIKOS、皓尔宝、梵品木饰面、达兴石材
Project name: Apartment C1 — Nifty Art | Apartment C2 — Cool Gentleman
Design firm: AD ARCHITECTURE (WWW.ARCH-AD.COM)
Chief designer: Xie Peihe
Design team: AD ARCHITECTURE
Construction team: AD CONSTRUCTION
Location: Shantou, Guangdong, China
Construction area: C1: 160 m2|C2: 205 m2
Main materials: marble, matte brick, special effects paint, white matte paint, wood veneer, wooden flooring
Start time: October 2018
Completion time: May 2019
Photography: Ouyang Yun
Special thanks to: German Moorgen Smart Home, Amina (invisible speaker), Beamy (wooden flooring), Kohler, Hansgorhe, Rolansini (doors and windows), Oikos, Heal-Power, Fanpin (wood veneers), Daxing (stone materials).

