感谢来自 建筑营设计工作室 的建筑改造项目案例分享:
由于各种历史原因,北京旧城区除了分布着四合院、大杂院之外,还混杂了一些单体建筑,这个项目就是对某处小型单体建筑进行的改造。原本平屋顶的房子被处理成坡屋顶建筑样式,缩小房屋体量以使其融入到胡同街区之中。房屋的使用功能设定为买手店,可以容纳展览、物品销售、轻餐甚至场地租赁等多种活动的使用。
ARCHSTUDIO transformed a small individual building situated in an old hutong neighborhood of Beijing. Due to historic reasons, there are many individual buildings in Beijing’s old districts, apart from traditional courtyard dwellings (Siheyuan) and big messy courtyards (Dazayuan). The design team replaced the original flat roof with a pitched structure, and reduced the architectural volume to integrate it into the surrounding built environment. Mainly functioning as a multi-brand boutique, the building can accommodate a variety of activities such as exhibitions, products selling and dining, and is also available for activity venue rental.


设计的主要思路是运用镜面和植物庭院尽可能的让内与外产生联系,在略显局促的有限空间中创造无限视野,把建筑转变成容纳多样场景和体验的“花园”。
The main concept of the design is to build indoor-outdoor connections through mirrors and yards, so as to create infinite field of vision in the limited space and turn the architecture into a “garden” featuring diversified scenes and experiences.
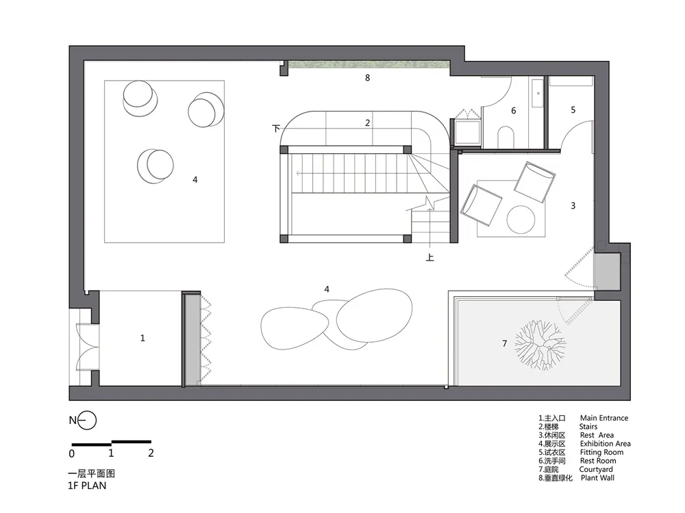
三个庭院化的空间将建筑内部立体串联起来,让室内有充足的阳光和植物景观。由胡同经一个带有天光的前厅转折进入建筑首层,这里是家具、产品的展示和售卖区。在这个镜面空间之内,人、器物、家具与植物景观相互映射,实像与镜像叠合交织于一处。
Three yards connect the interior spaces, and bring in ample sunshine and greenery. Walking through a daylight-filled yard, it arrives at the first floor, where furniture and some other products are displayed and sold. A large area of the space is finished with mirrors, which produce multiple reflections of people, objects, furniture and plants and generate an interactive relationship between the “real” and the “reflected”.





沿着交错的楼梯向上,经过6米高的垂直绿化墙面可到达二层阁楼。平面呈L型的厨台和餐桌由水磨石整体打造,让就餐者与厨师产生密切的互动。阁楼带有一南一北两个露台,室内活动随时可以向室外延展。
The staircase, complemented by a 6-meter-high vertical plant wall, zigzag upwards to the second floor, the attic. The kitchen and the dining table are constructed with terrazzo, together forming a “L” shape, which enables the close interaction between the chef and dinners. There are two terraces respectively situated on the north and south side of 2F, allowing indoor activities to be extended outdoors freely.





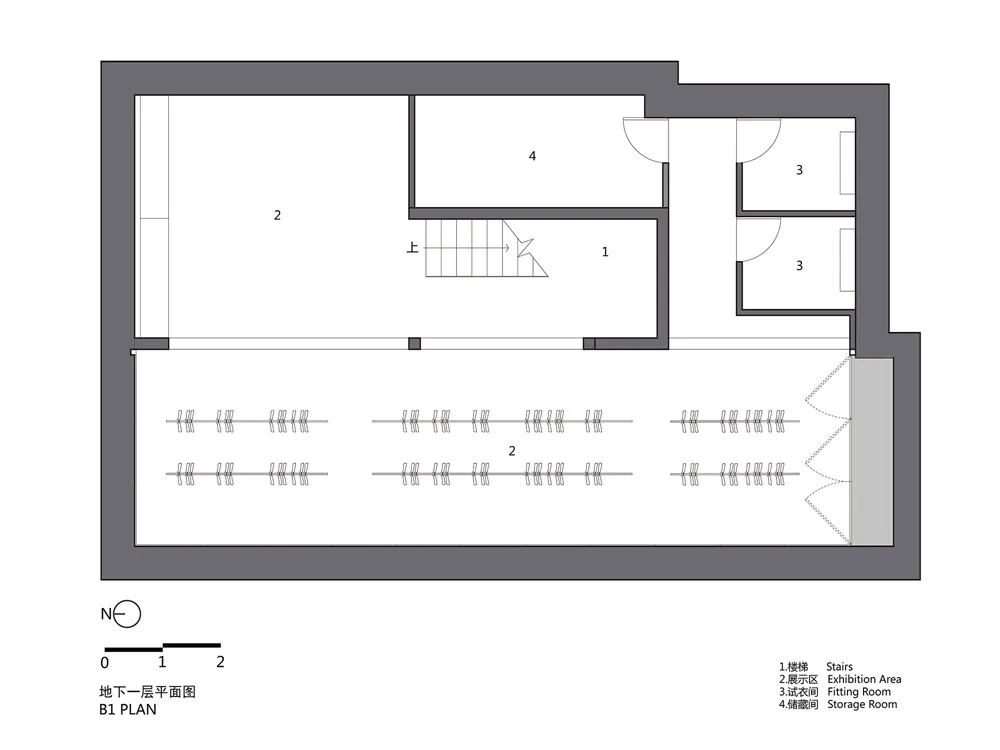
地下一层被改造为服装、鞋帽的展示和售卖区。发光地面作为鞋帽、产品的展台,同时补足地下空间的光。精选的服装悬挂于一个镜面空间之中,人与物产生有趣的关联。室内照明全部采用智能控制,镜面空间内嵌可变色的灯光,可以满足不同活动、场景的使用要求。
The basement was repurposed into an area for displaying and selling garment, shoes and hats. The gleaming floor serves as the display stand for hats, shoes and other items, and also brightens the underground space. Well-selected clothes are hung in a mirror-filled space, which produces playful interaction between people and objects. The design team adopted an intelligent lighting system in the entire space, and embedded variable lights into mirror-clad spaces, with a view to meeting the needs for different activities and settings.










∇ 灯光变换视频 Video – Varying light
∇ 负一层平面 B1 Plan

∇ 一层平面 1F Plan

∇ 二层平面 2F Plan

∇ 剖面01 Section 1

∇ 剖面02 Section 2

∇ 庭院与内部空间示意图 Diagram of yards and interior space

完整项目信息
项目名称:镜花园
设计公司:建筑营设计工作室(www.archstudio.cn)
主设计师:韩文强、李晓明
设计团队:王同辉、黄涛、文琛涵
施工时间:2018.08—2019.04
项目位置:东四,北京
建筑面积:283平米
主要材料:镜子、钢板、水磨石
摄影师:王宁、红强
Project name: Mirror Garden
Design firm: ARCHSTUDIO(www.archstudio.cn)
Chief designers: Han Wenqiang, Li Xiaoming
Design team: Wang Tonghui, Huang Tao, Wen Chenhan
Construction phase: August 2018 — April 2019
Location: Dongsi Subdistrict, Beijing, China
Area: 283 m2
Main materials: mirrors, steel panels, terrazzo
Photography: Wang Ning, Hong Qiang

