一个“深绿色几何体块”以及为挖出绿植空间而被打破的屋顶,这就是位于泰国曼谷的小型设计工作室ASWA (Architectural Studio of Work – Aholic)。这个工作室坐落在一块大约100平方米的微型用地上,它之前被当成停车场使用。
A “dark green geometric volume” with its punctured roof opening to a green area defines a small design studio, ASWA (Architectural Studio of Work – Aholic), located in Bangkok, Thailand. The studio sits on a small land, around 100 m2 that previously used as parking lots.
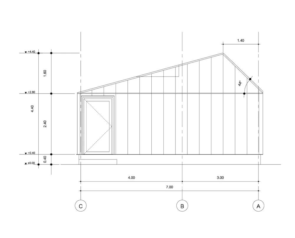
工作室使用了金属薄板作为建造这个紧凑的办公空间的墙体及屋顶的主要材料。有着单层不对称屋脊构造的屋顶支撑起49平方米适宜划分的空间以及其内部掏空的6平方米小院。
The studio has used metal sheet panels as the main material to clad this compact office throughout its wall and roof. The one – storey asymmetry hip roof studio holds a 49 m2 square shaped plan with a 6 m2 square punctured court inside.


这个偏离中心的小院是根据它周围空间的功能所要求的宽度和高度生成的,这些功能包括容纳6-8个员工的工作空间、会议区、实体模型展示区、材料储存柜以及卫生间。
This off- center courtyard is determined by the required width and height of the surrounding spaces regarding their functions, which include a working space for 6-8 staffs, a meeting area, a displayed physical models, materials cabinets, and restroom.
从这栋建筑的造型和形式可看出ASWA设计工作室谦逊低调的气质,以及从实验性设计中得出的、通过只使用最少量的开口隐身于吵闹的外部街道中并同时出其不意地在内部向绿植空间开放的方式打造理想工作氛围的理念。
Shape and form of the building represent a humble character of the studio, and its idea of the ideal working atmosphere which are derived from the experimental design in the way to hiding itself from the busting outside street with minimum openings, yet to surprisingly open itself to the inner green space.






这个小院令自然通风和天然光可以进入到整个办公空间,为工作室增添了漂亮的光影和良好的景色。这个中央绿植空间还友好欢迎小鸟、松鼠、蝴蝶、青蛙等等,以打造出伴随工作室发展的自然生态系统。
This courtyard allows the natural ventilation to go through the office space, as well as the natural light that contributes beautiful shade and great view for studio. It also lives with a natural ecosystem by inviting bird, squirrel, butterfly, frog, etc. to reside in its central green space.








∇ 轴测分析图 axon

∇ 平面图 plan

∇ 屋顶平面图 roof plan

∇ 立面图 elevations




∇ 剖面图 sections


完整项目信息
项目名称:ASWA Studio
项目位置:泰国曼谷
项目类型:办公空间/设计公司
完成时间:2018
项目面积:49平方米
设计公司:ASWA
摄影:Phuttipan Aswakool

