感谢来自 水相设计 的住宅项目案例分享:
本案非矩阵基地带来特殊格局角度,设计师以水墨画多点透视的概念发想,替墙面转折赋予柳暗花明又一境的叙事意涵,并从垂直立面延伸至天花板或蜿蜒、或翻折如远景山棱线条,每笔弯折相连或层迭,带来层次丰富的浓淡阴影,如墨色静寂晕染开来,缓缓铺垫大块雾白色域的苍茫和文气,如水墨世界里的留白,抒怀没有尽头的情感。
∇ 蜿蜒的玄关通道如山间曲径,顺势引向柳暗花明又一境的豁然感官。


∇ 烧杉染白后的烟灰色裂纹,创造细致而自然的装饰性线条。层架中一抹暗红若隐若现,整座层架宛如一幅极简主义浮雕画作。

身在此山中 云深墨浅
山水相连漫无边际的地景,以及林间湖面氤氲神秘的雾气,在水墨画里藉墨色浓淡晕染、留白处隐而不宣的飘渺静寂,简单几笔便能感受苍穹壮阔,或更深层悠长的文气。这一回,水相设计想将这样保存自然景致和个人记忆情感的叙事方式,表现在住宅的静寂日常。


翻折成峰 蜿蜒成径
本案基地非典型的矩阵形状,多处墙面以斜角相接,加上建物压缩楼面高度的梁柱,在水平和垂直立面上有许多曲折和角度待处理。于是格局层次上,我们调整空间配比和隔间形式以便完整利用畸零角度,柜体布局即是化零为整的手法,并微调动线与视觉轴线,呈现简化纯净的立面环境。
室内非矩阵的角度让动线变得特别,我们希望创造一种如漫步山间的闲散感受,长长玄关甬道引入室内,如浮雕画作的层架映入眼帘,彷佛路理当这么走,才能体会豁然开朗的意境。墙面和缓弯折同时带来浓淡层次丰富的阴影,影子落在墙边清淡如晨雾,用若有似无的姿态铺陈空间的多角轮廓。

∇ 一室雾色,开放厨房的石墨色中岛成了锚定色域层次的浓墨。

延续墙体和路径的结构特色,我们在天花板设计几处弧型与棱线,它们以约略性质的动感姿态或水平、或垂直方向翻折,修饰了特别低矮的梁柱结构体,也把格局斜角带至另一向度发展成水墨画中,表现远眺视角的山壑远景,笔触轻微、不见边际的山峰棱线,绵延而层迭交错正如画轴上的远景,即便墨色极淡却是不可缺的视角,铺垫出完整的叙事脉络。

∇ 垂直、水平方向非制式的折翘角度,在不同光源下交织如水墨画中层层远山。

苍茫如雾 华润如墨
最初,屋主希望空间尽可能仅有白或灰,一径的素净。不过再淡的墨色或大片留白,也需要几笔浓墨作为锚一般的角色沈落,才能凸显出雾的飘渺或水色辽阔。开放厨房的中岛便是那重要的墨色,台面石质细纹和石墨色底座,在公共区域每个视角端景印压出层次深度,于轻飘迷离的雾色中锚定了起居方位。


除了墨色的布局,我们也应用材料质地在大块色域创造细节。入口白墙以特殊涂料创造矿石感横纹,在自然光强弱端呈现细腻的浓淡光谱,像水墨在纸上无声晕开却令人着迷;通道尽头如画的层架底板,以烧衫染白自然呈现烟灰色裂纹,如水墨干笔笔触,在一室温和中烙印出力道。又如餐厨至卧房通道的L型墙体,以千条实木切斜角后拼贴排布,远看是木纹饶富深浅变化的块面,实则布满一束束木头肌理,包括令人想伸手触碰的立体切角,在水墨的意境里留了点浮雕的触觉趣味。物的质地,像水墨笔法丰富了空间可观的细部,以及随时间累积可一再细究的韵味。
∇ 厨房中岛是室内曲径、建筑各面采光的交会之处。


屏除重彩的墨笔淡色,在崇尚雅致宁静的起居世界里发挥了令人心定的功能,把山水的想象收放在空间结构的立面转角间,雾色聚散随日照移转,悠然此山中,宁静致远。
∇ 屋主长年出差而有下榻饭店的丰富体验,希望主卧卫浴和卧榻区有类似饭店客房的空间关系。

∇ 素净壁面利用涂料纹理,将缭绕云雾浓缩在卧室角落。



∇ 利用冲孔板烤漆和玻璃层架,设计师在次卧近阳台的角隅做了一座三角层架,透明背墙能导入采光,柜门则成左侧墙面延伸,让多角空间的片段墙面能化零为整、更好配置家具动线。

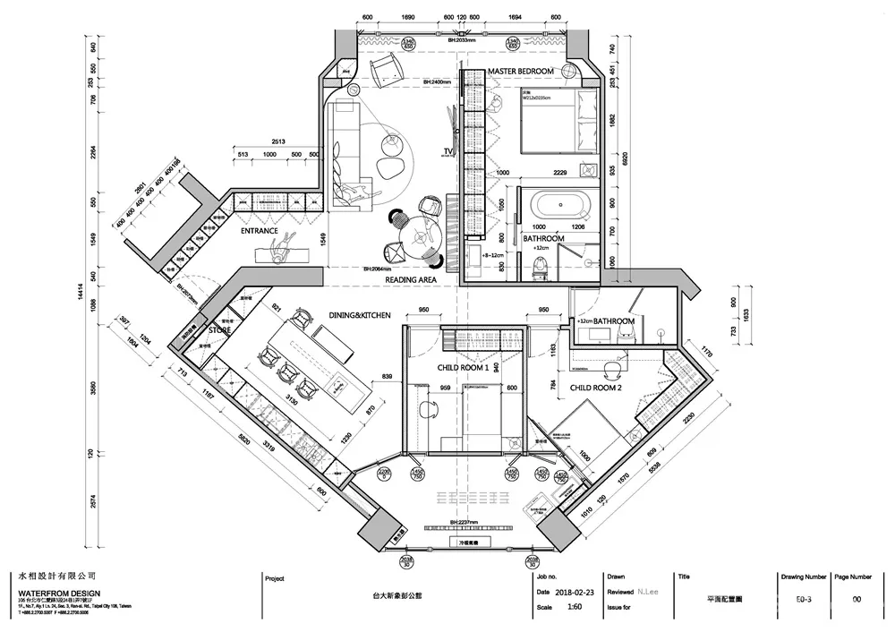
∇ 平面图

完整项目信息
空间设计:李智翔, 林其纬/水相设计
业主:彭先生
空间性质:住宅
座落位置:中国台湾
室内面积:122㎡
空间格局:客厅.餐厅.厨房.主卧.小孩房.卫浴.阳台
设计时间:2018.01-2018.07
施工时间:2018.07-2019.01
主要材料:染铁刀木皮、富洛克灰白手工漆、实木条格栅染白、意大利矿物涂料手工漆(黑色)、意大利矿物涂料手工漆(白灰色)、意大利矿物涂料手工漆(蓝绿色)、烧杉染白、白色横纹手工漆、雕刻白石材、黑铁层板烤漆、冲孔网(蓝绿色烤漆)、黑色赛丽石台面、海岛型木地板
摄影:李国民


现在这个浮躁的世界,能细心整理一些东西发上来的越来越少了。要么就是敷衍的图片,要么就是枯燥的文字。之后就是AI生成的预制菜类的打包便捷快餐了。感谢楼主的分享,让我能在大智能无人化来临之前,看到同类发出的项目。有幸与您互动,缘分。