该项目是一个单层房屋的改造,位于西班牙Sants附近。二十世纪建筑的倒角几何形状得到了充分利用,提供了一个与街道接触的充足空间,朝向街区内部的开放庭院照亮了更加遮蔽的空间。原有的隔墙被拆除,留下裸露的承重墙结构。
The project in question is a reform of a one-floor house, functioning as a house-workshop, located in the neighbourhood of Sants. The chamfer geometry of the twentieth-century building is taken advantage of, offering an ample space in contact with the street and a more sheltered space lit through a courtyard that opens towards the interior of the block. The original partitions are demolished, leaving the structure of the load-bearing walls exposed.


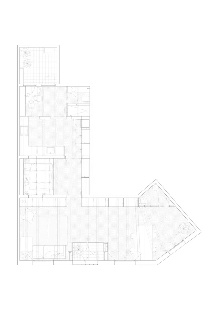
厨房和房间被放置在建筑的承重墙内,而工作室和起居室是开放的,与街道相连。入口从街道开始,通过一个有遮顶的空间朝向室内,起到从公共空间到家庭空间的过渡。采用易安装、维修费用低的经济材料。
The kitchen and the room are placed within the building’s load-bearing walls, while the workshop-living room is open and in contact with the street.The access takes place directly from the street, through a covered space that runs towards the interior articulating the transition from the public space to the domestic space. Easily installed economical materials of low maintenance are used.


使用的材料是混凝土、砖块或瓷砖,松木用于水平表面和建筑外壳,浴室和厨房采用瓷砖。垂直的墙壁和天花板被漆成白色,以确保正确的自然采光,并统一不同的纹理,包括预先存在和新的纹理。固定装置也暴露在外。该项目利用了传统建筑类型的优点来容纳一个灵活的家。
The materials being worked with are concrete, either in the form of blocks or pavement tiles, pine wood for the horizontal surfaces and enclosures, and finally ceramic tiles in the bathrooms and the kitchen. The vertical walls and the ceiling are painted white to ensure the correct natural lighting and in order to unify the different textures, both the pre-existing and the new ones. The fixtures remain exposed as well. It is a project that takes advantage of the virtues of a traditional architectural typology to accommodate a flexible home.










∇ 总平面 site plan

∇ 平面 plan

∇ 轴测图 axon

完整项目信息
项目名称:Sants House Workshop
项目位置:西班牙巴塞罗那
项目类型:住宅空间/建筑改造
完成时间:2018
项目面积:90平方米
设计公司:andrea + joan arquitectes
摄影:Joan Martí

