对于历史文化保护区域的城市更新,清筑建筑始终未停止探索的脚步,在经过漫长的胡同改造尝试后,我们提出了“营造工艺科学化”的整体思路,并开始在新的改造项目中应用。这是一个新闻记者的家,两夫妻养育了两个天真可爱的女儿,她们需要在房子附近入学,加上长期居住的两位老人,在50㎡的房子里需要解决六口之家的居住空间。
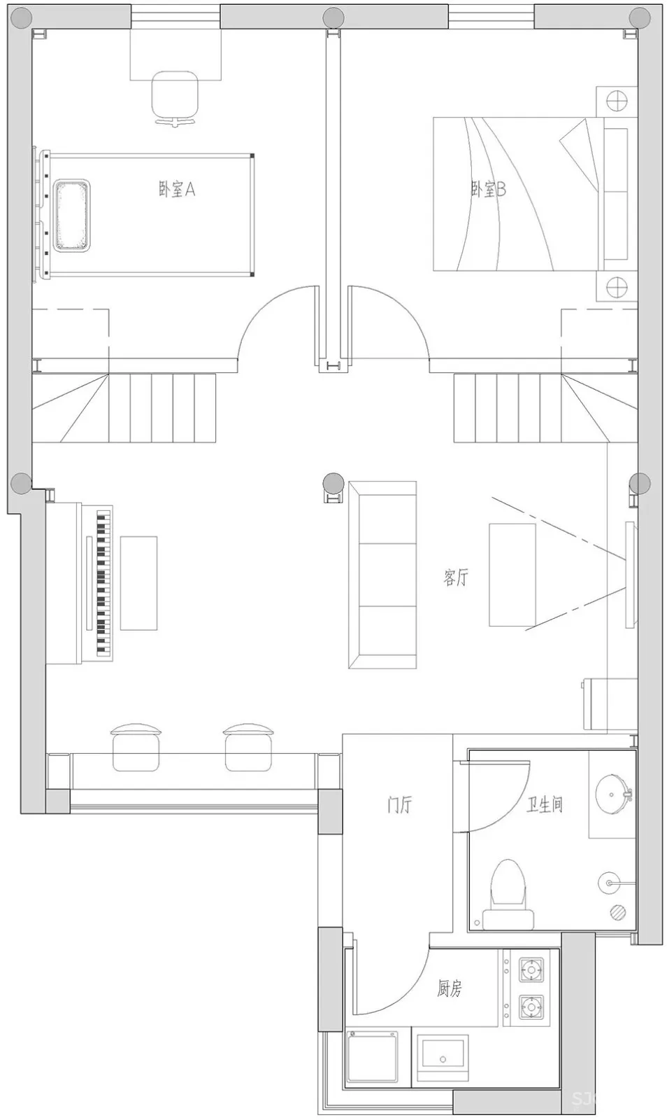
在胡同里,清筑建筑积累了丰富的通过技术解决实际问题的经验,从而项目的重点落在空间设计上,利用坡屋顶设计了两层卧室,因为房屋主体为传统工艺的四合院建筑,房梁阻隔了二层空间的统一利用,故在一层东西两侧设置楼梯分别到达两个卧室,卧室间设计小门方便大人照顾小孩,为增加房屋趣味性,特地在二层外挑一个可供小孩阅读嬉戏的区域,同时也丰富了整体空间。
本项目室内进行了保温隔热处理、地面实施防潮措施、传统木结构加固等基础处理。设备包括电地暖、电动马桶、新风系统、中央空调等,使空间可以达到良好的舒适性。







▼一层平面图
▼二层平面图,
项目名称:50㎡的六口之家
项目地址:北京
项目类型:居住
项目面积:50㎡
设计时间:2018.07-09
完成时间:2019.05
建筑师:刘军
建筑设计:北京清筑建筑设计有限公司
材料:混疑土、玻璃、瓷砖
摄影:刘军

