美学 / 创新 / 时尚 / 人文 / 设计
SuZhou,2019,StarHouse
 
 
你是人间的四月天,染墨间融入山川之美,江海浩瀚。写在四月的心情,随清风飘远;写在四月的思念,跃入无边的天涯。回眸看去,花木自然,春风浅淡,也许明天早上,这里又是另一番落红。爱这四月的清纯,如同爱你一般,心底泛着喜悦。
写在前面
屋主这套为改善型住宅,因为置换急需入住,因此这套必然要在半年内全部落地完成,中间还跨越了一个春节(停工一个月),加上老小区周末无施工条件,好在江南的气候一直温润如玉,冬天没有极端的气温,因此说是五个月,其实在去掉一个半月的周末,硬是在三个半月的工作日中把这套犹如小别墅结构的房子拿下,其中木作大量作业,空调地暖新风样样齐全,其紧密的链接度,在这里着实要表扬一下工长的好脾气以及好手艺。
 
 
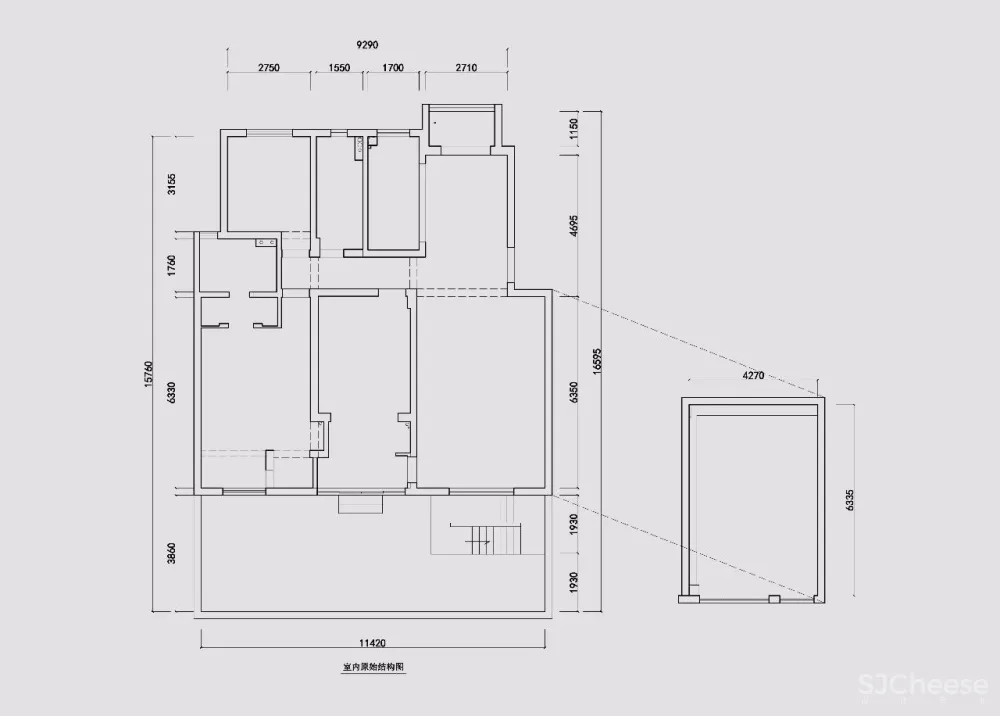
原始结构图 原户型格局还是不错的,南北通透
不足点: 进花园方式不理想,由次卧室进。
主卧靠窗承重结构住乱入,衣帽间格局不理想。
平面布置图 为满足户型的优势提升:
1.进阳台采用客厅入,儿童房独立出来提高私密性。
2.主卧靠窗用地台形式找落差感,填补层次需求。
3.主卧承重柱为结构柱,通过梳妆台形式,墙面增加木饰面营造孤独感。
4.主卧独立衣帽间,改变入卫生间进门方式,提高主卧私密空间。
5.过道墙体做成双面柜,增加收纳。
6.北阳台纳入餐厅部分,通过吧台,酒柜,提升餐厅质感空间。
客厅/Livingroom
 
 
 
 
 
 
【电视背景墙】内部全部用的免漆板制作,黑色亮灯部分内部嵌灯条,敞开部分用的木饰面贴面,水电施工要预埋好后期走线位置,木工打柜体期间要把变压器和电线预埋好,只需要留好线头就行;门板采用的成品板,后期挂上效果很赞;地台用的石材做贴面处理!
 
 
 
 
 
 
【沙发背景】沙发背景整面墙采用艺术马来漆做整面背景处理,其基底处理需要极其平整,马来漆点状处理后打磨封蜡,艺术漆的施工作业要求是极为细致的,最初的墙面基底处理完成后,到艺术漆的作业时,还需要进行细致的打磨处理,这面墙面15平方,两个师傅作业不间歇用时8小时处理完,其质感现场感更棒!
 
 
 
 
 
 
 
 
餐厅/Diningroom
▽
 
 
 
 
 
 
餐厅紧靠北阳台,因为一楼有新建阳光房,洗衣设备都放到阳光房,北阳台和餐厅打通做了吧台处理,另一侧做了酒柜和收纳处理。
 
 
 
 
 
 
主卧/Master BedRoom
▽
 
 
主卧靠窗部分做整体抬高10公分,内部嵌灯带,围绕窗整体上下做木饰面贴饰,地台一部分做休闲单人沙发椅,一部分做梳妆台。一杯茶,一本书,躺在慵懒的沙发上,靠着落地大窗!
 
 
 
 
衣帽间全部采用木作,门板为成品定制,卫生间移门为上吊轨缓冲,特别注意顶部要预留好轨道槽,早期吊顶时就要预留好精确尺寸。
儿童房/Childrens room
▽
 
 
儿童房床体为现场木作,床体木饰面饰面,落地效果颜值很好。
 
 
 
 
 
 
儿童房/书房/Study
▽
 
 
 
 
地下室设计为书房功能,虽然地处江南,但为半挑空结构,往下一层为地下车库,即梅雨季节不算潮湿。一面做了敞开式书柜,利用免漆板和木饰面结合方式做法;另一侧做了收纳处理。
厨房/Kitchen
▽
 
 
卫生间/TOILET
▽
 
 
【外卫干区】台盆柜是现场制作的,台面做了钢架基础支撑,牢固,镜子背部嵌了灯光槽,水路用了墙排水,尺寸需要提前定制好,柜体用的板材现场做的,内部预留了小厨宝位置,隐藏的水源需要提前定制好尺寸。
 
 
 
 
内卫台盆制作采用了悬挂处理,台面为石英石,整面镜底部预留灯带。
 
 
 
 
阳光房/sunroom
▽
 
 
阳光房为后期搭建,为了夏天模式没有桑拿感,顶部装了电动轨道,冬天模式打开日光浴应该相当舒服。
 
 
 
 
楼盘名称丨南山巴黎
使用面积丨175㎡
设计风格丨现代简约
设计单位 | 星瀚设计
施工单位 | 星瀚美家
摄影 | 王浩
全案费用丨60W


